MÃ BẢN VẼ
16339
Bản thiết kế Autocad Nhà phố 3 tầng 4.15x23.75m đầy đủ hạng mục
(
1 Nhận xét)
Viết đánh giá
Bình luận: 0
Download: 2
Lượt xem: 1293
Bản thiết kế Autocad Nhà phố 3 tầng 4.15x23.75m đầy đủ hạng mục: kiến trúc, kết cấu, điện nước.
Ngày đăng: 14/4/2021
File download:
Nhà phố 3 tầng 4.15x23.75m.rar
Dung lượng file:
4.2 MB
Phong cách: Hiện đại
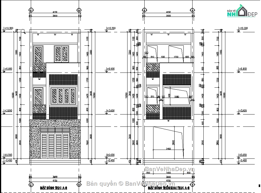
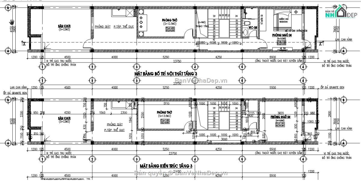
Kích thước: Rộng 4,13m, Dài 23,75m, DT 98,09m2
CÔNG CỤ THIẾT KẾ:

Autocad

Sketchup

3D Max

Revit

Khác...
CÁC HẠNG MỤC CỦA BẢN VẼ:

Kiến trúc

Kết cấu

Điện

Nước

PCCC

Phối cảnh

Dự toán

Tài liệu

Khác...
NGƯỜI ĐĂNG
Bản vẽ
292
Bộ sưu tập
0
Đánh giá (322)
4/5
Ngày tham gia
21/10/2018
Mô tả chi tiết
Bản thiết kế Autocad Nhà phố 3 tầng 4.15x23.75 + kèm ảnh phối cảnh
công năng:
-Tầng 1: 01 phòng kinh doanh, 01 phòng khách, 01 cầu thang, 01 phòng bếp + ăn, 01 khu wc
-Tầng 2: 03 phòng ngủ, 02 phòng vệ sinh, 01 cầu thang
-Tầng 3: 01 phòng thờ, 1 phòng ngủ, phòng giặt + phòng tập thể dục, sân chơi
Thanks all.
Bình luận (0)
Đánh giá (1)
ĐÁNH GIÁ TRUNG BÌNH
5/5
(
1 Nhận xét)
Bản vẽ rất tốt (1)
Bản vẽ tốt (0)
Bản vẽ rất hay (0)
Bản vẽ hay (0)
Bình thường (0)
Bản vẽ rất tốt
Đã đăng bản vẽ này
Bản vẽ thiết tốt thích hợp để tham khảo