MÃ BẢN VẼ
16347
Bộ sưu tập Autocad thiết kế Hardware 2D đồ gỗ nội thất đầy đủ các chi tiết.
(
1 Nhận xét)
Viết đánh giá
Bình luận: 0
Download: 0
Lượt xem: 1169
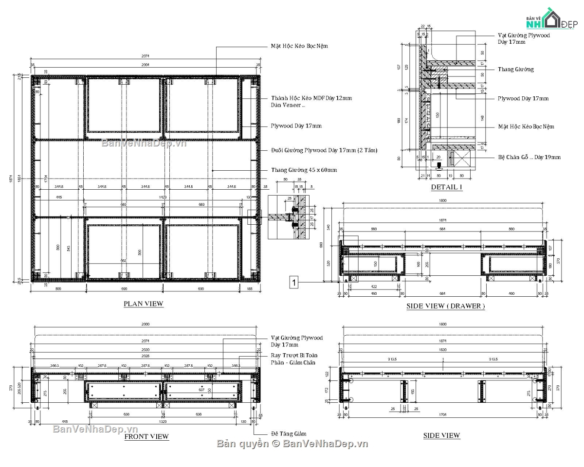
Bộ sưu tập Hardware 2D ngành gỗ gồm chi tiết: bulông, ốc vít, tay nắm, bản lề ,ray trượt các loại...
Ngày đăng: 20/4/2021
File download:
Hardware 2D nganh go.dwg
Dung lượng file:
14.84 MB
Phong cách: Hiện đại
Kích thước: ...
CÔNG CỤ THIẾT KẾ:

Autocad

Sketchup

3D Max

Revit

Khác...
CÁC HẠNG MỤC CỦA BẢN VẼ:

Kiến trúc

Kết cấu

Điện

Nước

PCCC

Phối cảnh

Dự toán

Tài liệu

Khác...
NGƯỜI ĐĂNG
Bản vẽ
6
Bộ sưu tập
0
Đánh giá (8)
5/5
Ngày tham gia
19/3/2018
Mô tả chi tiết
Nội thất đồ gỗ rất đa dạng từ cổ điển đến hiện đại, để tạo ra một sản phẩm đồ gỗ đẹp chất lượng phải qua rất nhiều công đoạn và rất cần sự tỉ mỉ cũng như tay nghề của những người thợ mộc, ngoài những liên kết bằng mộng gỗ ,các cấu kiện đồ gỗ còn được liên kết với nhau bằng các phụ kiện gọi là Hardware hay ngũ kim để có thể kết nối các đầy đủ đồ gỗ lại với nhau một cách chắc chắn và thẩm mỹ cao, đồng thời có thể tháo lắp một cách dễ dàng, với công nghệ chế tác ngày càng cao cấp các sản phẩm hardware (ngũ kim) được tạo ra và ngày càng đáp ứng được nhu cầu và thị hiệu người tiêu dùng đòi hỏi sự chất lượng của sản phẩm cũng như đảm bảo tính thẩm mỹ cao, bộ sưu tập Hardware 2D đồ gỗ là tập hợp đầy đủ các file cad cùng kt đầy đủ đúng thực tế sản phẩm từ ốc ít các loại, bulong, tay nắm, bản lề ray trượt đủ loại...
Bản vẽ bộ sưu tập Hardware 2D có thể dùng làm bộ sưu tập trong quá trình triển khai chế biến vật dụng nội thất hoặc làm file tài liệu tham khảo cho những ai quan tâm đến lĩnh vực chế biến đồ gỗ.
Bình luận (0)
Đánh giá (1)
ĐÁNH GIÁ TRUNG BÌNH
5/5
(
1 Nhận xét)
Bản vẽ rất tốt (1)
Bản vẽ tốt (0)
Bản vẽ rất hay (0)
Bản vẽ hay (0)
Bình thường (0)
Bản vẽ rất tốt
Đã đăng bản vẽ này
Bản vẽ thiết tốt thích hợp để tham khảo