MÃ BẢN VẼ
50607

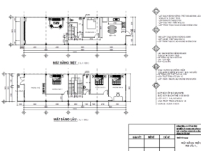
Dựng model nhà phố 2 tầng 8x19m

  (1 Nhận xét)     Viết đánh giá        0     0     147

Model 3d .skp nhà phố với độc đáo trẻ trung hiện đại, có ảnh render kèm theo. Hy vọng thời gian tới, mình sẽ đóng góp thêm nhiều model hữu ích để anh chị nghiên cứu.

Ngày đăng: 24/10/2024
File download: 8.rar
Dung lượng file: 30.2 MB
Phong cách: Hiện đại
Kích thước: Rộng 8m, Dài 19m, DT 152m2
CÔNG CỤ THIẾT KẾ:
Autocad
Sketchup
3D Max
Revit
Khác...
CÁC HẠNG MỤC CỦA BẢN VẼ:
Kiến trúc
Kết cấu
Điện
Nước
PCCC
Phối cảnh
Dự toán
Tài liệu
Khác...

NGƯỜI ĐĂNG
bản vẽ nhà
Bản vẽ
2612
bộ sưu tập bản vẽ nhà
Bộ sưu tập
3
đánh giá mẫu bản vẽ
Đánh giá (3270)
4/5
ngày tham gia bản vẽ nhà đẹp
Ngày tham gia
4/10/2014

Mô tả chi tiết

File nhà 2 tầng, kèm theo ảnh file phối cảnh nội thất kiểu mới được dựng trên phần mềm sketchup. kính gửi anh em tham khảo. các file tài liệu khác mình đóng góp anh em có thể tham khảo thêm ở trang cá nhân của mình trên trang. 

 

Bình luận (0)


Đánh giá (1)

ĐÁNH GIÁ TRUNG BÌNH
5/5

(1 Nhận xét)
Bản vẽ rất tốt (1)
Bản vẽ tốt (0)
Bản vẽ rất hay (0)
Bản vẽ hay (0)
Bình thường (0)
Chia sẻ nhận xét về bản vẽ
 Viết nhận xét của bạn
KTS Đức Lộc
Thời gian 12:14
17/11/2024
Bản vẽ rất tốt   
 Đã đăng bản vẽ này
Bản vẽ thiết tốt thích hợp để tham khảo
HỖ TRỢ TRỰC TUYẾN