MÃ BẢN VẼ
58163

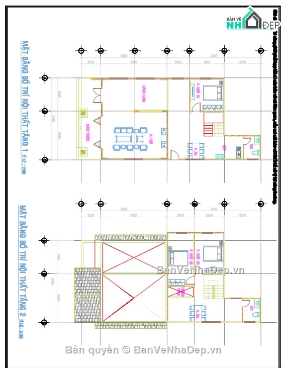
Hồ sơ kiến trúc – kết cấu – su nhà dân 2 tầng 8.8×8m

  (1 Nhận xét)     Viết đánh giá        0     0     48

Hồ sơ nhà dân 2 tầng 8.8×8m gồm gồm file cad kiến trúc, kết cấu và hình mẫu 3d sketchup, giúp hình dung tổng thể công trình một cách trực quan, thuận tiện cho thi công và hoàn thiện.

Ngày đăng: 27/5/2025
File download: #
Dung lượng file: #
Phong cách: Hiện đại
Kích thước: Rộng 8m, Dài 8,8m, DT 70,4m2
CÔNG CỤ THIẾT KẾ:
Autocad
Sketchup
3D Max
Revit
Khác...
CÁC HẠNG MỤC CỦA BẢN VẼ:
Kiến trúc
Kết cấu
Điện
Nước
PCCC
Phối cảnh
Dự toán
Tài liệu
Khác...

NGƯỜI ĐĂNG
(Hạng vàng)
Xem trang
bản vẽ nhà
Bản vẽ
222
bộ sưu tập bản vẽ nhà
Bộ sưu tập
0
đánh giá mẫu bản vẽ
Đánh giá (431)
5/5
ngày tham gia bản vẽ nhà đẹp
Ngày tham gia
17/8/2022

Mô tả chi tiết

Bộ bản vẽ file cad nhà dân 2 tầng kt 8.8×8m bao gồm gồm các phần: kiến trúc, kết cấu và hình mẫu 3dmax sketchup. file cad hiện đại, tối ưu công năng sử dụng, phù hợp cho gia đình chùa từ 3–5 người với không gian sống tiện nghi, dễ triển khai thi công thực tế.

Bình luận (0)


Đánh giá (1)

ĐÁNH GIÁ TRUNG BÌNH
5/5

(1 Nhận xét)
Bản vẽ rất tốt (1)
Bản vẽ tốt (0)
Bản vẽ rất hay (0)
Bản vẽ hay (0)
Bình thường (0)
Chia sẻ nhận xét về bản vẽ
 Viết nhận xét của bạn
Linh0 ThuvienC
Thời gian 14:06
5/7/2025
Bản vẽ rất tốt   
 Đã mua bản vẽ tại Banvenhadep.vn
Bản vẽ thiết tốt thích hợp để tham khảo
HỖ TRỢ TRỰC TUYẾN