MÃ BẢN VẼ
27762
Autocad Cửa hàng kinh doanh vàng bạc kết hợp nhà ở 4 tầng 11.5x14.2m
(
1 Nhận xét)
Viết đánh giá
Bình luận: 0
Download: 1
Lượt xem: 762
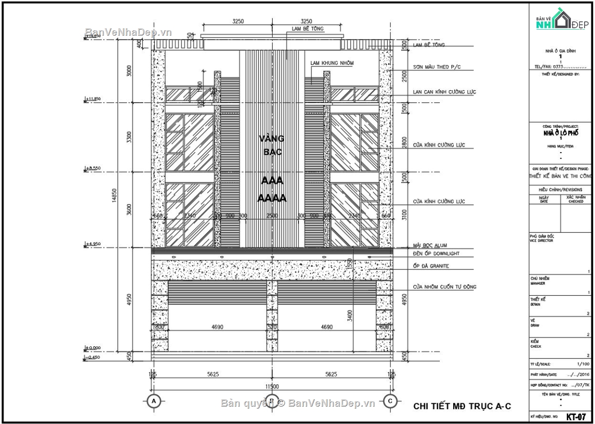
Bản vẽ thiết kế cửa hàng kinh doanh vàng bạc đá quý đẹp 4 tầng kích thước 11.5x14.2m
Ngày đăng: 20/3/2023
File download:
Nha ho ket hop kinh doanh vang bac.rar
Dung lượng file:
2.87 MB
Phong cách: Hiện đại
Kích thước: Rộng 11,5m, Dài 14,2m, DT 163,3m2
CÔNG CỤ THIẾT KẾ:

Autocad

Sketchup

3D Max

Revit

Khác...
CÁC HẠNG MỤC CỦA BẢN VẼ:

Kiến trúc

Kết cấu

Điện

Nước

PCCC

Phối cảnh

Dự toán

Tài liệu

Khác...
NGƯỜI ĐĂNG
Bản vẽ
259
Bộ sưu tập
0
Đánh giá (601)
5/5
Ngày tham gia
25/2/2023
Mô tả chi tiết
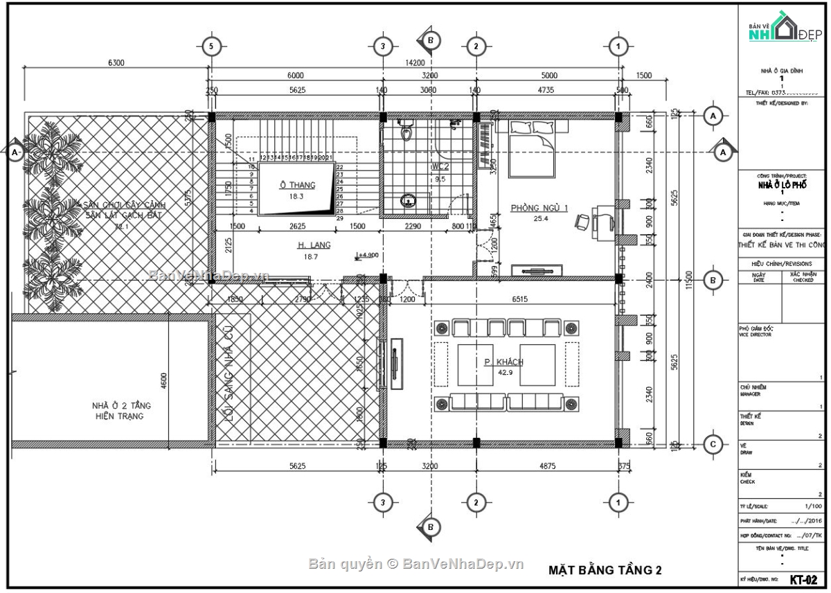
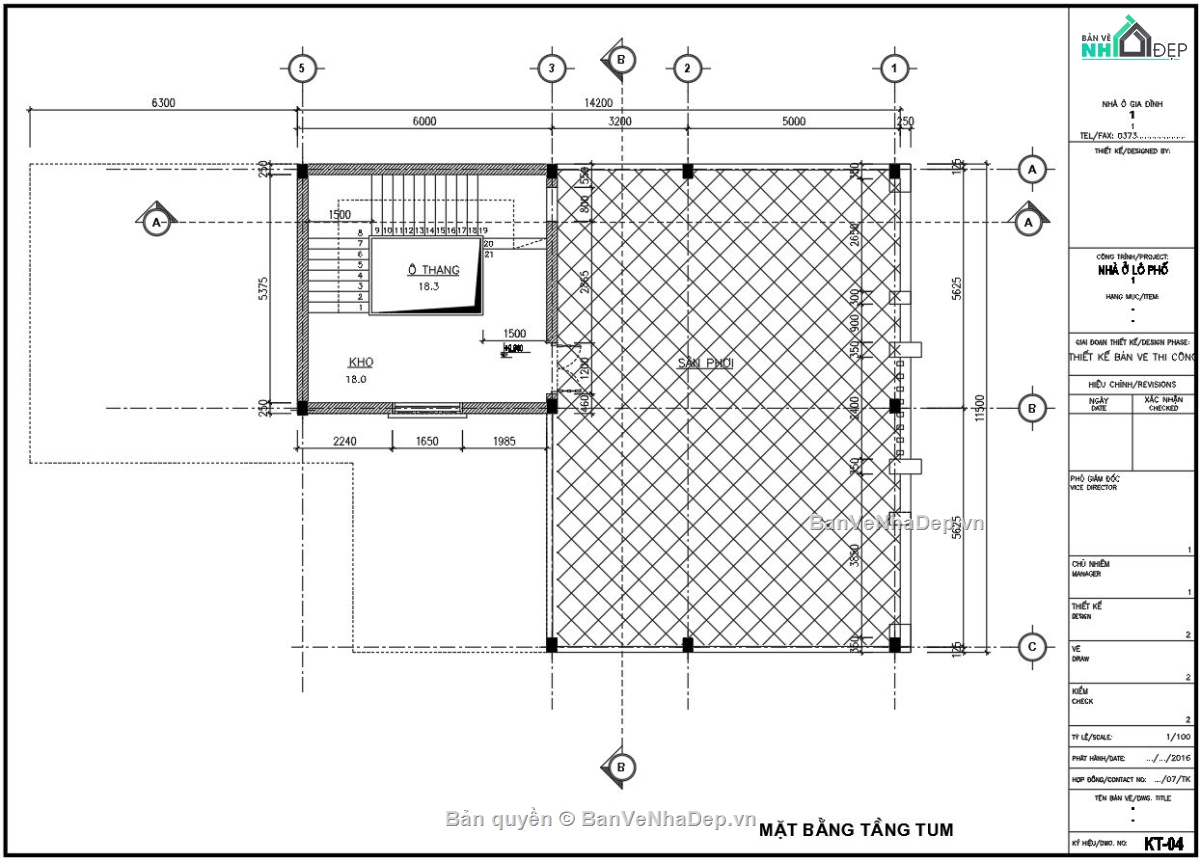
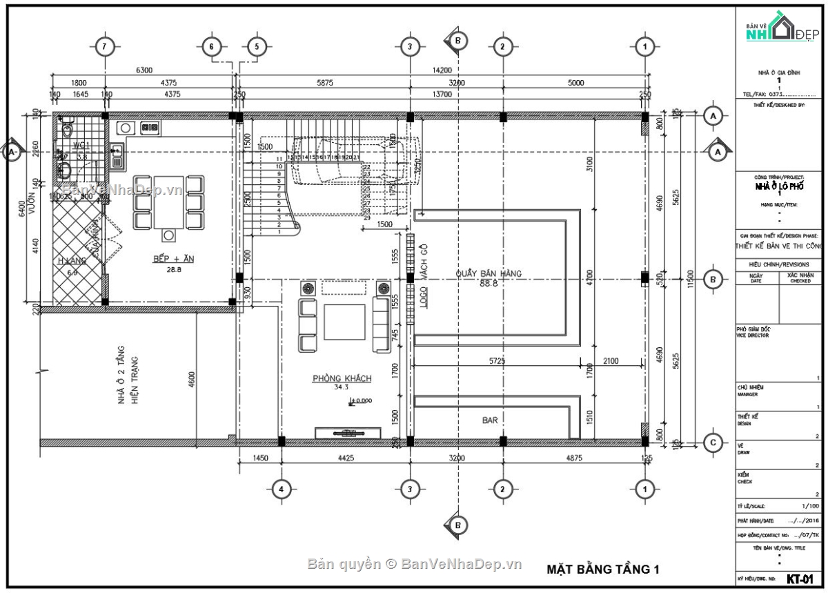
Hồ sơ thiết kế cơ sở kinh doanh vàng bạc đá quý kết hợp nhà ở công năng các tầng như sau:
- Tầng 1: không gian bán hàng, phòng khách, bếp và wc bố trí tại khu phụ phía sau nhà
- Tầng 2: 01 ngủ, 01 phòng khách gia đình, wc tầng, Sân ướt kết nối khu nhà cũ
- Tầng 3: Phòng thờ, 01 ngủ, 01 Phòng khách gia đình, Wc tầng.
- Tầng tum: Tum thang, sân phơi
Hồ sơ bao gồm:
- 01 File autocad đầy đủ 3 bộ môn bản vẽ TKKT: Kiến trúc, kết cấu, điện nước
- 02 ảnh phối cảnh
Bình luận (0)
Đánh giá (1)
ĐÁNH GIÁ TRUNG BÌNH
5/5
(
1 Nhận xét)
Bản vẽ rất tốt (1)
Bản vẽ tốt (0)
Bản vẽ rất hay (0)
Bản vẽ hay (0)
Bình thường (0)
7Plus
Thời gian 23:15
20/3/2023
Bản vẽ rất tốt
Đã mua bản vẽ tại Banvenhadep.vn
Bản vẽ rất tốt và phù hợp để tham khảo