MÃ BẢN VẼ
61701

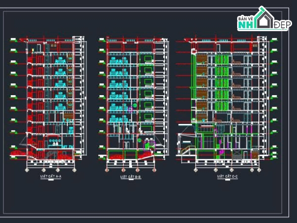
Bài tập thiết kế mặt bằng kiến trúc khách sạn 9 tầng(18x13.5m(kiến trúc)

  (1 Nhận xét)     Viết đánh giá        0     1     104

Bài tập thiết kế mặt bằng kiến trúc khách sạn 9 tầng,tham khảo để thiết kế các dự án trong học tập

Danh mục: Khách sạn
Ngày đăng: 01/9/2025
File download: KIENTRUC KHACHSAN.rar
Dung lượng file: 1.22 MB
Phong cách: Hiện đại
Kích thước: Rộng 13,5m, Dài 18m, DT 243m2
CÔNG CỤ THIẾT KẾ:
Autocad
Sketchup
3D Max
Revit
Khác...
CÁC HẠNG MỤC CỦA BẢN VẼ:
Kiến trúc
Kết cấu
Điện
Nước
PCCC
Phối cảnh
Dự toán
Tài liệu
Khác...

NGƯỜI ĐĂNG
bản vẽ nhà
Bản vẽ
27
bộ sưu tập bản vẽ nhà
Bộ sưu tập
0
đánh giá mẫu bản vẽ
Đánh giá (67)
5/5
ngày tham gia bản vẽ nhà đẹp
Ngày tham gia
31/7/2025

Mô tả chi tiết

Bài tập thiết kế mặt bằng kiến trúc khách sạn 9 tầng(dùng để kinh doanh)

+kiến trúc

thiết kế tham khảo đúng kỹ thuật cho các dự án tương tự

Bình luận (0)


Đánh giá (1)

ĐÁNH GIÁ TRUNG BÌNH
5/5

(1 Nhận xét)
Bản vẽ rất tốt (1)
Bản vẽ tốt (0)
Bản vẽ rất hay (0)
Bản vẽ hay (0)
Bình thường (0)
Chia sẻ nhận xét về bản vẽ
 Viết nhận xét của bạn
Nguyễn thị phương Thảo
Thời gian 11:53
1/9/2025
Bản vẽ rất tốt   
 Đã mua bản vẽ tại Banvenhadep.vn
Bản vẽ rất tốt và phù hợp để tham khảo
HỖ TRỢ TRỰC TUYẾN