MÃ BẢN VẼ
61948

Bản dẫn chéo góc cho cầu dầm i bản vẽ cad

  (1 Nhận xét)     Viết đánh giá        0     0     3

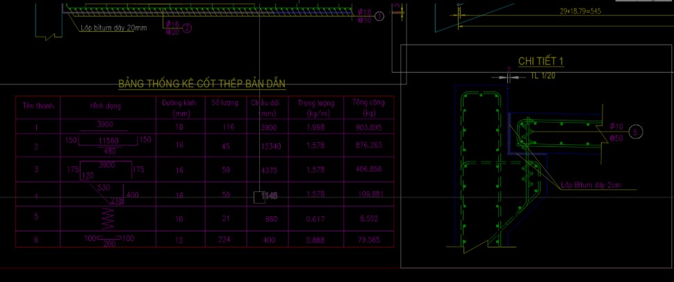
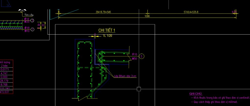
File bao danh mục các hình vẽ bố trí, cấu tạo chi tiết, bố trí thép, bóc tách cốt thép và bảng bộ sưu tập khối lượng

Ngày đăng: 14/8/2025
File download: .rar
Dung lượng file: MB
Phong cách: Hiện đại
Kích thước: ...
CÔNG CỤ THIẾT KẾ:
Autocad
Sketchup
3D Max
Revit
Khác...
CÁC HẠNG MỤC CỦA BẢN VẼ:
Kiến trúc
Kết cấu
Điện
Nước
PCCC
Phối cảnh
Dự toán
Tài liệu
Khác...

NGƯỜI ĐĂNG
(Hạng vàng)
Xem trang
bản vẽ nhà
Bản vẽ
218
bộ sưu tập bản vẽ nhà
Bộ sưu tập
0
đánh giá mẫu bản vẽ
Đánh giá (431)
5/5
ngày tham gia bản vẽ nhà đẹp
Ngày tham gia
17/8/2022

Mô tả chi tiết

file này chứa file bản vẽ mẫu bản dẫn – bản quá độ cho cầu chéo góc 70°, bề rộng cầu b = 12m. do bản dẫn được bố trí lọt trong khe giữa hai tường cánh nên bề rộng bản là 10,96m, chiều dài mẫu 4m và được đặt với độ dốc 2%.

Bình luận (0)


Đánh giá (1)

ĐÁNH GIÁ TRUNG BÌNH
5/5

(1 Nhận xét)
Bản vẽ rất tốt (1)
Bản vẽ tốt (0)
Bản vẽ rất hay (0)
Bản vẽ hay (0)
Bình thường (0)
Chia sẻ nhận xét về bản vẽ
 Viết nhận xét của bạn
Linh0 ThuvienC
Thời gian 08:43
25/10/2025
Bản vẽ rất tốt   
 Đã đăng bản vẽ này
Bản vẽ thiết tốt thích hợp để tham khảo
HỖ TRỢ TRỰC TUYẾN