MÃ BẢN VẼ
58410

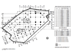
Bản đồ quy hoạch san nền khu dân cư đô thị đồng, thị trấn hưng hóa, huyện tam nông

  (1 Nhận xét)     Viết đánh giá        0     0     9

Quyết định số 5126/qđ-ubnd ngày 02/12/2021 của ubnd huyện tam nông về việc phê duyệt nhiệm vụ lập quy hoạch đầy đủ tỷ lệ 1/500 khu dân cư đô thị đồng và, thị trấn hưng hóa, huyện tam nông.

Ngày đăng: 05/6/2025
File download: .rar
Dung lượng file: #
Phong cách: Hiện đại
Kích thước: ...
CÔNG CỤ THIẾT KẾ:
Autocad
Sketchup
3D Max
Revit
Khác...
CÁC HẠNG MỤC CỦA BẢN VẼ:
Kiến trúc
Kết cấu
Điện
Nước
PCCC
Phối cảnh
Dự toán
Tài liệu
Khác...

NGƯỜI ĐĂNG
(Hạng vàng)
Xem trang
bản vẽ nhà
Bản vẽ
236
bộ sưu tập bản vẽ nhà
Bộ sưu tập
0
đánh giá mẫu bản vẽ
Đánh giá (590)
5/5
ngày tham gia bản vẽ nhà đẹp
Ngày tham gia
12/4/2025

Mô tả chi tiết

Bản đồ quy hoạch san nền khu nhà ở đô thị đồng và - tỷ lệ 1/500, thị trấn hưng hóa, huyện tam nông. với mục tiêu hình thành khu nhà ở mới với kết cấu hạ tầng đồng bộ, hoàn chỉnh, đảm bảo kiến trúc cảnh quan và môi trường khu vực. 

Bình luận (0)


Đánh giá (1)

ĐÁNH GIÁ TRUNG BÌNH
5/5

(1 Nhận xét)
Bản vẽ rất tốt (1)
Bản vẽ tốt (0)
Bản vẽ rất hay (0)
Bản vẽ hay (0)
Bình thường (0)
Chia sẻ nhận xét về bản vẽ
 Viết nhận xét của bạn
Vân Anh Đỗ
Thời gian 14:07
5/7/2025
Bản vẽ rất tốt   
 Đã mua bản vẽ tại Banvenhadep.vn
Bản vẽ thiết tốt thích hợp để tham khảo
HỖ TRỢ TRỰC TUYẾN