MÃ BẢN VẼ
27773
Bản vẽ autocad Biệt thự 2 tầng kết hợp nhà thờ họ 9.6x12.3m
(
1 Nhận xét)
Viết đánh giá
Bình luận: 0
Download: 0
Lượt xem: 749
File bản vẽ thiết kế nhà ở biệt thự 2 tầng kết hợp nhà thờ họ gửi các bạn tham khảo
Ngày đăng: 22/3/2023
File download:
NHA O KET HOP NHA THO HO.rar
Dung lượng file:
2.77 MB
Phong cách: Tân cổ điển
Kích thước: Rộng 9,6m, Dài 12,3m, DT 118,1m2
CÔNG CỤ THIẾT KẾ:

Autocad

Sketchup

3D Max

Revit

Khác...
CÁC HẠNG MỤC CỦA BẢN VẼ:

Kiến trúc

Kết cấu

Điện

Nước

PCCC

Phối cảnh

Dự toán

Tài liệu

Khác...
NGƯỜI ĐĂNG
Bản vẽ
259
Bộ sưu tập
0
Đánh giá (601)
5/5
Ngày tham gia
25/2/2023
Mô tả chi tiết
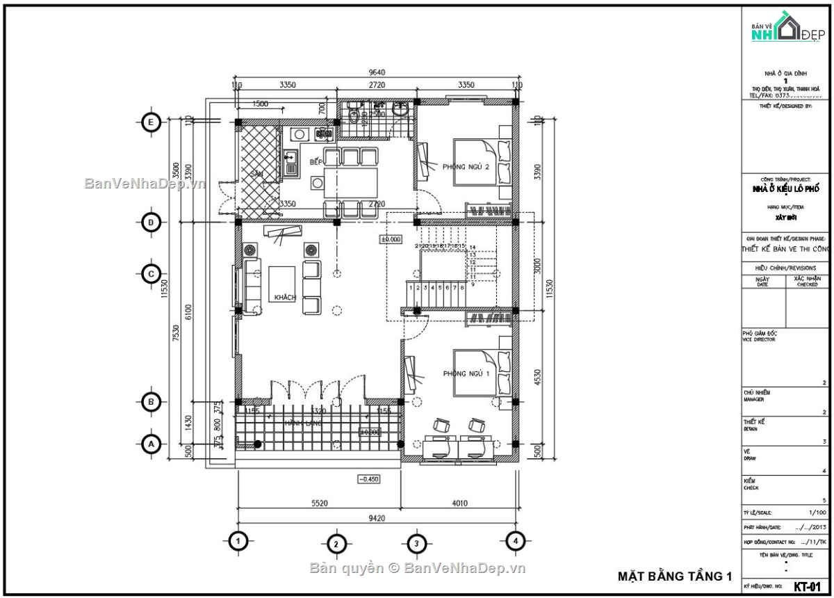
Thiết kế nhà ở 2 tầng kết hợp nhà thờ họ ở trên mái công năng các tầng như sau:
- Tầng 1: Hàng lanh, phòng khách, Bếp + phòng ăn, 02 ngủ, 01 wc tầng, sân ướt phía sau bên hông nhà, Cầu thang bộ
- Tầng 2: Không gian thờ cúng, 01 ngủ, 01 wc tầng, Sân phơi, Ban công trước nhà
Hồ sơ bao gồm:
- Kiến trúc:
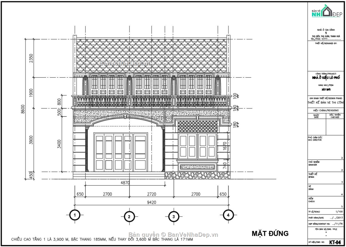
+ Phần phương án (Đủ): Mặt bằng, mặt cắt, mặt đứng.
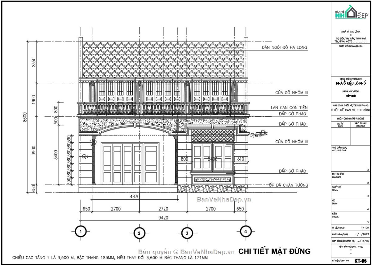
+ Phần chi tiết (Cơ bản): Chi tiết mặt đứng, chi tiết cửa, MB trần phong khách Tầng 1
- Kết cấu: Tương đối đủ (Chưa thống kê thép)
- 01 ảnh phối cảnh
Bình luận (0)
Đánh giá (1)
ĐÁNH GIÁ TRUNG BÌNH
5/5
(
1 Nhận xét)
Bản vẽ rất tốt (1)
Bản vẽ tốt (0)
Bản vẽ rất hay (0)
Bản vẽ hay (0)
Bình thường (0)
7Plus
Thời gian 06:54
22/3/2023
Bản vẽ rất tốt
Đã mua bản vẽ tại Banvenhadep.vn
Bản vẽ rất tốt và phù hợp để tham khảo