MÃ BẢN VẼ
3985

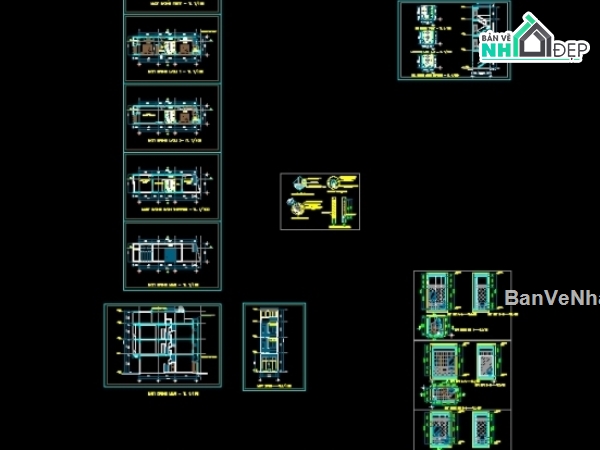
Bản vẽ autocad thiết kế nhà phố 4 tầng kích thước 4x13m full

  (1 Nhận xét)     Viết đánh giá        0     5     864

File bản vẽ autocad thiết kế nhà phố 4 tầng kích thước 4x13m full đầy đủ kiến trúc, kết cấu, điện nước, ADSL, Truyền hình cáp

Ngày đăng: 06/12/2016
File download: [filethietke.vn]Bt cấp 4.rar
Dung lượng file: 1.22 MB
Phong cách: Hiện đại
Kích thước: Rộng 4m, Dài 13m, DT 52m2
CÔNG CỤ THIẾT KẾ:
Autocad
Sketchup
3D Max
Revit
Khác...
CÁC HẠNG MỤC CỦA BẢN VẼ:
Kiến trúc
Kết cấu
Điện
Nước
PCCC
Phối cảnh
Dự toán
Tài liệu
Khác...

NGƯỜI ĐĂNG
(Hạng vàng)
Xem trang
bản vẽ nhà
Bản vẽ
4942
bộ sưu tập bản vẽ nhà
Bộ sưu tập
0
đánh giá mẫu bản vẽ
Đánh giá (5350)
5/5
ngày tham gia bản vẽ nhà đẹp
Ngày tham gia
22/7/2014

Mô tả chi tiết

File bản vẽ autocad thiết kế nhà phố 4 tầng kích thước 4x13m full đầy đủ kiến trúc, kết cấu, điện nước, ADSL, Truyền hình cáp

Hình ảnh bản vẽ:

Bình luận (0)


Đánh giá (1)

ĐÁNH GIÁ TRUNG BÌNH
5/5

(1 Nhận xét)
Bản vẽ rất tốt (1)
Bản vẽ tốt (0)
Bản vẽ rất hay (0)
Bản vẽ hay (0)
Bình thường (0)
Chia sẻ nhận xét về bản vẽ
 Viết nhận xét của bạn
CadViet Pro
Thời gian 11:50
7/1/2020
Bản vẽ rất tốt   
 Đã đăng bản vẽ này
Bản vẽ thiết tốt thích hợp để tham khảo
HỖ TRỢ TRỰC TUYẾN