MÃ BẢN VẼ
27770
Bản vẽ autocad thiết kế Nhà xưởng thuốc cỏ 3 tầng 18.3x63m
(
1 Nhận xét)
Viết đánh giá
Bình luận: 0
Download: 0
Lượt xem: 720
FIle autocad bản thiết kế xưởng thuốc cỏ, nhà xưởng công nghiệp bê tông cốt thép 3 tầng
Ngày đăng: 21/3/2023
File download:
XUONG THUOC CO 3 TANG 18.3X63M.rar
Dung lượng file:
13 MB
Phong cách: Chưa xác định
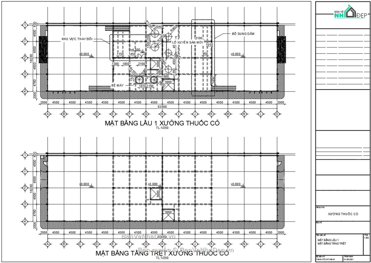
Kích thước: Rộng 18,3m, Dài 63m, DT 1152,9m2
CÔNG CỤ THIẾT KẾ:

Autocad

Sketchup

3D Max

Revit

Khác...
CÁC HẠNG MỤC CỦA BẢN VẼ:

Kiến trúc

Kết cấu

Điện

Nước

PCCC

Phối cảnh

Dự toán

Tài liệu

Khác...
NGƯỜI ĐĂNG
Bản vẽ
259
Bộ sưu tập
0
Đánh giá (601)
5/5
Ngày tham gia
25/2/2023
Mô tả chi tiết
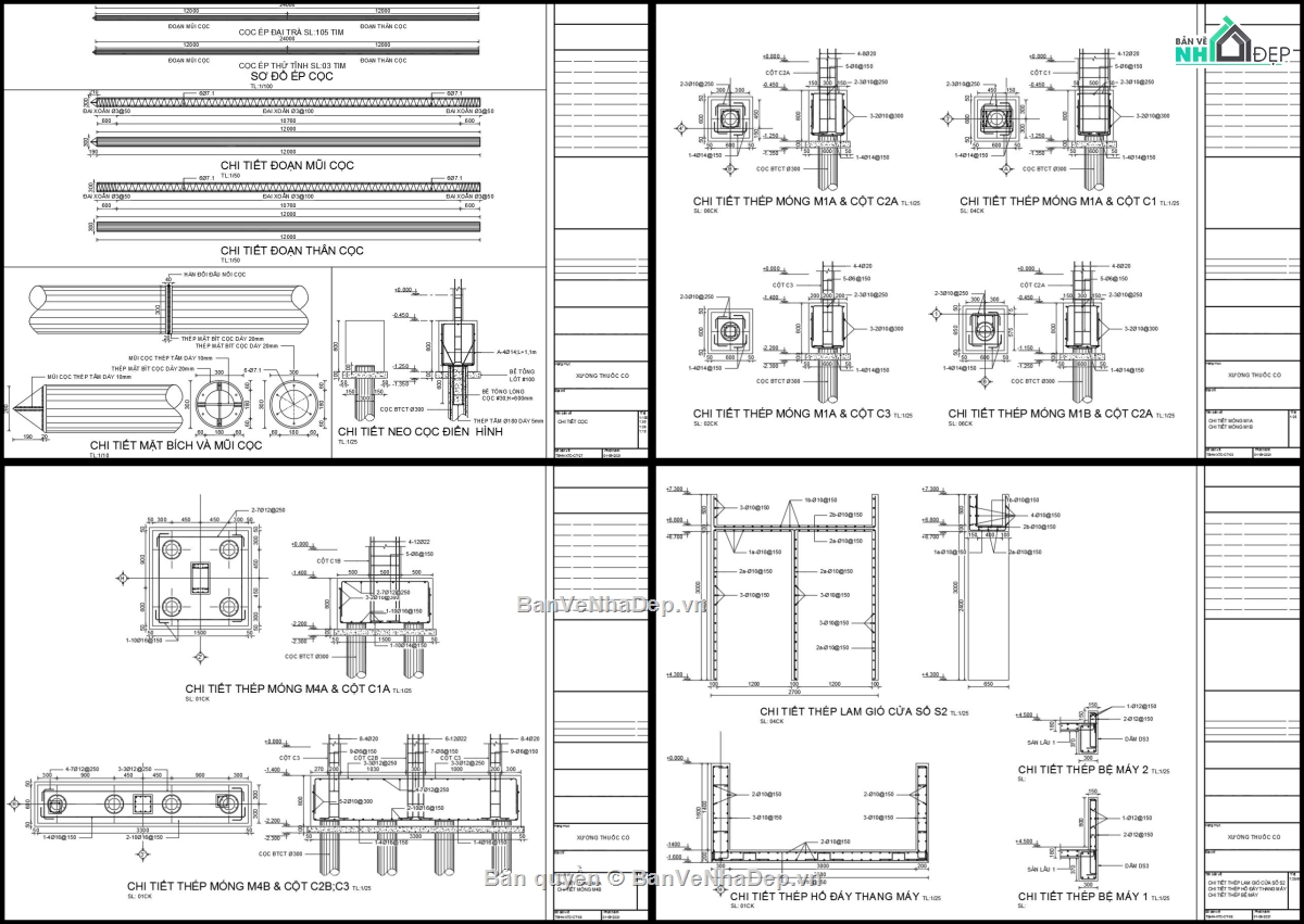
Hồ sơ thiết kế xưởng thuốc cỏ bao gồm:
- Đầy đủ phần kiến trúc công năng, mặt cắt bố trí thiết bị
- Kết cấu đầy đủ: Móng cọc ly tâm D300; Kết cầu BTCT liền khối; Phần mái sử dụng kết cấu thép kết hợp xà gồ mái tôn.
- Cấp thoát nước.
Bình luận (0)
Đánh giá (1)
ĐÁNH GIÁ TRUNG BÌNH
5/5
(
1 Nhận xét)
Bản vẽ rất tốt (1)
Bản vẽ tốt (0)
Bản vẽ rất hay (0)
Bản vẽ hay (0)
Bình thường (0)
7Plus
Thời gian 21:15
21/3/2023
Bản vẽ rất tốt
Đã đăng bản vẽ này
Bản vẽ rất tốt và phù hợp để tham khảo