MÃ BẢN VẼ
45938

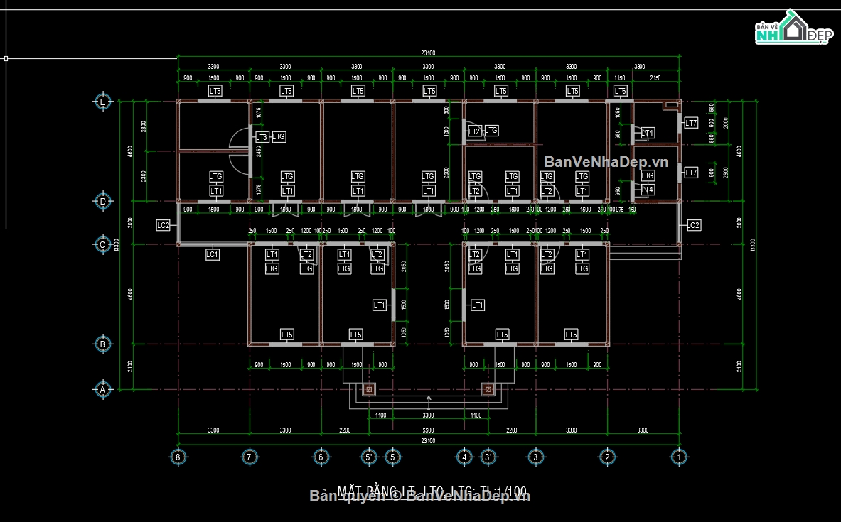
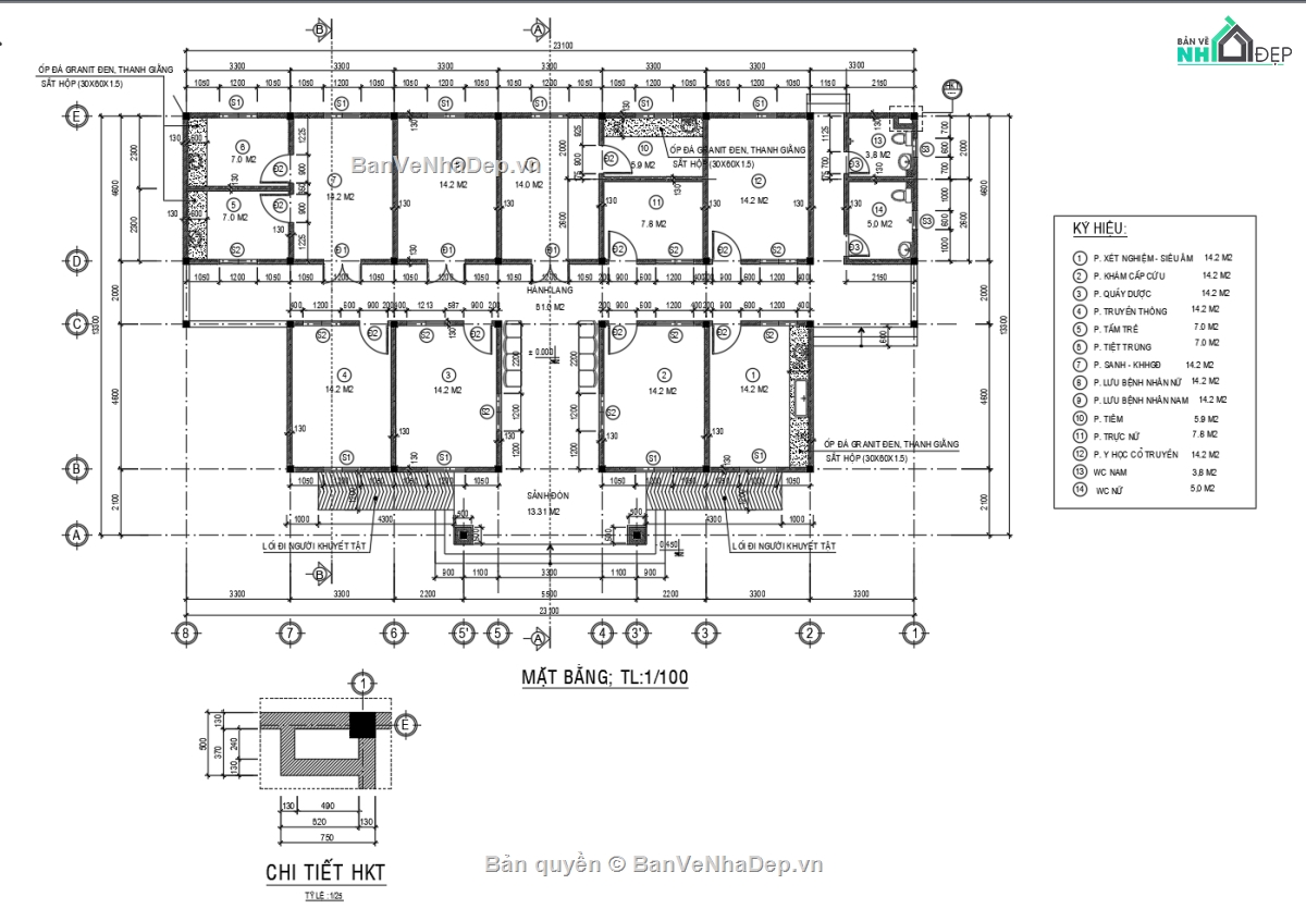
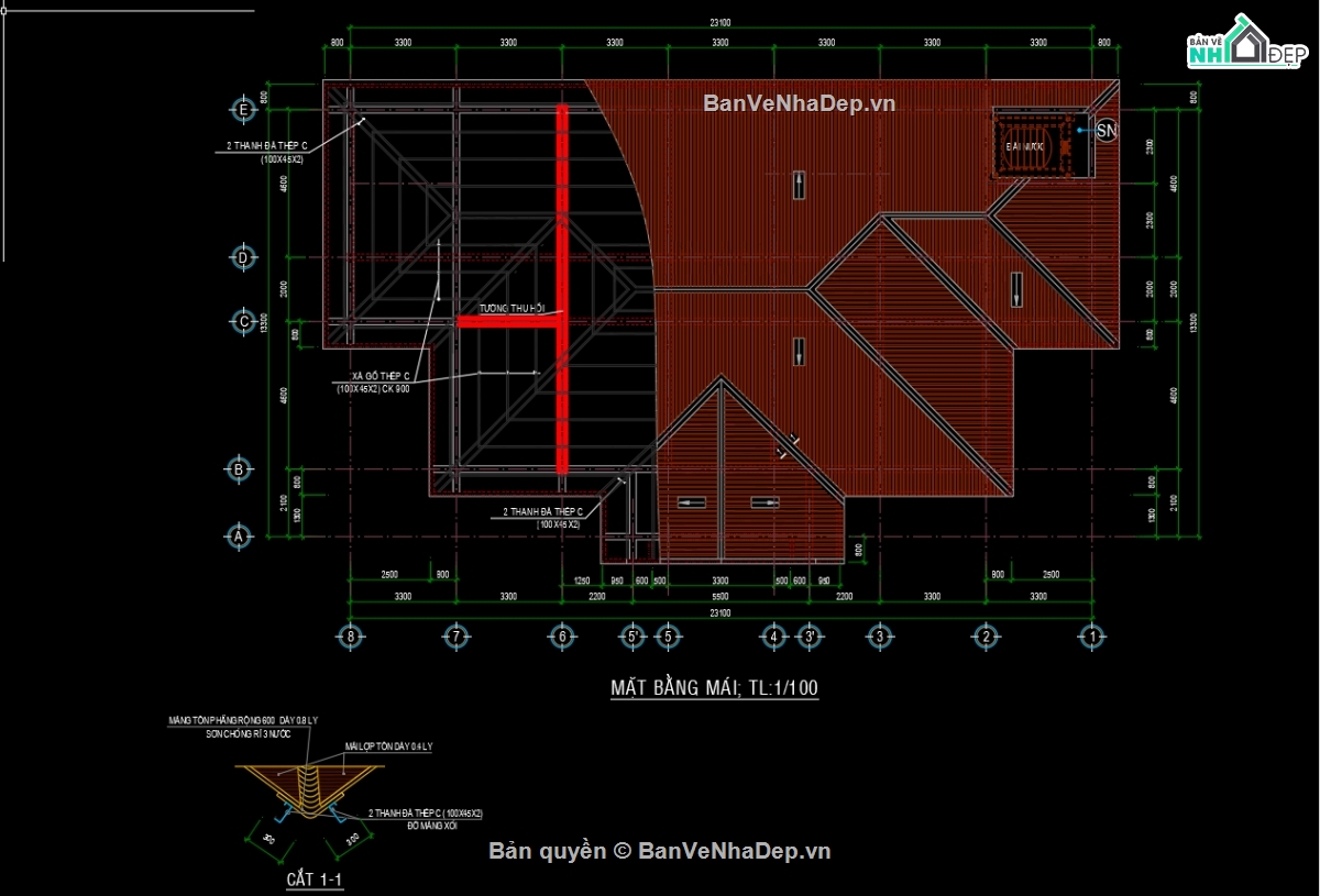
Bản vẽ autocad trạm xá xã kích thước thiết kế 13.3x23.1m full kiến trúc, kết cấu, điện nước

  (1 Nhận xét)     Viết đánh giá        0     0     251

Bản vẽ trạm xá xã ngọc linh với full danh mục kiến trúc, kết cấu, điện, nước

Ngày đăng: 17/3/2024
File download: BAN VE TRAM Y TE XA.rar
Dung lượng file: 5.15 MB
Phong cách: Hiện đại
Kích thước: Rộng 13,3m, Dài 23,1m, DT 307,23m2
CÔNG CỤ THIẾT KẾ:
Autocad
Sketchup
3D Max
Revit
Khác...
CÁC HẠNG MỤC CỦA BẢN VẼ:
Kiến trúc
Kết cấu
Điện
Nước
PCCC
Phối cảnh
Dự toán
Tài liệu
Khác...

NGƯỜI ĐĂNG
(Hạng vàng)
Xem trang
bản vẽ nhà
Bản vẽ
235
bộ sưu tập bản vẽ nhà
Bộ sưu tập
0
đánh giá mẫu bản vẽ
Đánh giá (249)
4/5
ngày tham gia bản vẽ nhà đẹp
Ngày tham gia
14/1/2019

Mô tả chi tiết

công năng: 9 phòng bệnh của trạm xá, bản vẽ đầy đủ đầy đủ danh mục mẫu thi công. gửi các bạn tham khảo.

Bình luận (0)


Đánh giá (1)

ĐÁNH GIÁ TRUNG BÌNH
5/5

(1 Nhận xét)
Bản vẽ rất tốt (1)
Bản vẽ tốt (0)
Bản vẽ rất hay (0)
Bản vẽ hay (0)
Bình thường (0)
Chia sẻ nhận xét về bản vẽ
 Viết nhận xét của bạn
KTS HƯNG
Thời gian 23:10
5/4/2024
Bản vẽ rất tốt   
 Đã mua bản vẽ tại Banvenhadep.vn
Bản vẽ thiết tốt thích hợp để tham khảo
HỖ TRỢ TRỰC TUYẾN