MÃ BẢN VẼ
53048
Bản vẽ bản vẽ đầy đủ và đầy đủ mẫu nhà phố 2 tầng kích thước xây dựng 8x14.3m
Hồ sơ bản vẽ mẫu nhà phố hoàn chỉnh bao hạng mục bản vẽ hồ sơ revit phần kiến trúc, hồ sơ cad phần kết cấu, điện chiếu sáng, cấp thoát nước
Ngày đăng: 04/2/2025
File download:
A HIEN.rar
Dung lượng file:
167 MB
Phong cách: Hiện đại
Kích thước: Rộng 8m, Dài 14m, DT 112m2
CÔNG CỤ THIẾT KẾ:

Autocad

Sketchup

3D Max

Revit

Khác...
CÁC HẠNG MỤC CỦA BẢN VẼ:

Kiến trúc

Kết cấu

Điện

Nước

PCCC

Phối cảnh

Dự toán

Tài liệu

Khác...
NGƯỜI ĐĂNG
Bản vẽ
55
Bộ sưu tập
0
Đánh giá (67)
5/5
Ngày tham gia
2/3/2022
Mô tả chi tiết
Hồ sơ bản vẽ đầy đủ mẫu nhà phố 2 tầng với kích thước xây dựng rộng 8m x dài 14.3m
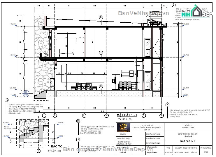
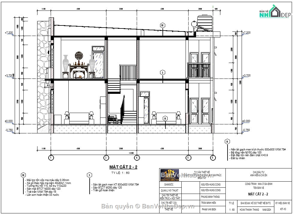
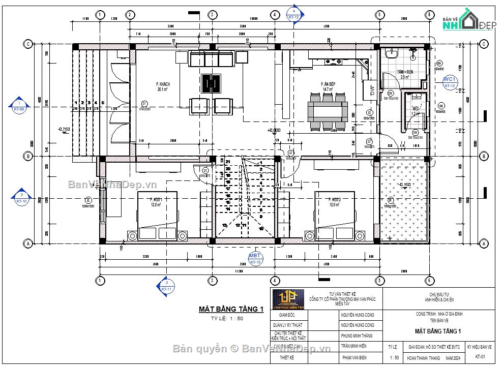
- Bản vẽ bao hạng mục bản vẽ file revit phần kiến trúc hạng mục bản vẽ toàn bộ hồ sơ mặt bằng bố trí công năng, mặt cắt, đầy đủ kiến trúc
- Bản vẽ cad phần kết cấu bao hạng mục bản vẽ toàn bộ hồ sơ móng,cột, dầm, sàn, bảng thống kê thép đầy đủ
- Bản vẽ cad phần điện chiếu sáng bao hạng mục bản vẽ hồ sơ mặt bằng đi dây điện, bảng thống kê thiết bị điện
-bản vẽ cad phần cấp thoát nước bao hạng mục bản vẽ hồ sơ mặt bằng đi đường ống cấp thoát nước, bể tự hoại, bảng thống kê thiết vật tư nước
tổng số hồ sơ : phần kiến trúc bao hạng mục bản vẽ 25 hồ sơ đầy đủ và file phối cảnh công trình
-phần kết cấu bao hạng mục bản vẽ 25 hồ sơ đầy đủ các hồ sơ từ móng đến mái
-phần hồ sơ điện bao hạng mục bản vẽ 12 hồ sơ mặt bằng và đầy đủ bố trí đường điện
-phần hồ sơ cấp thoát nước bao hạng mục bản vẽ 11 hồ sơ mặt bằng và đầy đủ bố trí đường nước
tổng số hồ sơ hạng mục bản vẽ 73 hồ sơ đầy đủ để thi công xây dựng
công trình đã được thi công và triển khai thực tế
Bình luận (0)
Đánh giá (1)
ĐÁNH GIÁ TRUNG BÌNH
5/5
(
1 Nhận xét)
Bản vẽ rất tốt (1)
Bản vẽ tốt (0)
Bản vẽ rất hay (0)
Bản vẽ hay (0)
Bình thường (0)
Bản vẽ rất tốt
Đã mua bản vẽ tại Banvenhadep.vn
Bản vẽ thiết tốt thích hợp để tham khảo