MÃ BẢN VẼ
61761
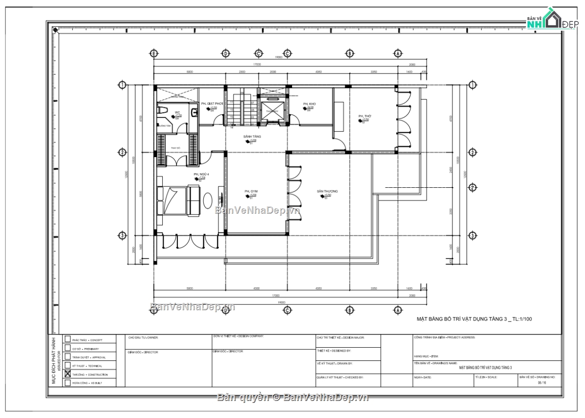
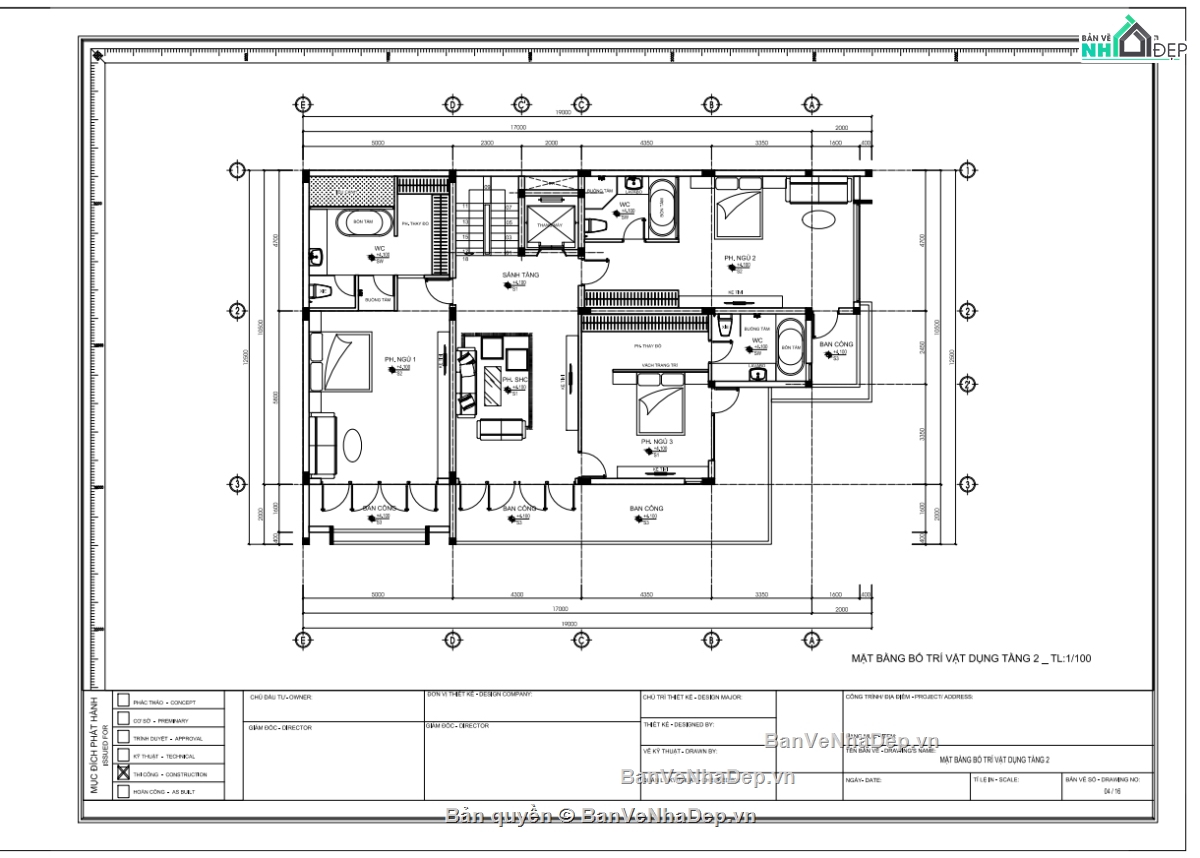
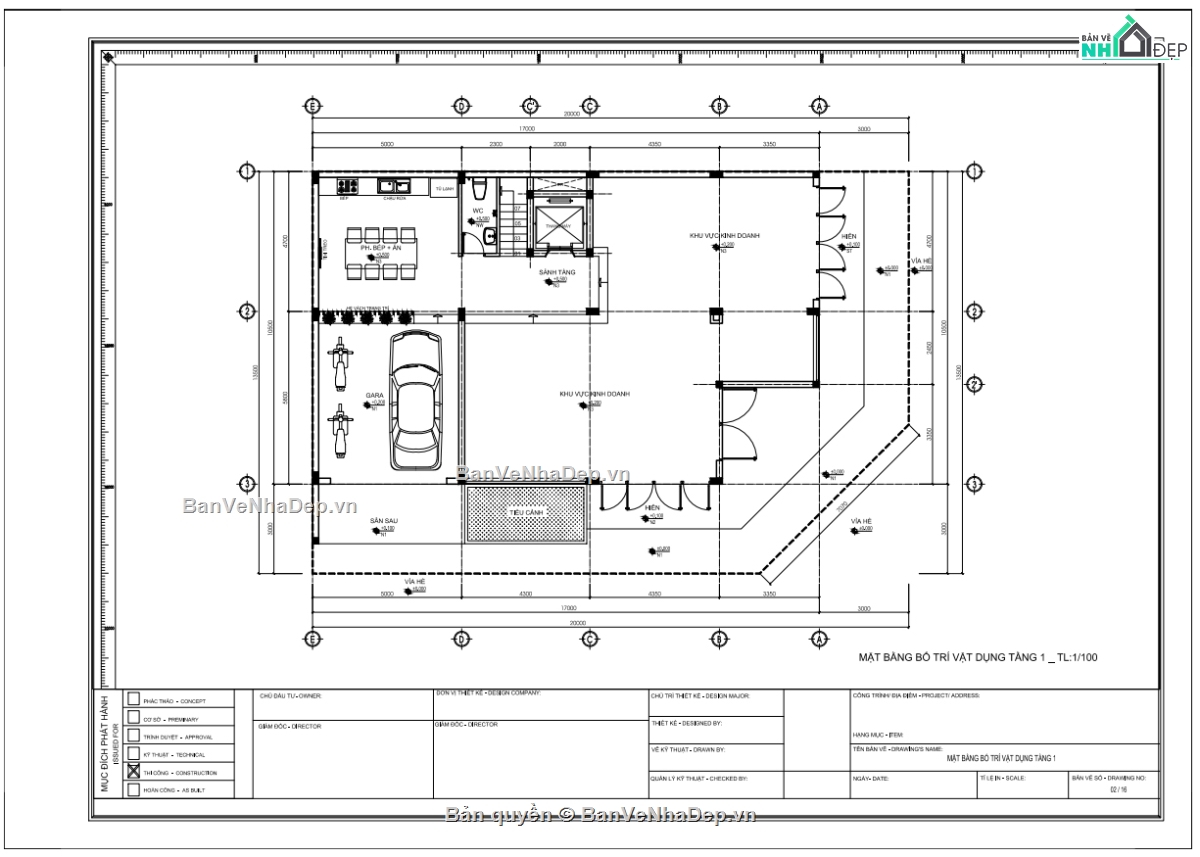
Bản vẽ biệt thự 3 tầng 10.5x17m (full hồ sơ thi công kiến trúc, kết cấu, điện nước)
Biệt thự 3 tầng 10,5x17m với đầy đủ công năng, không gian hiện đại sang trọng. Hồ sơ thiết kế thi công hạng mục Kiến trúc, kết cấu, ảnh 3D ngoại thất. File Autocad và file PDF.
Ngày đăng: 02/10/2025
File download:
BIỆT THỰ 3 TẦNG 10,5x17m.rar
Dung lượng file:
22.8 MB
Phong cách: Hiện đại
Kích thước: Rộng 10,5m, Dài 17m, DT 178,5m2
CÔNG CỤ THIẾT KẾ:

Autocad

Sketchup

3D Max

Revit

Khác...
CÁC HẠNG MỤC CỦA BẢN VẼ:

Kiến trúc

Kết cấu

Điện

Nước

PCCC

Phối cảnh

Dự toán

Tài liệu

Khác...
NGƯỜI ĐĂNG
Bản vẽ
24
Bộ sưu tập
0
Đánh giá (61)
5/5
Ngày tham gia
18/9/2025
Mô tả chi tiết
Hồ sơ thiết kế bao gồm:
1. Ảnh phối cảnh 3D ngoại thất công trình;
2. Phần Kiến trúc (Bản vẽ thiết kế chi tiết thi công);
3. Phần Kết cấu (Bản vẽ thiết kế chi tiết thi công);
4. Phần Điện nước - Điều hòa thông gió, chiếu sáng (Bản vẽ thiết kế chi tiết thi công).
5. File PDF full hồ sơ thiết kế chi tiết thi công
Bình luận (0)
Đánh giá (1)
ĐÁNH GIÁ TRUNG BÌNH
5/5
(
1 Nhận xét)
Bản vẽ rất tốt (1)
Bản vẽ tốt (0)
Bản vẽ rất hay (0)
Bản vẽ hay (0)
Bình thường (0)
Bản vẽ rất tốt
Đã mua bản vẽ tại Banvenhadep.vn
Bản vẽ rất tốt và phù hợp để tham khảo