MÃ BẢN VẼ
61756
Bản vẽ Biệt thự 3 tầng 16.3x15.2m (full hồ sơ thi công kiến trúc, kết cấu, điện nước)
(
1 Nhận xét)
Viết đánh giá
Bình luận: 0
Download: 1
Lượt xem: 104
Biệt thự 3 tầng rất đẹp 16,3x15,2m. Full hồ sơ thiết kế thi công Kiến trúc, kết cấu, điện nước, ảnh 3D ngoại thất. File Autocad và file PDF.
Ngày đăng: 28/9/2025
File download:
BIỆT THỰ 3 TẦNG 16,3x15,2m.rar
Dung lượng file:
29.0 MB
Phong cách: Hiện đại
Kích thước: ...
CÔNG CỤ THIẾT KẾ:

Autocad

Sketchup

3D Max

Revit

Khác...
CÁC HẠNG MỤC CỦA BẢN VẼ:

Kiến trúc

Kết cấu

Điện

Nước

PCCC

Phối cảnh

Dự toán

Tài liệu

Khác...
NGƯỜI ĐĂNG
Bản vẽ
24
Bộ sưu tập
0
Đánh giá (61)
5/5
Ngày tham gia
18/9/2025
Mô tả chi tiết
Hồ sơ thiết kế bao gồm 4 phần:
1. Ảnh phối cảnh 3D ngoại thất công trình;
2. Phần Kiến trúc (Bản vẽ thiết kế chi tiết thi công);
3. Phần Kết cấu (Bản vẽ thiết kế chi tiết thi công);
4. Phần Điện nước - Điều hòa thông gió, chiếu sáng (Bản vẽ thiết kế chi tiết thi công).
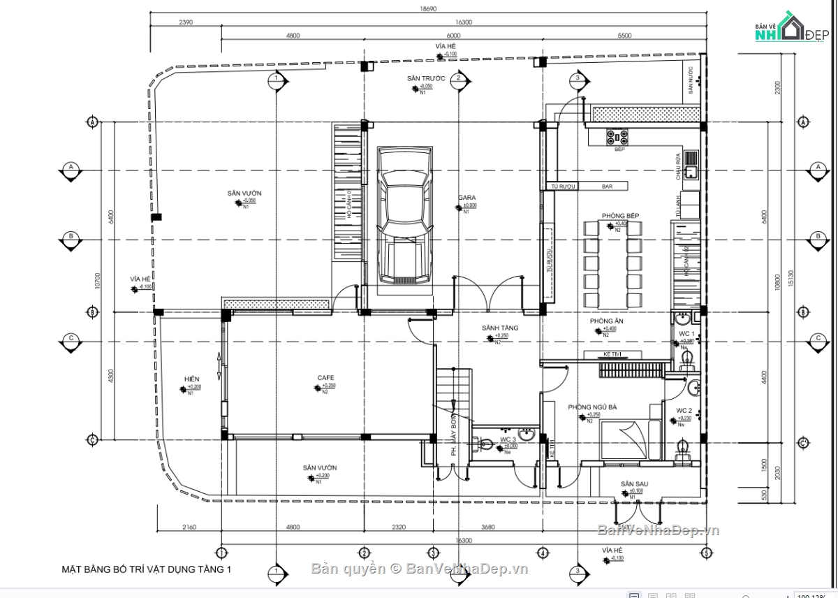
Quy mô nhà bao gồm 3 tầng:
Tầng 1: Nhà để xe, phòng bếp ăn, phòng ngủ, kinh doanh cafe sân vườn.
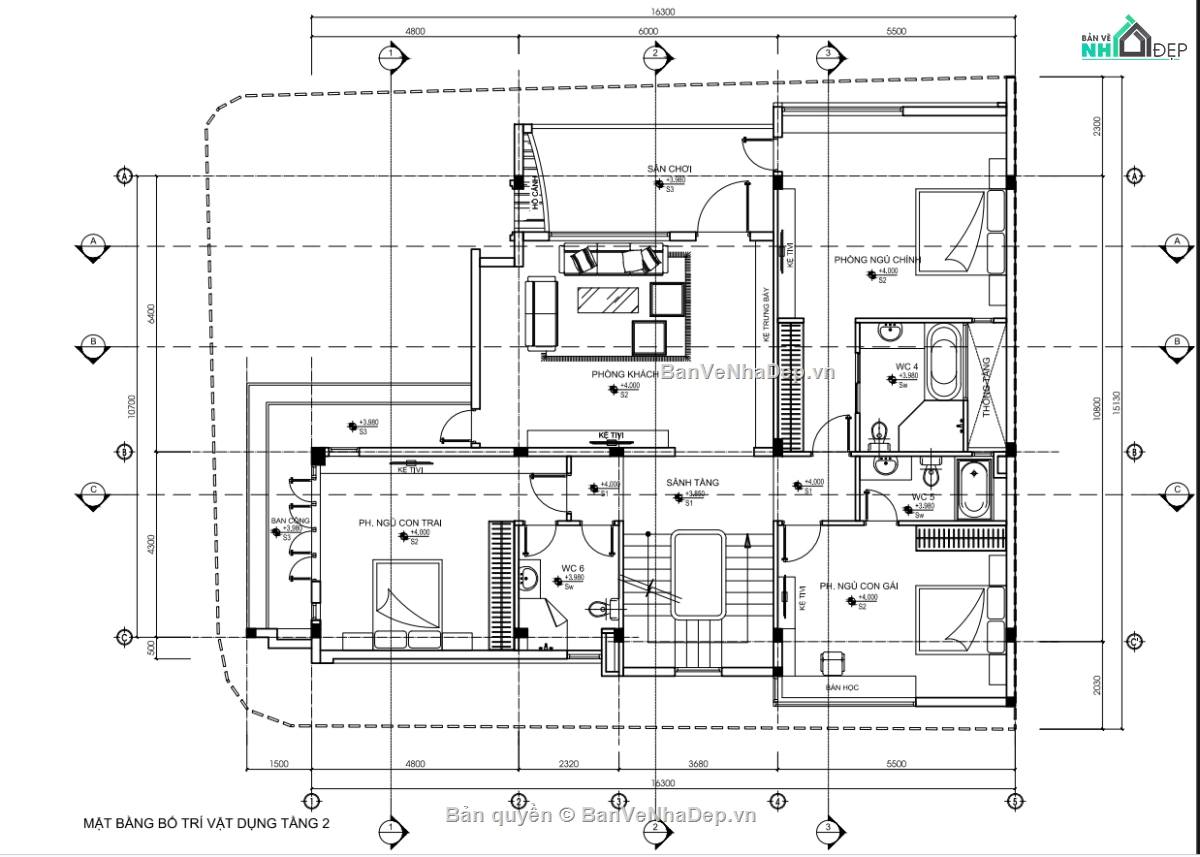
Tầng 2: Phòng khách, 3 phòng ngủ (gồm 1 phòng ngủ master)
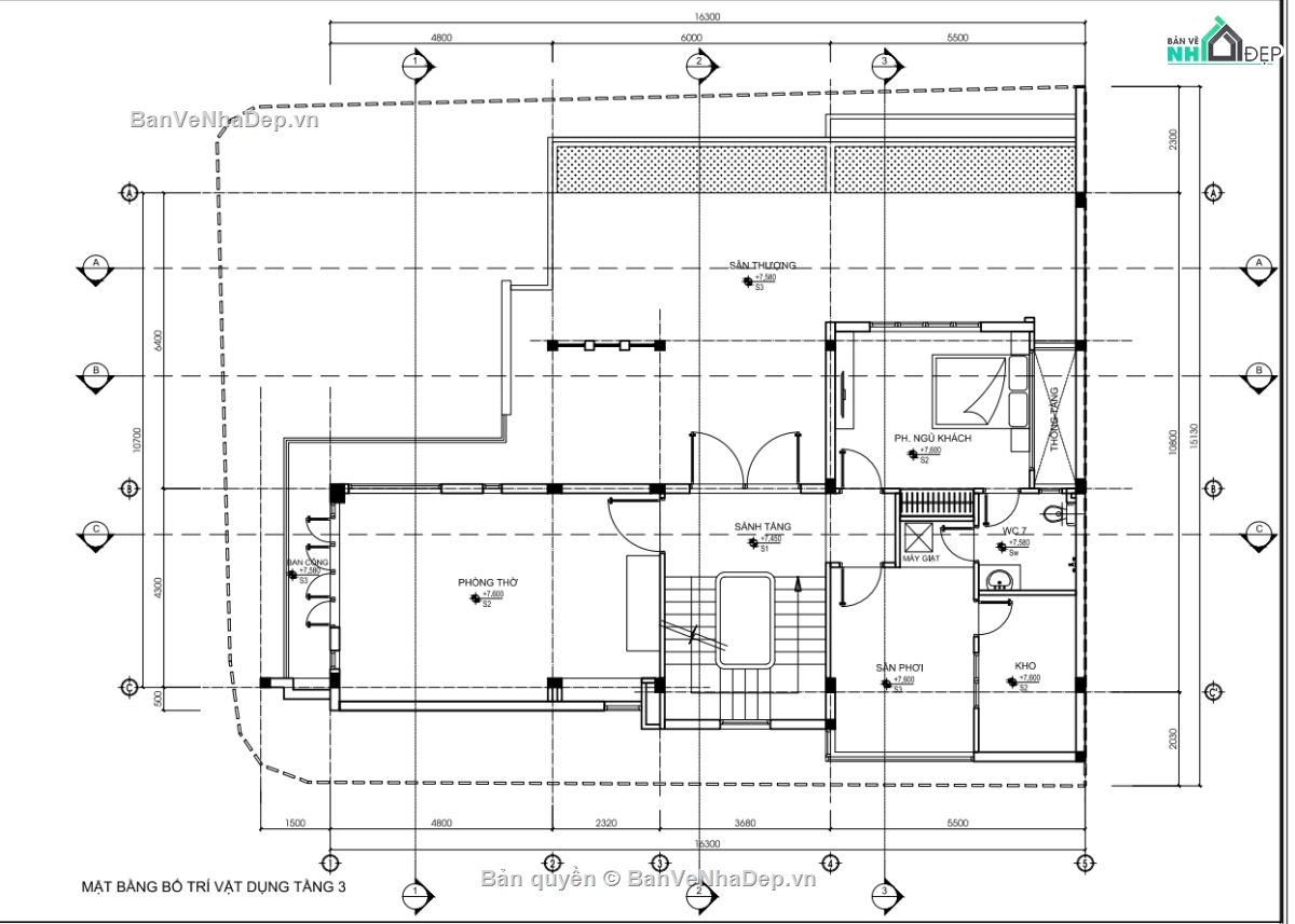
Tầng 3: Phòng thờ, phòng ngủ khách, phòng giặt phơi, sân thượng
Công trình hiện đại, đầy đủ công năng sự dụng. Rất phù hợp để tham khảo, phát triển và thi công
Bình luận (0)
Đánh giá (1)
ĐÁNH GIÁ TRUNG BÌNH
5/5
(
1 Nhận xét)
Bản vẽ rất tốt (1)
Bản vẽ tốt (0)
Bản vẽ rất hay (0)
Bản vẽ hay (0)
Bình thường (0)
Bản vẽ rất tốt
Đã đăng bản vẽ này
Bản vẽ rất tốt và phù hợp để tham khảo