MÃ BẢN VẼ
61764

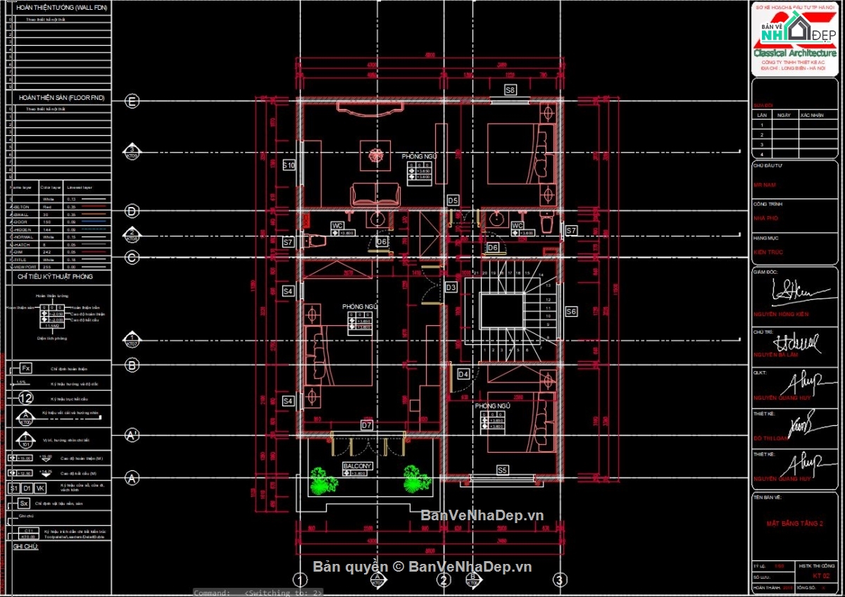
Bản vẽ biệt thự 3 tầng phong cách địa trung hải 8x11m

  (1 Nhận xét)     Viết đánh giá        0     0     64

Full hồ sơ autocad mẫu biệt thự 3 tầng siêu đẹp với phong cách Địa Trung Hải tinh tế

Ngày đăng: 04/10/2025
File download: 248. Biet thu pho dep 8x11x3t.zip
Dung lượng file: 7.2 MB
Phong cách: Tân cổ điển
Kích thước: Rộng 8m, Dài 11m, DT 88m2
CÔNG CỤ THIẾT KẾ:
Autocad
Sketchup
3D Max
Revit
Khác...
CÁC HẠNG MỤC CỦA BẢN VẼ:
Kiến trúc
Kết cấu
Điện
Nước
PCCC
Phối cảnh
Dự toán
Tài liệu
Khác...

NGƯỜI ĐĂNG
(Hạng vàng)
Xem trang
bản vẽ nhà
Bản vẽ
58
bộ sưu tập bản vẽ nhà
Bộ sưu tập
0
đánh giá mẫu bản vẽ
Đánh giá (74)
5/5
ngày tham gia bản vẽ nhà đẹp
Ngày tham gia
2/4/2024

Mô tả chi tiết

Full hồ sơ autocad mẫu biệt thự 3 tầng siêu đẹp với phong cách Địa Trung Hải tinh tế

Tầng 1: Phòng khách, phòng bếp ăn, phòng thờ, phòng ngủ

Tầng 2: 3 phòng ngủ

Tầng 3: 2 phòng ngủ

Bình luận (0)


Đánh giá (1)

ĐÁNH GIÁ TRUNG BÌNH
5/5

(1 Nhận xét)
Bản vẽ rất tốt (1)
Bản vẽ tốt (0)
Bản vẽ rất hay (0)
Bản vẽ hay (0)
Bình thường (0)
Chia sẻ nhận xét về bản vẽ
 Viết nhận xét của bạn
TungARC
Thời gian 16:12
4/10/2025
Bản vẽ rất tốt   
 Đã đăng bản vẽ này
Bản vẽ rất tốt và phù hợp để tham khảo
HỖ TRỢ TRỰC TUYẾN