MÃ BẢN VẼ
55997
Bản vẽ biệt thự mái thái 1 tầng 8x16m
(
1 Nhận xét)
Viết đánh giá
Bình luận: 0
Download: 0
Lượt xem: 169
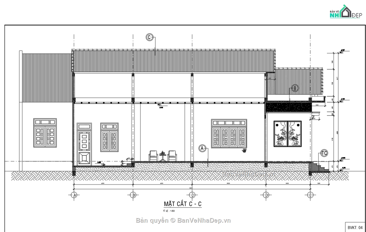
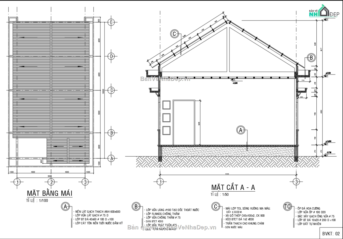
Bản vẽ biệt thự mái thái 1 tầng 8x16m. Phong cách thiết kế cổ điển ở vùng nông thôn. Công năng: 1 phòng khách, 1 phòng thờ, 1 phòng sinh hoạt chung, 1 phòng ngủ, 1 phòng bếp. WC riêng bên ngoài
Ngày đăng: 07/6/2025
File download:
33. Nha Mai Thai 8x16m - 1 Tang.rar
Dung lượng file:
61.2 MB
Phong cách: Tân cổ điển
Kích thước: Rộng 8m, Dài 16m, DT 128m2
CÔNG CỤ THIẾT KẾ:

Autocad

Sketchup

3D Max

Revit

Khác...
CÁC HẠNG MỤC CỦA BẢN VẼ:

Kiến trúc

Kết cấu

Điện

Nước

PCCC

Phối cảnh

Dự toán

Tài liệu

Khác...
NGƯỜI ĐĂNG
Bản vẽ
47
Bộ sưu tập
0
Đánh giá (98)
5/5
Ngày tham gia
25/5/2024
Mô tả chi tiết
Bản vẽ biệt thự mái thái 1 tầng 8x16m. Phong cách thiết kế cổ điển ở vùng nông thôn.
Công năng: 1 phòng khách, 1 phòng thờ, 1 phòng sinh hoạt chung, 1 phòng ngủ, 1 phòng bếp. WC riêng bên ngoài
Bản vẽ cơ bản dạng tham khảo, mọi người tải về để phát triển thêm
Bình luận (0)
Đánh giá (1)
ĐÁNH GIÁ TRUNG BÌNH
5/5
(
1 Nhận xét)
Bản vẽ rất tốt (1)
Bản vẽ tốt (0)
Bản vẽ rất hay (0)
Bản vẽ hay (0)
Bình thường (0)
Bản vẽ rất tốt
Đã mua bản vẽ tại Banvenhadep.vn
Bản vẽ rất tốt và phù hợp để tham khảo