MÃ BẢN VẼ
63162

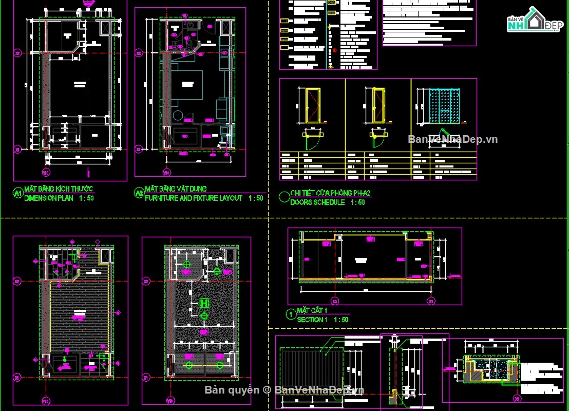
Bản vẽ CAD kèm thuyết minh Thiết kế kỹ thuật kiến trúc khách sạn Whynham Thanh Thủy

  (1 Nhận xét)     Viết đánh giá        0     0     24

Bản vẽ CAD kèm thuyết minh Thiết kế kỹ thuật chi tiết kiến trúc khách sạn Whynham Thanh Thủy

Danh mục: Khách sạn
Ngày đăng: 01/12/2025
File download: TK_1925_WDH_TKKT_KT_CAD.rar
Dung lượng file: 222 MB
Phong cách: Hiện đại
Kích thước: ...
CÔNG CỤ THIẾT KẾ:
Autocad
Sketchup
3D Max
Revit
Khác...
CÁC HẠNG MỤC CỦA BẢN VẼ:
Kiến trúc
Kết cấu
Điện
Nước
PCCC
Phối cảnh
Dự toán
Tài liệu
Khác...

NGƯỜI ĐĂNG
(Hạng vàng)
Xem trang
bản vẽ nhà
Bản vẽ
92
bộ sưu tập bản vẽ nhà
Bộ sưu tập
0
đánh giá mẫu bản vẽ
Đánh giá (113)
5/5
ngày tham gia bản vẽ nhà đẹp
Ngày tham gia
2/4/2024

Mô tả chi tiết

Bản vẽ CAD kèm thuyết minh Thiết kế kỹ thuật chi tiết kiến trúc khách sạn Whynham Thanh Thủy với quy mô 35 tầng nổi, 1 tầng hầm, diện tích xây dựng gần 4000m2

Bình luận (0)


Đánh giá (1)

ĐÁNH GIÁ TRUNG BÌNH
5/5

(1 Nhận xét)
Bản vẽ rất tốt (1)
Bản vẽ tốt (0)
Bản vẽ rất hay (0)
Bản vẽ hay (0)
Bình thường (0)
Chia sẻ nhận xét về bản vẽ
 Viết nhận xét của bạn
TungARC
Thời gian 11:30
1/12/2025
Bản vẽ rất tốt   
 Đã đăng bản vẽ này
Bản vẽ rất tốt và phù hợp để tham khảo
HỖ TRỢ TRỰC TUYẾN