MÃ BẢN VẼ
63106
Bản vẽ CAD kiến trúc, điện nước mẫu nhà phố tân cổ 5x13m
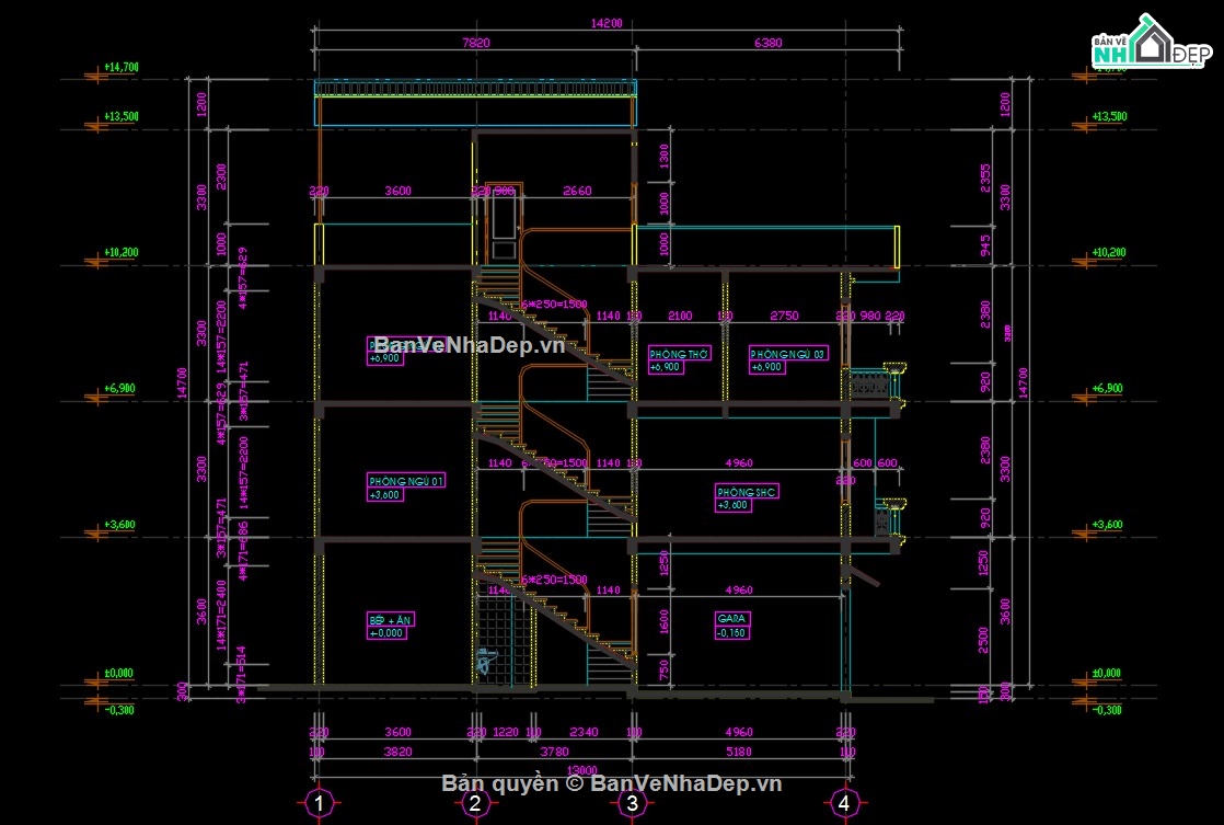
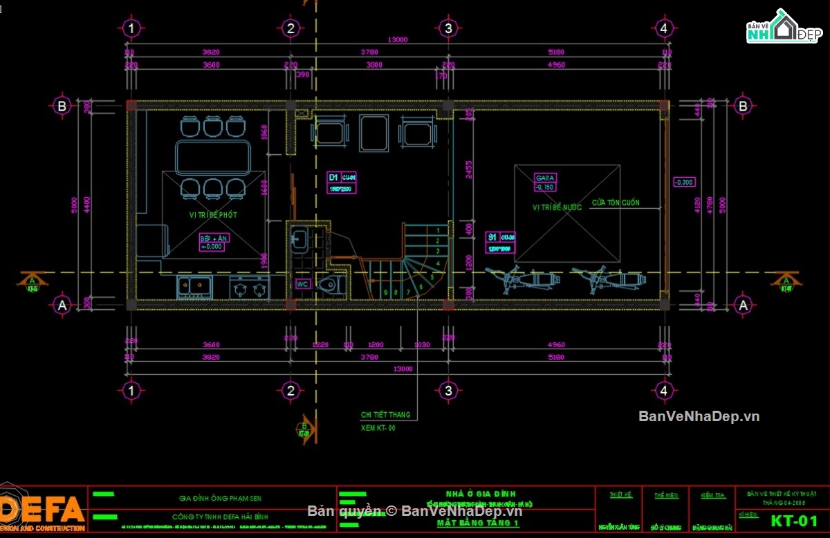
Bản vẽ CAD TKCS kiến trúc, điện nước mẫu nhà phố tân cổ 5x13m 3 tầng 1 tum.
Ngày đăng: 19/11/2025
File download:
Nha bac Sen Phạm.rar
Dung lượng file:
1.4MB
Phong cách: Tân cổ điển
Kích thước: Rộng 5m, Dài 13m, DT 65m2
CÔNG CỤ THIẾT KẾ:

Autocad

Sketchup

3D Max

Revit

Khác...
CÁC HẠNG MỤC CỦA BẢN VẼ:

Kiến trúc

Kết cấu

Điện

Nước

PCCC

Phối cảnh

Dự toán

Tài liệu

Khác...
NGƯỜI ĐĂNG
Bản vẽ
63
Bộ sưu tập
0
Đánh giá (81)
5/5
Ngày tham gia
2/4/2024
Mô tả chi tiết
Bản vẽ CAD TKCS kiến trúc, điện nước mẫu nhà phố tân cổ 5x13m quy mô 3 tầng 1 tum.
tầng 1: gara + bếp
tầng 2: P khách (sinh hoạt chung) + phòng ngủ + WC
tầng 3: 2 phòng ngủ + phòng thờ + WC
tầng tum: phòng giặt + sân phơi
Bình luận (0)
Đánh giá (1)
ĐÁNH GIÁ TRUNG BÌNH
5/5
(
1 Nhận xét)
Bản vẽ rất tốt (1)
Bản vẽ tốt (0)
Bản vẽ rất hay (0)
Bản vẽ hay (0)
Bình thường (0)
Bản vẽ rất tốt
Đã mua bản vẽ tại Banvenhadep.vn
Bản vẽ rất tốt và phù hợp để tham khảo