MÃ BẢN VẼ
63115
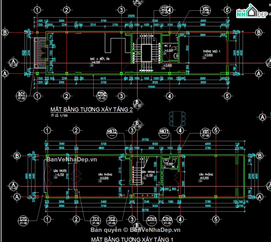
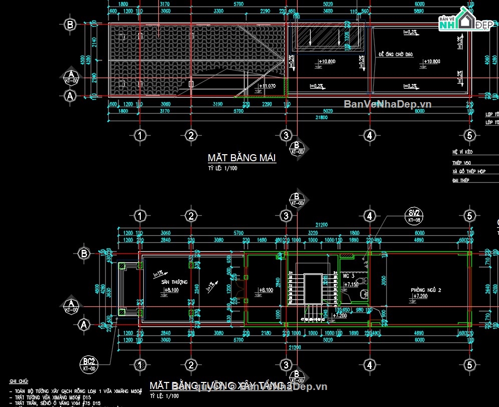
Bản vẽ CAD kiến trúc hoàn thiện mẫu nhà phố 3 tầng mái Thái 4.5x20m
Bản vẽ CAD kiến trúc hoàn thiện mẫu nhà phố 3 tầng mái Thái 4,5x20m tầng 1 là văn phòng kinh doanh
Ngày đăng: 21/11/2025
File download:
nha 3 tang 4,5x20 KT hoan thien.rar
Dung lượng file:
3.33MB
Phong cách: Hiện đại
Kích thước: Rộng 4,5m, Dài 20m, DT 90m2
CÔNG CỤ THIẾT KẾ:

Autocad

Sketchup

3D Max

Revit

Khác...
CÁC HẠNG MỤC CỦA BẢN VẼ:

Kiến trúc

Kết cấu

Điện

Nước

PCCC

Phối cảnh

Dự toán

Tài liệu

Khác...
NGƯỜI ĐĂNG
Bản vẽ
58
Bộ sưu tập
0
Đánh giá (70)
5/5
Ngày tham gia
2/4/2024
Mô tả chi tiết
Bản vẽ CAD kiến trúc hoàn thiện mẫu nhà phố 3 tầng mái Thái 4,5x20m
tầng 1 là văn phòng kinh doanh + wc
tầng 2 là khu SHC+bếp ăn, WC, P ngủ
tầng 3 là P ngủ , WC, sân phơi
Bình luận (0)
Đánh giá (1)
ĐÁNH GIÁ TRUNG BÌNH
5/5
(
1 Nhận xét)
Bản vẽ rất tốt (1)
Bản vẽ tốt (0)
Bản vẽ rất hay (0)
Bản vẽ hay (0)
Bình thường (0)
Bản vẽ rất tốt
Đã đăng bản vẽ này
Bản vẽ rất tốt và phù hợp để tham khảo