MÃ BẢN VẼ
63082

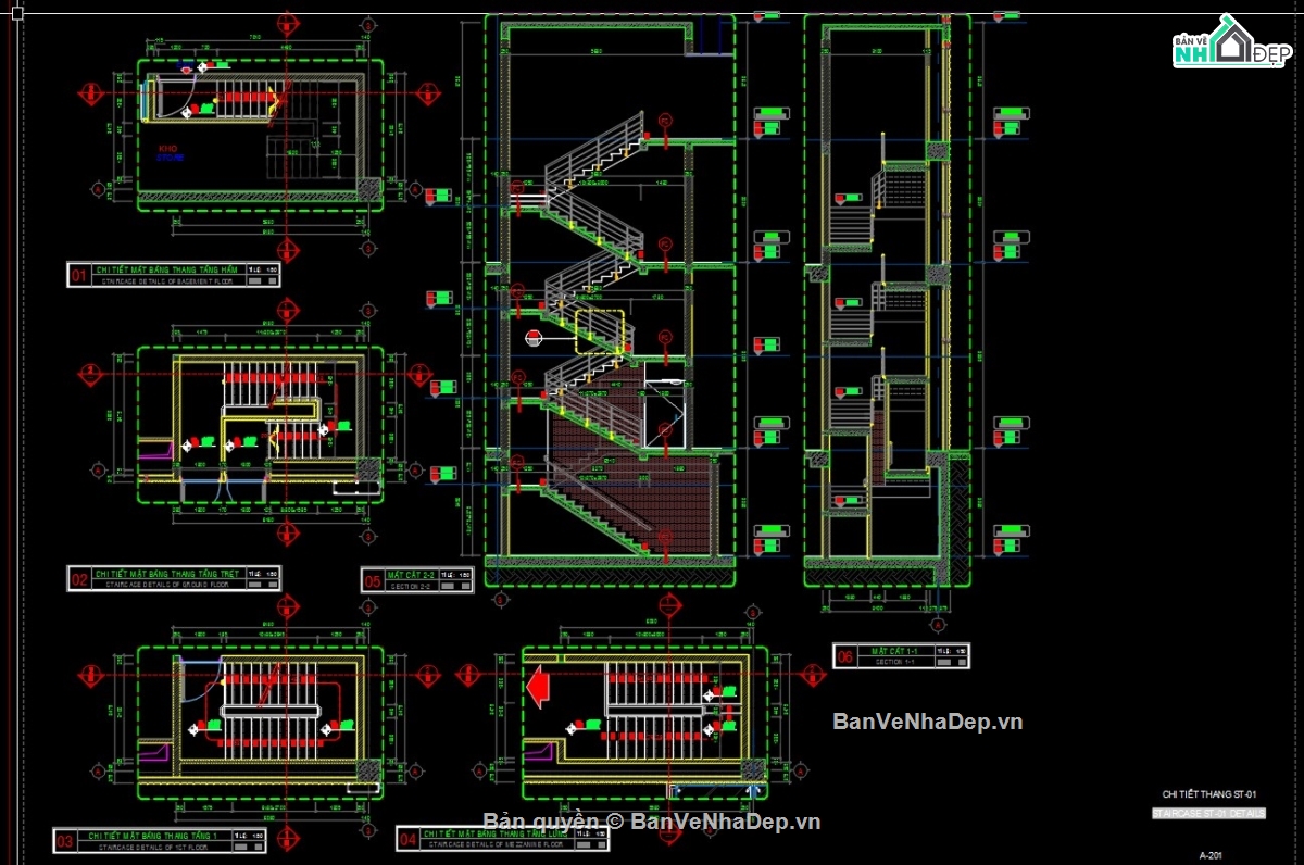
Bản vẽ CAD kiến trúc kết cấu trung tâm thương mại BigC Hạ Long

  (1 Nhận xét)     Viết đánh giá        0     0     19

Chia sẻ bộ bản vẽ full kiến trúc kết cấu trung tâm thương mại BigC Hạ Long - Quảng Ninh

Danh mục: Cửa hàng, Quán
Ngày đăng: 13/11/2025
File download: 0-1 Big C - Ha Long.rar
Dung lượng file: 109 MB
Phong cách: Hiện đại
Kích thước: Rộng 70m, Dài 120m, DT 8400m2
CÔNG CỤ THIẾT KẾ:
Autocad
Sketchup
3D Max
Revit
Khác...
CÁC HẠNG MỤC CỦA BẢN VẼ:
Kiến trúc
Kết cấu
Điện
Nước
PCCC
Phối cảnh
Dự toán
Tài liệu
Khác...

NGƯỜI ĐĂNG
(Hạng vàng)
Xem trang
bản vẽ nhà
Bản vẽ
57
bộ sưu tập bản vẽ nhà
Bộ sưu tập
0
đánh giá mẫu bản vẽ
Đánh giá (70)
5/5
ngày tham gia bản vẽ nhà đẹp
Ngày tham gia
2/4/2024

Mô tả chi tiết

Chia sẻ bộ bản vẽ full kiến trúc kết cấu trung tâm thương mại BigC Hạ Long - Quảng Ninh Big C Hạ Long có tổng số vốn đầu tư khoảng 350 tỷ đồng. Công trình có tổng diện tích sử dụng gần 27.000m2.

Bình luận (0)


Đánh giá (1)

ĐÁNH GIÁ TRUNG BÌNH
5/5

(1 Nhận xét)
Bản vẽ rất tốt (1)
Bản vẽ tốt (0)
Bản vẽ rất hay (0)
Bản vẽ hay (0)
Bình thường (0)
Chia sẻ nhận xét về bản vẽ
 Viết nhận xét của bạn
TungARC
Thời gian 15:39
13/11/2025
Bản vẽ rất tốt   
 Đã đăng bản vẽ này
Bản vẽ rất tốt và phù hợp để tham khảo
HỖ TRỢ TRỰC TUYẾN