MÃ BẢN VẼ
63044

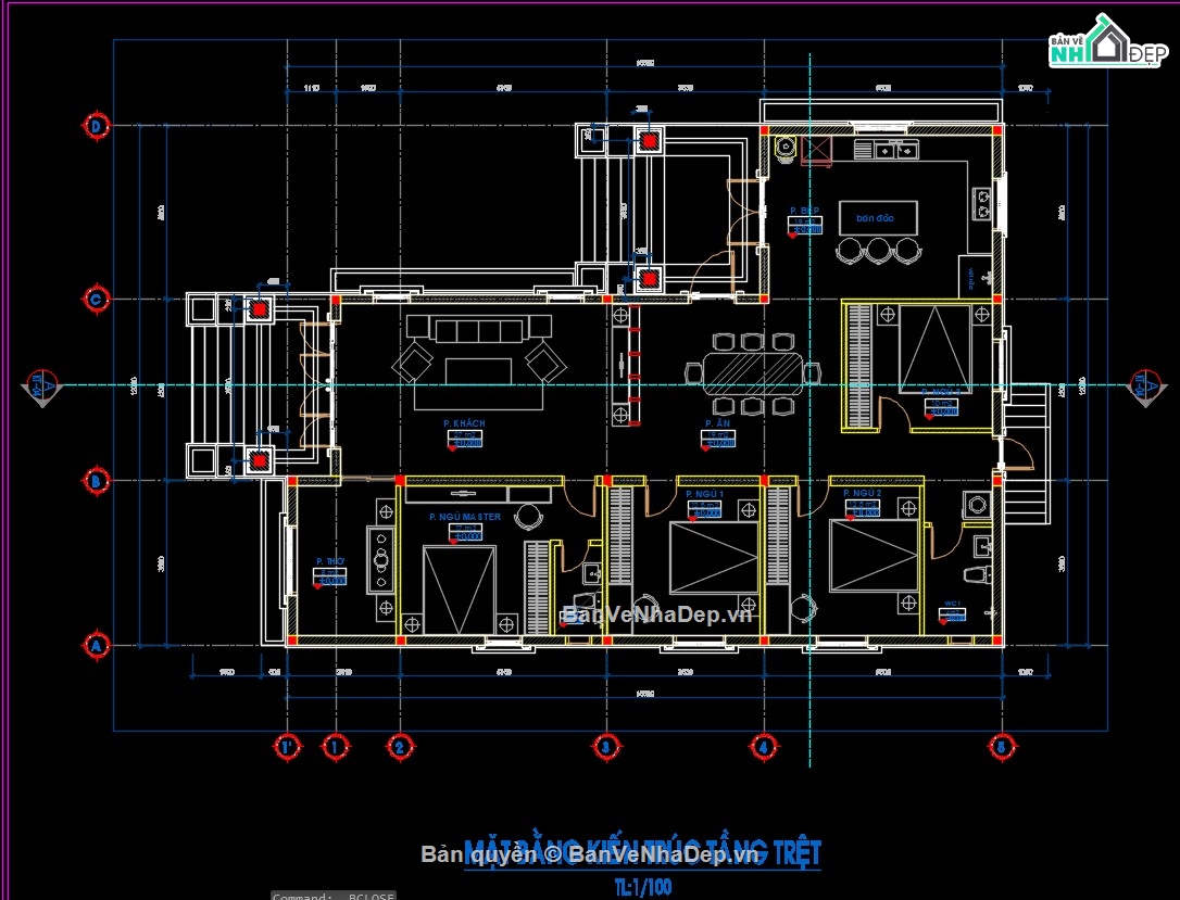
Bản vẽ Cad mẫu nhà mái Nhật siêu đẹp 4 phòng ngủ 12x17m

  (1 Nhận xét)     Viết đánh giá        1     3     210

Chia sẻ bản vẽ cad mẫu nhà mái nhật dạng chữ L đầy đủ kiến trúc kết cấu và phối cảnh cho mọi người down về tham khảo

Ngày đăng: 29/10/2025
File download: 1 tầng mái Nhật chữ L 12x17m.rar
Dung lượng file: 31.7 MB
Phong cách: Chưa xác định
Kích thước: Rộng 12m, Dài 17m, DT 204m2
CÔNG CỤ THIẾT KẾ:
Autocad
Sketchup
3D Max
Revit
Khác...
CÁC HẠNG MỤC CỦA BẢN VẼ:
Kiến trúc
Kết cấu
Điện
Nước
PCCC
Phối cảnh
Dự toán
Tài liệu
Khác...

NGƯỜI ĐĂNG
(Hạng vàng)
Xem trang
bản vẽ nhà
Bản vẽ
139
bộ sưu tập bản vẽ nhà
Bộ sưu tập
0
đánh giá mẫu bản vẽ
Đánh giá (162)
5/5
ngày tham gia bản vẽ nhà đẹp
Ngày tham gia
2/4/2024

Mô tả chi tiết

chia sẻ bản vẽ cad mẫu nhà mái nhật đầy đủ kiến trúc kết cấu và phối cảnh cho mọi người down về tham khảo với quy mô 12x17m và 4 phòng ngủ rộng rãi

Bình luận (1)

Người bình luận bản vẽ

CHÚC VŨ Trả lời Thích  012:24 - 31/10/2025
MẪU NÀY CÓ FILE REVIT KO BẠN

Đánh giá (1)

ĐÁNH GIÁ TRUNG BÌNH
5/5

(1 Nhận xét)
Bản vẽ rất tốt (1)
Bản vẽ tốt (0)
Bản vẽ rất hay (0)
Bản vẽ hay (0)
Bình thường (0)
Chia sẻ nhận xét về bản vẽ
 Viết nhận xét của bạn
TungARC
Thời gian 10:12
29/10/2025
Bản vẽ rất tốt   
 Đã mua bản vẽ tại Banvenhadep.vn
Bản vẽ rất tốt và phù hợp để tham khảo
HỖ TRỢ TRỰC TUYẾN