MÃ BẢN VẼ
63255

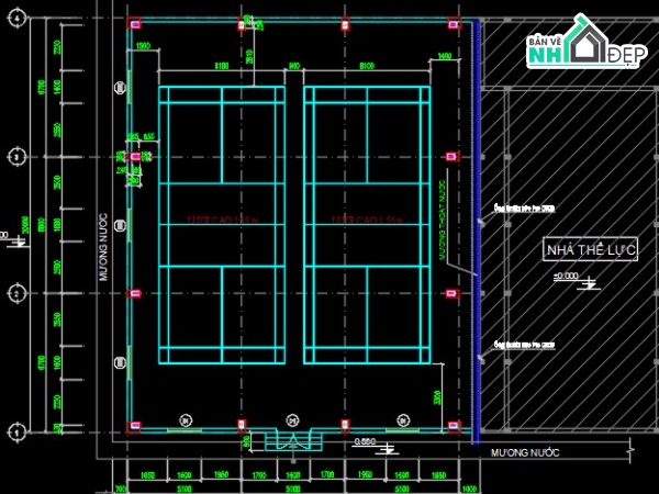
Bản vẽ CAD nhà thi đấu cầu lông

  (1 Nhận xét)     Viết đánh giá        0     0     11

Bản vẽ thiết kế CAD kiến trúc, kết cấu nhà thi đấu cầu lông kích thước 16x20m

Ngày đăng: 18/12/2025
File download: 62.NHA THI DAU CAU LONG.rar
Dung lượng file: 739.97KB
Phong cách: Chưa xác định
Kích thước: Rộng 16m, Dài 20m, DT 320m2
CÔNG CỤ THIẾT KẾ:
Autocad
Sketchup
3D Max
Revit
Khác...
CÁC HẠNG MỤC CỦA BẢN VẼ:
Kiến trúc
Kết cấu
Điện
Nước
PCCC
Phối cảnh
Dự toán
Tài liệu
Khác...

NGƯỜI ĐĂNG
(Hạng vàng)
Xem trang
bản vẽ nhà
Bản vẽ
155
bộ sưu tập bản vẽ nhà
Bộ sưu tập
0
đánh giá mẫu bản vẽ
Đánh giá (185)
5/5
ngày tham gia bản vẽ nhà đẹp
Ngày tham gia
2/4/2024

Mô tả chi tiết

Bản vẽ CAD đầy đủ kiến trúc kết cấu nhà thi đấu cầu lông kích thước 16x20m với 2 sân cầu lông

rất phù hợp đề tham khảo

Bình luận (0)


Đánh giá (1)

ĐÁNH GIÁ TRUNG BÌNH
5/5

(1 Nhận xét)
Bản vẽ rất tốt (1)
Bản vẽ tốt (0)
Bản vẽ rất hay (0)
Bản vẽ hay (0)
Bình thường (0)
Chia sẻ nhận xét về bản vẽ
 Viết nhận xét của bạn
TungARC
Thời gian 15:57
18/12/2025
Bản vẽ rất tốt   
 Đã đăng bản vẽ này
Bản vẽ rất tốt và phù hợp để tham khảo
HỖ TRỢ TRỰC TUYẾN