MÃ BẢN VẼ
53909
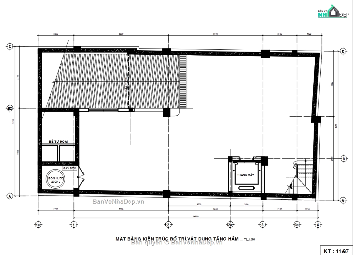
Bản vẽ kiến trúc nhà biệt thự 4 tầng 9.15x14.9m
Biệt thự 4 tầng file cad sang trọng, đầy đủ phòng khách rộng, nhiều phòng ngủ, sân thượng thoáng mát, kết hợp không gian xanh. kiến trúc cao cấp hoặc tân cổ điển, tối ưu công năng và ánh sáng tự nhiên.
Ngày đăng: 29/3/2025
File download:
Bietthu4tang9x14m.rar
Dung lượng file:
3,6 MB
Phong cách: Hiện đại
Kích thước: Rộng 9,15m, Dài 14,9m, DT 136,34m2
CÔNG CỤ THIẾT KẾ:

Autocad

Sketchup

3D Max

Revit

Khác...
CÁC HẠNG MỤC CỦA BẢN VẼ:

Kiến trúc

Kết cấu

Điện

Nước

PCCC

Phối cảnh

Dự toán

Tài liệu

Khác...
NGƯỜI ĐĂNG
Bản vẽ
119
Bộ sưu tập
0
Đánh giá (373)
5/5
Ngày tham gia
24/10/2024
Mô tả chi tiết
chia sẻ cho anh chị file bản vẽ kiến trúc nhà biệt thự 4 tầng mong anh chị ủng hộ
công năng:
tầng hầm: hầm để xe, thang máy
tầng 1: phòng thờ, phòng khách, phòng bếp ăn, wc chung
tầng 2: 1 phòng shc,1 phòng ngủ cỡ lớn và 1 khu wc chung
tầng 3: 2 phòng ngủ cỡ lớn, 1 phòng kho
tầng 4: 2 phòng ngủ cỡ lớn, 1 phòng kho
Bình luận (0)
Đánh giá (1)
ĐÁNH GIÁ TRUNG BÌNH
5/5
(
1 Nhận xét)
Bản vẽ rất tốt (1)
Bản vẽ tốt (0)
Bản vẽ rất hay (0)
Bản vẽ hay (0)
Bình thường (0)
Bản vẽ rất tốt
Đã đăng bản vẽ này
Bản vẽ thiết tốt thích hợp để tham khảo