MÃ BẢN VẼ
28270

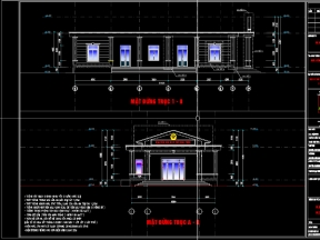
Bản vẽ kiến trúc nhà văn hóa kích thước thiết kế 18x28m

  (1 Nhận xét)     Viết đánh giá        0     1     807

Thiết kế nhà văn hóa xã đầy đủ các thiết kế danh mục kiến trúc mời các bạn tham khảo.

Ngày đăng: 16/3/2023
File download: NHA VAN HOA MAU.dwg
Dung lượng file: 967.13 KB
Phong cách: Hiện đại
Kích thước: Rộng 18m, Dài 28m, DT 504m2
CÔNG CỤ THIẾT KẾ:
Autocad
Sketchup
3D Max
Revit
Khác...
CÁC HẠNG MỤC CỦA BẢN VẼ:
Kiến trúc
Kết cấu
Điện
Nước
PCCC
Phối cảnh
Dự toán
Tài liệu
Khác...

NGƯỜI ĐĂNG
(Hạng vàng)
Xem trang
bản vẽ nhà
Bản vẽ
4
bộ sưu tập bản vẽ nhà
Bộ sưu tập
0
đánh giá mẫu bản vẽ
Đánh giá (5)
5/5
ngày tham gia bản vẽ nhà đẹp
Ngày tham gia
14/10/2022

Mô tả chi tiết

Bản vẽ nhà văn hóa kích thước 18x28m, chiều cao 9m gồm: sân khấu, kho, thư viện, phòng truyền thống, hội trường sức chứa 240 chỗ ngồi.

Bình luận (0)


Đánh giá (1)

ĐÁNH GIÁ TRUNG BÌNH
5/5

(1 Nhận xét)
Bản vẽ rất tốt (1)
Bản vẽ tốt (0)
Bản vẽ rất hay (0)
Bản vẽ hay (0)
Bình thường (0)
Chia sẻ nhận xét về bản vẽ
 Viết nhận xét của bạn
MinhĐức Hồ
Thời gian 08:35
3/4/2023
Bản vẽ rất tốt   
 Đã đăng bản vẽ này
Bản vẽ thiết tốt thích hợp để tham khảo
HỖ TRỢ TRỰC TUYẾN