MÃ BẢN VẼ
2692

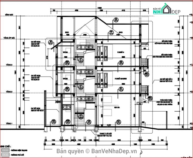
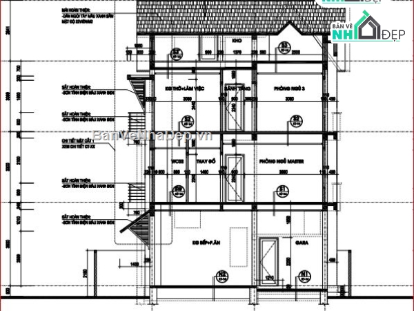
Bản vẽ kiến trúc và kết cấu mẫu biệt thự 3 tầng

  (1 Nhận xét)     Viết đánh giá        0     0     780

File bản vẽ biệt thự 3 tầng bao gồm bản vẽ kiến trúc (File pdf) và kết cấu (File autocad)

Ngày đăng: 21/10/2016
File download: bietthu.rar
Dung lượng file: 12.16 MB
Phong cách: Hiện đại
Kích thước: ...
CÔNG CỤ THIẾT KẾ:
Autocad
Sketchup
3D Max
Revit
Khác...
CÁC HẠNG MỤC CỦA BẢN VẼ:
Kiến trúc
Kết cấu
Điện
Nước
PCCC
Phối cảnh
Dự toán
Tài liệu
Khác...

NGƯỜI ĐĂNG
(Hạng vàng)
Xem trang
bản vẽ nhà
Bản vẽ
139
bộ sưu tập bản vẽ nhà
Bộ sưu tập
0
đánh giá mẫu bản vẽ
Đánh giá (155)
4/5
ngày tham gia bản vẽ nhà đẹp
Ngày tham gia
26/2/2015

Mô tả chi tiết

Chia sẻ phí nhỏ tới các bạn mẫu biệt thự 3 tầng để các bạn nghiên cứu và học tập.

Bình luận (0)


Đánh giá (1)

ĐÁNH GIÁ TRUNG BÌNH
5/5

(1 Nhận xét)
Bản vẽ rất tốt (1)
Bản vẽ tốt (0)
Bản vẽ rất hay (0)
Bản vẽ hay (0)
Bình thường (0)
Chia sẻ nhận xét về bản vẽ
 Viết nhận xét của bạn
Xitrum
Thời gian 09:55
7/1/2020
Bản vẽ rất tốt   
 Đã mua bản vẽ tại Banvenhadep.vn
Bản vẽ thiết tốt thích hợp để tham khảo
HỖ TRỢ TRỰC TUYẾN