MÃ BẢN VẼ
53911

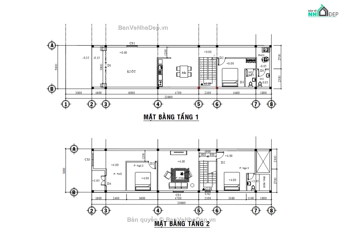
Bản vẽ miễn phí nhà phố 2 tầng 5x26.6m

  (1 Nhận xét)     Viết đánh giá        0     82     391

Share file cad miễn phí nhà dân 2 tầng 5x26.6m để anh chị download về và ủng hộ

Ngày đăng: 29/3/2025
File download: nhapho2tangfree.rar
Dung lượng file: 5,6 MB
Phong cách: Hiện đại
Kích thước: Rộng 5m, Dài 26,6m, DT 133m2
CÔNG CỤ THIẾT KẾ:
Autocad
Sketchup
3D Max
Revit
Khác...
CÁC HẠNG MỤC CỦA BẢN VẼ:
Kiến trúc
Kết cấu
Điện
Nước
PCCC
Phối cảnh
Dự toán
Tài liệu
Khác...

NGƯỜI ĐĂNG
(Hạng vàng)
Xem trang
bản vẽ nhà
Bản vẽ
119
bộ sưu tập bản vẽ nhà
Bộ sưu tập
0
đánh giá mẫu bản vẽ
Đánh giá (373)
5/5
ngày tham gia bản vẽ nhà đẹp
Ngày tham gia
24/10/2024

Mô tả chi tiết

mình sẽ share cho anh chị bản vẽ cad nhà dân 2 tầng miễn phí mong anh chị ủng hộ nhé

Bình luận (0)


Đánh giá (1)

ĐÁNH GIÁ TRUNG BÌNH
5/5

(1 Nhận xét)
Bản vẽ rất tốt (1)
Bản vẽ tốt (0)
Bản vẽ rất hay (0)
Bản vẽ hay (0)
Bình thường (0)
Chia sẻ nhận xét về bản vẽ
 Viết nhận xét của bạn
Kts Thành Long
Thời gian 11:40
16/4/2025
Bản vẽ rất tốt   
 Đã đăng bản vẽ này
Bản vẽ thiết tốt thích hợp để tham khảo
HỖ TRỢ TRỰC TUYẾN