MÃ BẢN VẼ
54127
Bản vẽ nhà căn hộ dịch vụ 4 tầng kt 5x14.5m cho thuê gồm model kết cấu , kiến trúc , điện nước , model 3dmax su
Nhà phố căn hộ cho thuê 5 tầng 5x14.5m , gồm có 13 phòng cho thuê, gồm thiết kế , ảnh ngoại thất ,file su , model etabs hình mẫu tính toán kết cấu
Ngày đăng: 09/4/2025
File download:
02.03.24HSBVTK . APK .( ATAM C PHUONG ).rar
Dung lượng file:
592 MB
Phong cách: Hiện đại
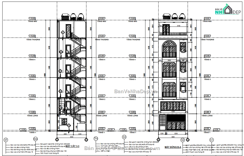
Kích thước: Rộng 5m, Dài 14,5m, DT 72,5m2
CÔNG CỤ THIẾT KẾ:

Autocad

Sketchup

3D Max

Revit

Khác...
CÁC HẠNG MỤC CỦA BẢN VẼ:

Kiến trúc

Kết cấu

Điện

Nước

PCCC

Phối cảnh

Dự toán

Tài liệu

Khác...
NGƯỜI ĐĂNG
Bản vẽ
1
Bộ sưu tập
0
Đánh giá (1)
5/5
Ngày tham gia
6/1/2024
Mô tả chi tiết
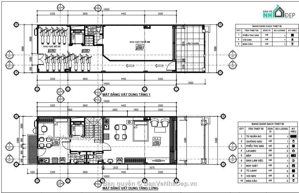
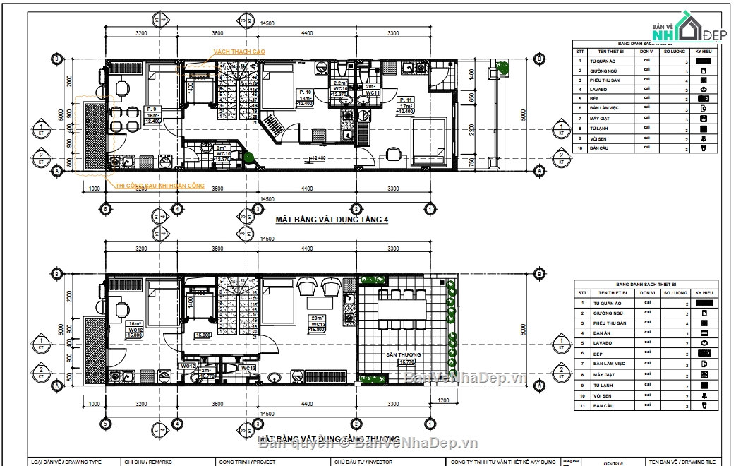
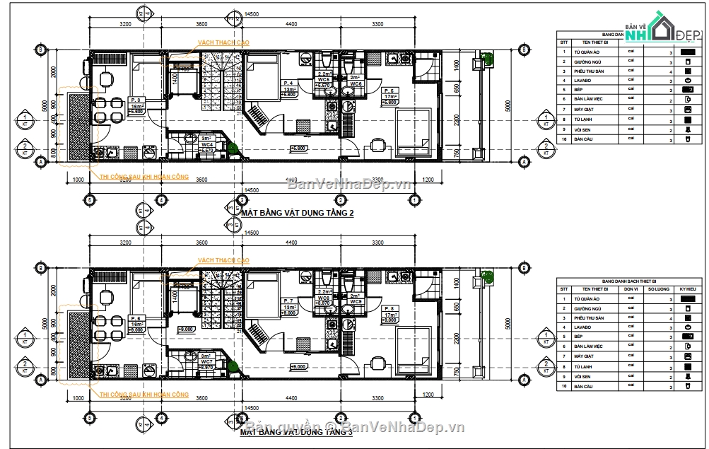
bản bản vẽ nhà ở 5 tầng kích thước xây dựng 5x14.5 m :
bao bản vẽ cad phần kiến trúc , kết cấu , điện nước , ảnh ngoại thất , model su ,file etabs tính kết cấu .
công năng:
- tầng 1: khu vực kinh doanh , 1vệ sinh
- tầng lửng : phòng cho thuê số 1 ,số 2
- tầng 2: phòng cho thuê số 3 ,số 4 , số 5
- tầng 3: phòng cho thuê số 6 ,số 7 , số 8
- tầng 4 : phòng cho thuê số 9 ,số 10 , số 11
- tầng thượng : phòng cho thuê số 12 ,số 13 ,khu tiểu cảnh
Bình luận (0)
Đánh giá (1)
ĐÁNH GIÁ TRUNG BÌNH
5/5
(
1 Nhận xét)
Bản vẽ rất tốt (1)
Bản vẽ tốt (0)
Bản vẽ rất hay (0)
Bản vẽ hay (0)
Bình thường (0)
Bản vẽ rất tốt
Đã đăng bản vẽ này
Bản vẽ thiết tốt thích hợp để tham khảo