MÃ BẢN VẼ
61803

Bản vẽ nhà phố 2 tầng 1 tum kích thước 5x17m (Bản full)

  (1 Nhận xét)     Viết đánh giá        0     0     4

Bản vẽ nhà phố 2 tầng 1 tum kích thước 5x17m (Bản full: bao gồm kiến trúc, kết cấu, điện nước và phối cảnh). Bản vẽ còn bao gồm 02 file sketup được vẽ chi tiết phối cảnh để các bạn tham khảo

Ngày đăng: 23/10/2025
File download: 53. Nhà phố 2 tầng 1 tum KT 5x17m.rar
Dung lượng file: 397.09MB
Phong cách: Hiện đại
Kích thước: Rộng 5m, Dài 17m, DT 85m2
CÔNG CỤ THIẾT KẾ:
Autocad
Sketchup
3D Max
Revit
Khác...
CÁC HẠNG MỤC CỦA BẢN VẼ:
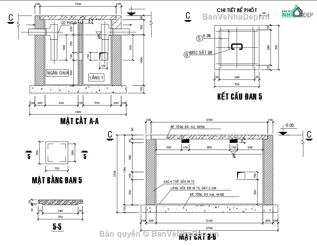
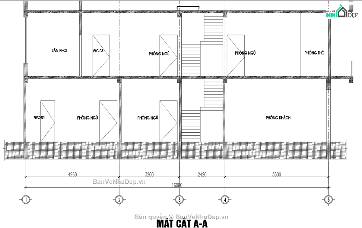
Kiến trúc
Kết cấu
Điện
Nước
PCCC
Phối cảnh
Dự toán
Tài liệu
Khác...

NGƯỜI ĐĂNG
(Hạng vàng)
Xem trang
bản vẽ nhà
Bản vẽ
27
bộ sưu tập bản vẽ nhà
Bộ sưu tập
0
đánh giá mẫu bản vẽ
Đánh giá (64)
5/5
ngày tham gia bản vẽ nhà đẹp
Ngày tham gia
21/11/2022

Mô tả chi tiết

Bản vẽ nhà phố 2 tầng 1 tum kích thước 5x17m (Bản full: bao gồm kiến trúc, kết cấu, điện nước và phối cảnh). Bản vẽ còn bao gồm 02 file sketup được vẽ chi tiết phối cảnh để các bạn tham khảo

Bình luận (0)


Đánh giá (1)

ĐÁNH GIÁ TRUNG BÌNH
5/5

(1 Nhận xét)
Bản vẽ rất tốt (1)
Bản vẽ tốt (0)
Bản vẽ rất hay (0)
Bản vẽ hay (0)
Bình thường (0)
Chia sẻ nhận xét về bản vẽ
 Viết nhận xét của bạn
Tienlong0101
Thời gian 17:32
23/10/2025
Bản vẽ rất tốt   
 Đã đăng bản vẽ này
Bản vẽ rất tốt và phù hợp để tham khảo
HỖ TRỢ TRỰC TUYẾN