MÃ BẢN VẼ
50085
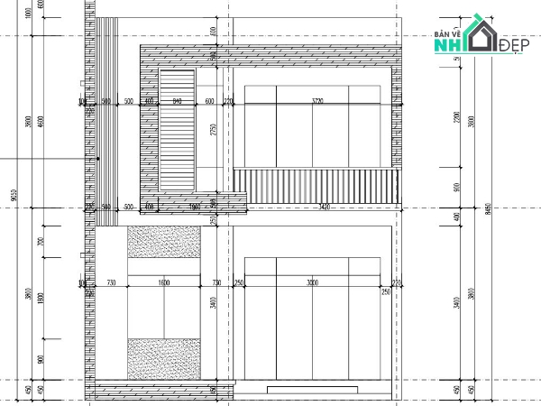
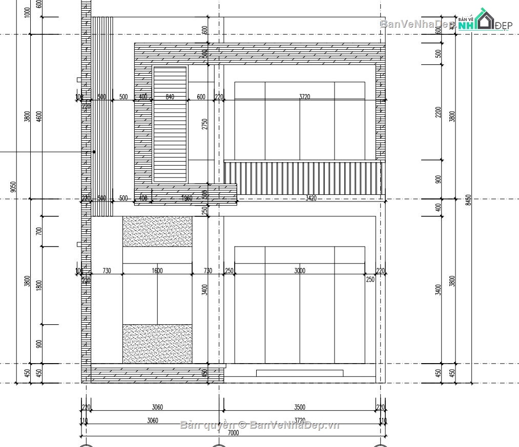
Bản vẽ nhà phố 2 tầng 7x12m đầy đủ file kết cấu, điện nước và dự toán
(
1 Nhận xét)
Viết đánh giá
Bình luận: 0
Download: 3
Lượt xem: 534
Bản vẽ mẫu nhà phố 2 tầng với phong cách thiết kế có kèm bản vẽ bằng file pdf đã in ra
Ngày đăng: 07/11/2024
File download:
nhà 2 tầng 7x12 mẫu hiện đại.rar
Dung lượng file:
26.4 MB
Phong cách: Hiện đại
Kích thước: ...
CÔNG CỤ THIẾT KẾ:

Autocad

Sketchup

3D Max

Revit

Khác...
CÁC HẠNG MỤC CỦA BẢN VẼ:

Kiến trúc

Kết cấu

Điện

Nước

PCCC

Phối cảnh

Dự toán

Tài liệu

Khác...
NGƯỜI ĐĂNG
Bản vẽ
3
Bộ sưu tập
0
Đánh giá (8)
5/5
Ngày tham gia
23/10/2024
Mô tả chi tiết
Bản vẽ nhà phố 2 tầng với kiến trúc hiện đại rất phù hợp với đôi vợ chồng trẻ
Bản vẽ sửa file autocad , pdf : kiến trúc , kết cấu , điện nước , dự toán
Bản vẽ có in thêm pdf dễ xem dành cho chủ nhà
Cam kết file tải giống 100% mô tả
Bình luận (0)
Đánh giá (1)
ĐÁNH GIÁ TRUNG BÌNH
5/5
(
1 Nhận xét)
Bản vẽ rất tốt (1)
Bản vẽ tốt (0)
Bản vẽ rất hay (0)
Bản vẽ hay (0)
Bình thường (0)
Bản vẽ rất tốt
Đã đăng bản vẽ này
Bản vẽ rất tốt và phù hợp để tham khảo