MÃ BẢN VẼ
53749
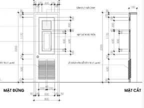
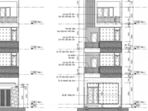
Bản vẽ nhà phố 2 tầng kích thước 7.9x12m đầy đủ kiến trúc kết cấu điện nước
(
1 Nhận xét)
Viết đánh giá
Bình luận: 0
Download: 1
Lượt xem: 251
Bản vẽ nhà phố 2 tầng kích thước 7.9x12m đầy đủ kiến trúc kết cấu điện nước
Ngày đăng: 11/3/2025
File download:
NHAPHO7.9X12M.zip
Dung lượng file:
278 MB
Phong cách: Hiện đại
Kích thước: Rộng 7,9m, Dài 12m, DT 94,8m2
CÔNG CỤ THIẾT KẾ:

Autocad

Sketchup

3D Max

Revit

Khác...
CÁC HẠNG MỤC CỦA BẢN VẼ:

Kiến trúc

Kết cấu

Điện

Nước

PCCC

Phối cảnh

Dự toán

Tài liệu

Khác...
NGƯỜI ĐĂNG
Bản vẽ
4
Bộ sưu tập
0
Đánh giá (8)
5/5
Ngày tham gia
15/4/2024
Mô tả chi tiết
File hồ sơ đầy đủ trọn bộ kiến trúc, kết cấu, điện nước công trình nhà phố 2 tầng mái bằng kích thước 7.9x12m. File bao gồm file bổ kĩ thuật autocad, file 3d sketchup, file ảnh phối cảnh, file hồ sơ dàn trang a3 pdf
Công năng:
+ Tầng 1: 1 phòng khách, 1 phòng bếp ăn, 1 phòng ngủ và 1 khu wc chung
+ Tầng 2: 3 phòng ngủ, 1 phòng kho, 1 khu wc chung và 1 phòng thờ
Bình luận (0)
Đánh giá (1)
ĐÁNH GIÁ TRUNG BÌNH
5/5
(
1 Nhận xét)
Bản vẽ rất tốt (1)
Bản vẽ tốt (0)
Bản vẽ rất hay (0)
Bản vẽ hay (0)
Bình thường (0)
Bản vẽ rất tốt
Đã mua bản vẽ tại Banvenhadep.vn
Bản vẽ rất tốt và phù hợp để tham khảo