MÃ BẢN VẼ
61708
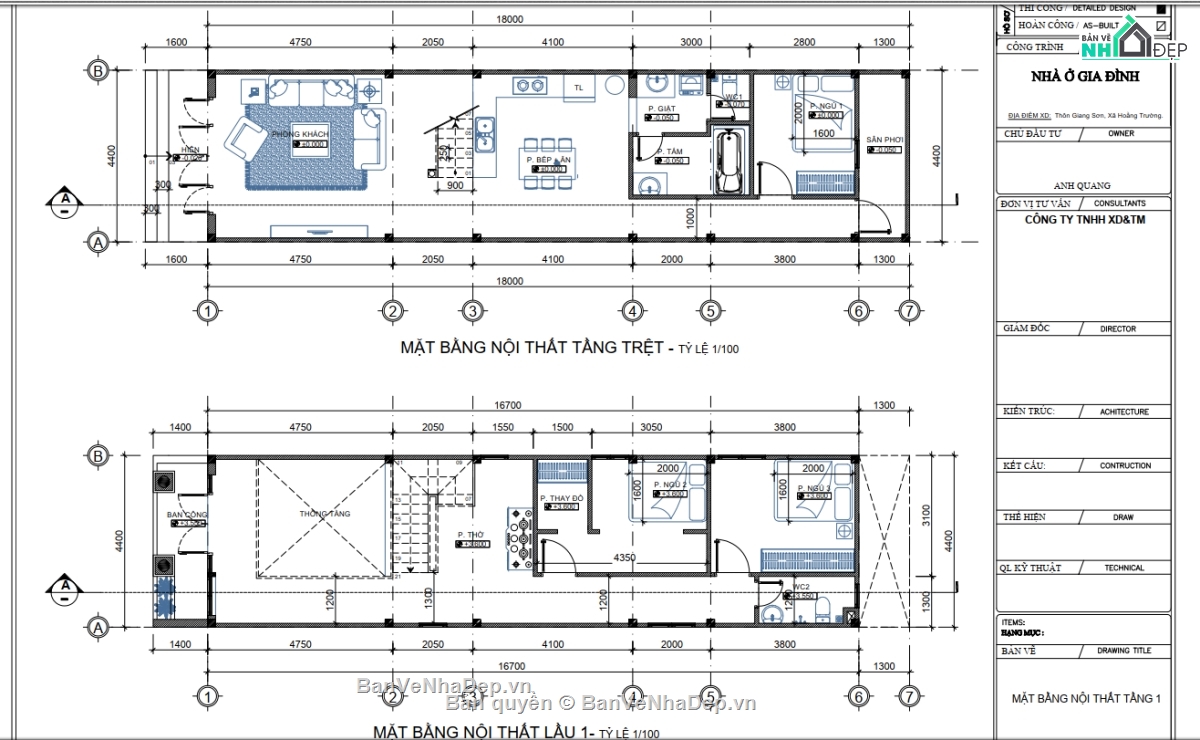
Bản vẽ nhà phố 2 tầng mái thái 4.4x18m
(
1 Nhận xét)
Viết đánh giá
Bình luận: 0
Download: 0
Lượt xem: 122
Full hồ sơ thi công ( Kiến trúc, kết cấu, điện nước, ảnh 3D ngoại thất, file PDF hồ sơ thi công )
Ngày đăng: 04/9/2025
File download:
FULL(KT_KC_ĐN)(2T3).rar
Dung lượng file:
17.8 MB
Phong cách: Hiện đại
Kích thước: Rộng 4,4m, Dài 18m, DT 79,2m2
CÔNG CỤ THIẾT KẾ:

Autocad

Sketchup

3D Max

Revit

Khác...
CÁC HẠNG MỤC CỦA BẢN VẼ:

Kiến trúc

Kết cấu

Điện

Nước

PCCC

Phối cảnh

Dự toán

Tài liệu

Khác...
NGƯỜI ĐĂNG
Bản vẽ
29
Bộ sưu tập
0
Đánh giá (58)
5/5
Ngày tham gia
12/8/2025
Mô tả chi tiết
Bản vẽ nhà phố 2 tầng 4.4x18m
Full hồ sơ thi công ( Kiến trúc, kết cấu, điện nước , ảnh 3D ngoại thất, file PDF hồ sơ thi công )
công năng: 3 phòng ngủ, 2 vệ sinh, 1 phòng khách, 1 phòng bếp ăn, 1 phòng thờ.
Bình luận (0)
Đánh giá (1)
ĐÁNH GIÁ TRUNG BÌNH
5/5
(
1 Nhận xét)
Bản vẽ rất tốt (1)
Bản vẽ tốt (0)
Bản vẽ rất hay (0)
Bản vẽ hay (0)
Bình thường (0)
Bản vẽ rất tốt
Đã mua bản vẽ tại Banvenhadep.vn
Bản vẽ rất tốt và phù hợp để tham khảo