MÃ BẢN VẼ
55996
Bản vẽ nhà phố 3 tầng (3,80x20,00)m
(
1 Nhận xét)
Viết đánh giá
Bình luận: 0
Download: 4
Lượt xem: 166
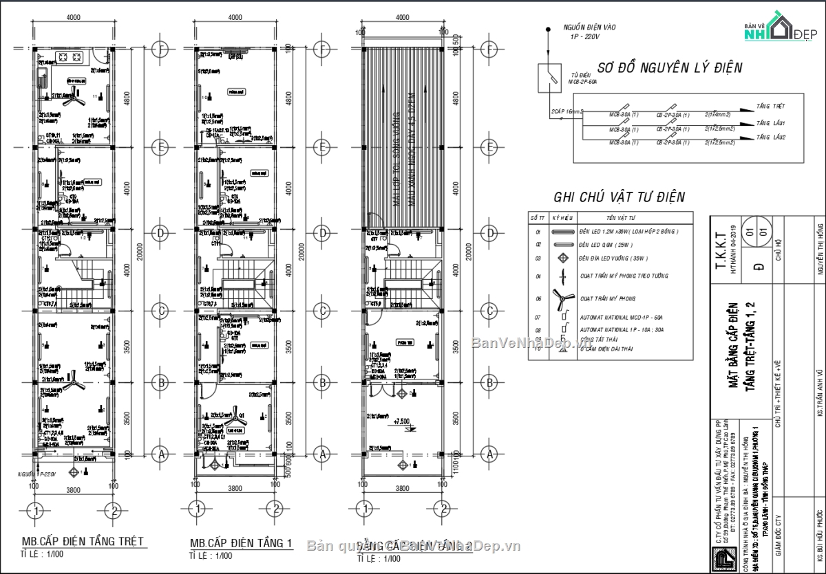
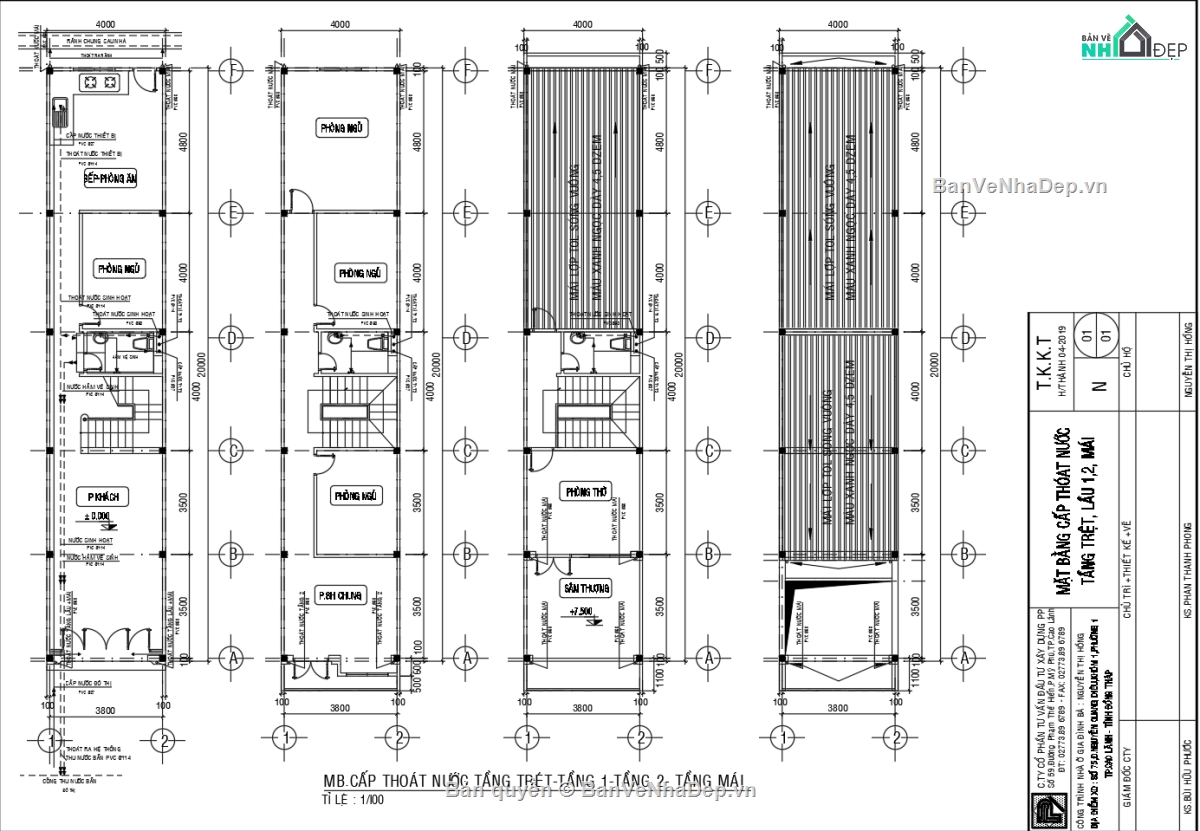
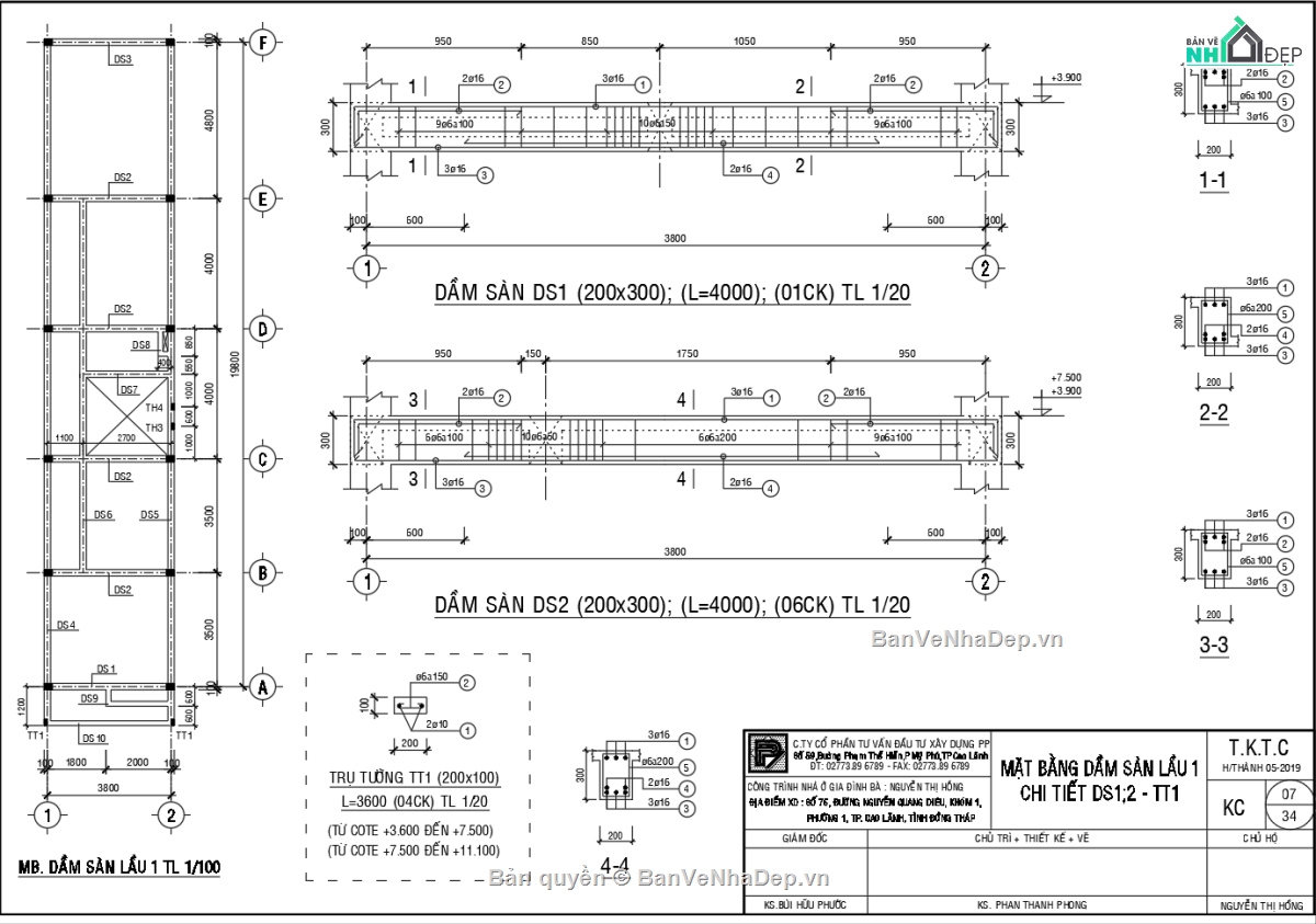
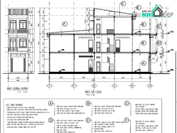
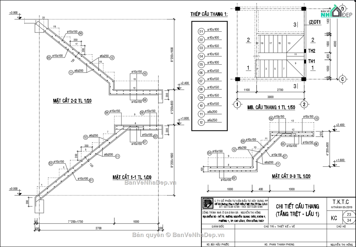
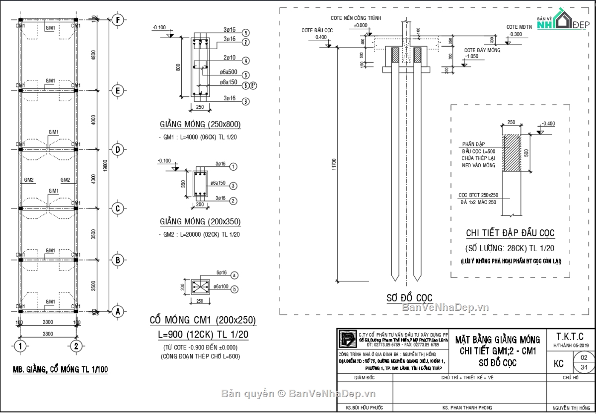
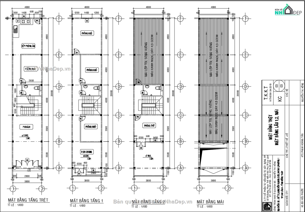
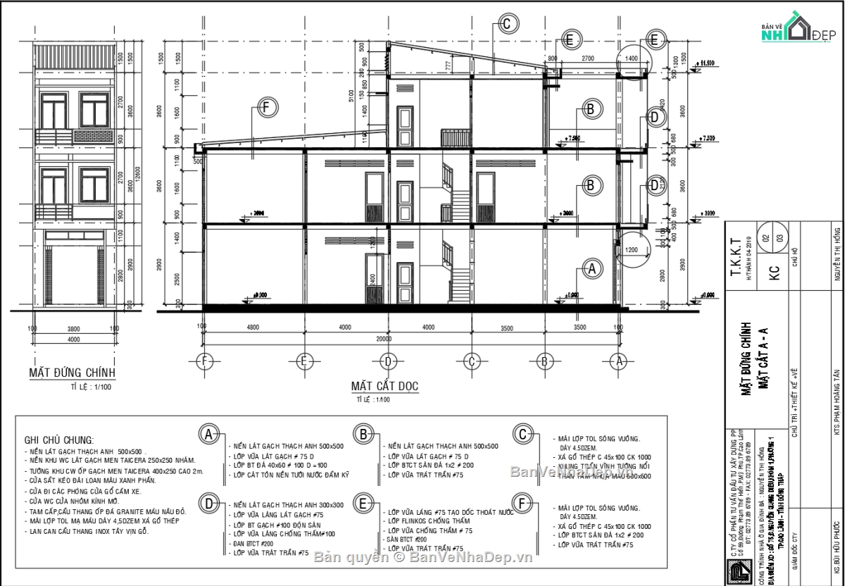
Bản vẽ nhà phố 3 tầng, kích thước 3.8x20. Bản vẽ gồm: Kiến trúc, kết cấu, điện nước.Công năng: 1 phòng khách, 1 phòng SHC, 1 bếp, 1 phòng thờ, 4 phòng ngủ, WC riêng bên ngoài, sân thượng rộng rãi.
Ngày đăng: 06/6/2025
File download:
32. Nha ong hien dai (3,8x20) - 3 Tang.rar
Dung lượng file:
10.3 MB
Phong cách: Hiện đại
Kích thước: Rộng 3,8m, Dài 20m, DT 76m2
CÔNG CỤ THIẾT KẾ:

Autocad

Sketchup

3D Max

Revit

Khác...
CÁC HẠNG MỤC CỦA BẢN VẼ:

Kiến trúc

Kết cấu

Điện

Nước

PCCC

Phối cảnh

Dự toán

Tài liệu

Khác...
NGƯỜI ĐĂNG
Bản vẽ
47
Bộ sưu tập
0
Đánh giá (98)
5/5
Ngày tham gia
25/5/2024
Mô tả chi tiết
Bản vẽ nhà phố 3 tầng, kích thước 3.8x20. Bản vẽ gồm: Kiến trúc, kết cấu, điện nước.Công năng: 1 phòng khách, 1 phòng SHC, 1 bếp, 1 phòng thờ, 4 phòng ngủ, WC riêng bên ngoài, sân thượng rộng rãi.
Bình luận (0)
Đánh giá (1)
ĐÁNH GIÁ TRUNG BÌNH
5/5
(
1 Nhận xét)
Bản vẽ rất tốt (1)
Bản vẽ tốt (0)
Bản vẽ rất hay (0)
Bản vẽ hay (0)
Bình thường (0)
Bản vẽ rất tốt
Đã mua bản vẽ tại Banvenhadep.vn
Bản vẽ rất tốt và phù hợp để tham khảo