MÃ BẢN VẼ
57007
Bản vẽ nhà phố 3 tầng 3.95x18m
(
1 Nhận xét)
Viết đánh giá
Bình luận: 0
Download: 0
Lượt xem: 123
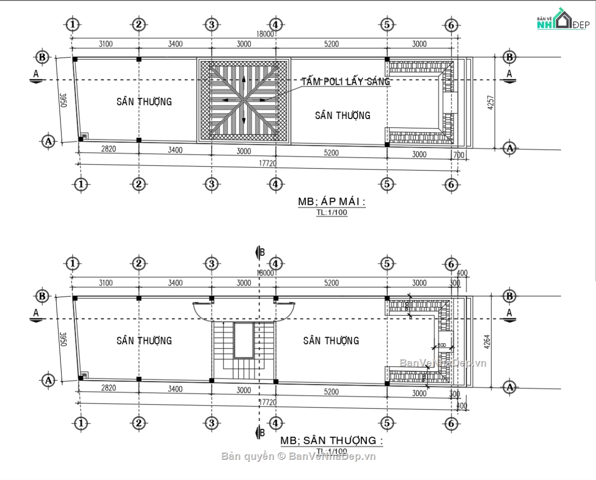
Bản vẽ nhà phố 3 tầng 3.95x18m. Gồm Kiến Trúc, Kết Cấu, Điện - Nước. Thiết kế theo phong cách tân cổ điển. Công năng gồm: 1 garare để xe, 1 phòng bếp, 1 phòng khách, 1 phòng ngủ, sân thượng rộng
Ngày đăng: 10/6/2025
File download:
35. Nha Ong Co Dien (3,95x18)m - 3 Tang.rar
Dung lượng file:
2 MB
Phong cách: Tân cổ điển
Kích thước: Rộng 4m, Dài 18m, DT 72m2
CÔNG CỤ THIẾT KẾ:

Autocad

Sketchup

3D Max

Revit

Khác...
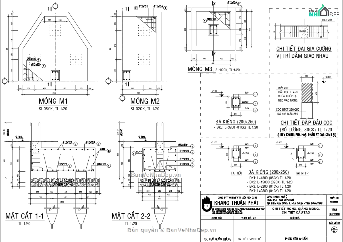
CÁC HẠNG MỤC CỦA BẢN VẼ:

Kiến trúc

Kết cấu

Điện

Nước

PCCC

Phối cảnh

Dự toán

Tài liệu

Khác...
NGƯỜI ĐĂNG
Bản vẽ
47
Bộ sưu tập
0
Đánh giá (98)
5/5
Ngày tham gia
25/5/2024
Mô tả chi tiết
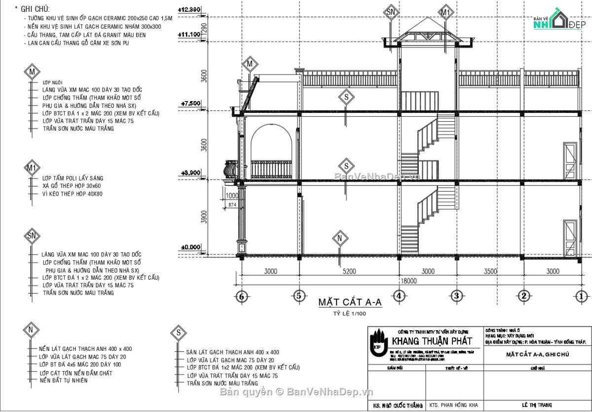
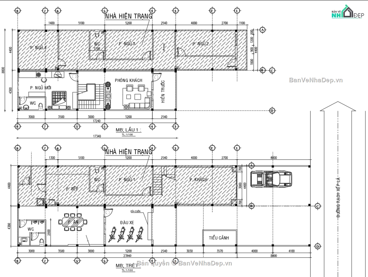
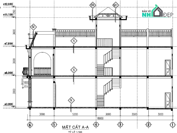
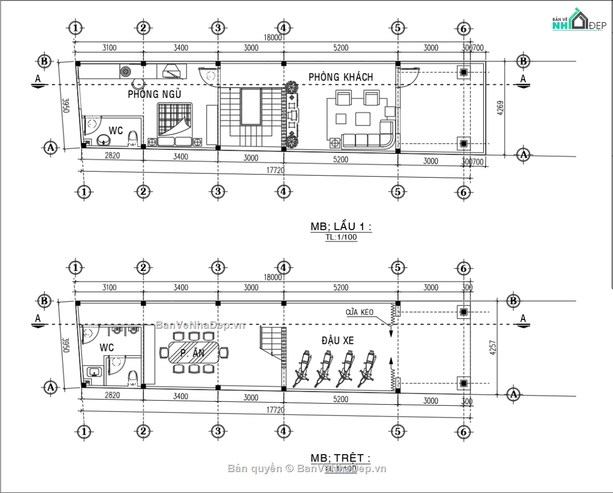
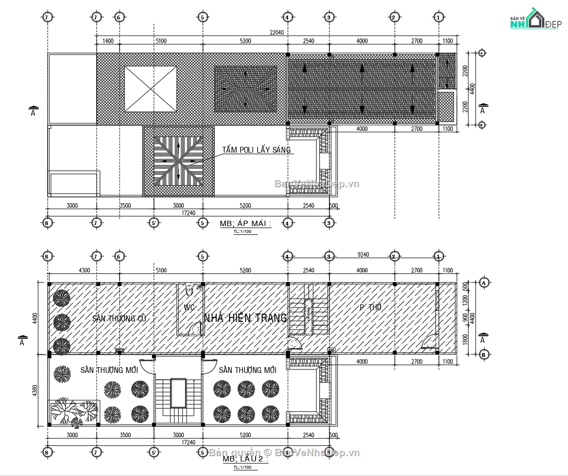
Công trình là nhà phố 3 tầng kích thước 3.95m x 18m, thiết kế theo phong cách tân cổ điển sang trọng, phù hợp với đô thị hiện đại. Tầng trệt bố trí gara để xe, phòng khách, phòng bếp, và WC, đảm bảo đầy đủ công năng sinh hoạt. Tầng 1 gồm phòng sinh hoạt chung, 2 phòng ngủ (trong đó có 1 phòng master có WC riêng), tối ưu hóa không gian nghỉ ngơi và riêng tư. Tầng 2 là không gian tâm linh và thư giãn, với phòng thờ phía trước, sân thượng rộng phía sau kết hợp tiểu cảnh và khu giặt phơi. Hệ thống kết cấu và điện nước được thiết kế đồng bộ, đảm bảo thông thoáng, chiếu sáng tự nhiên và vận hành hiệu quả cho cả gia đình.
Bình luận (0)
Đánh giá (1)
ĐÁNH GIÁ TRUNG BÌNH
5/5
(
1 Nhận xét)
Bản vẽ rất tốt (1)
Bản vẽ tốt (0)
Bản vẽ rất hay (0)
Bản vẽ hay (0)
Bình thường (0)
Bản vẽ rất tốt
Đã mua bản vẽ tại Banvenhadep.vn
Bản vẽ rất tốt và phù hợp để tham khảo