MÃ BẢN VẼ
58031

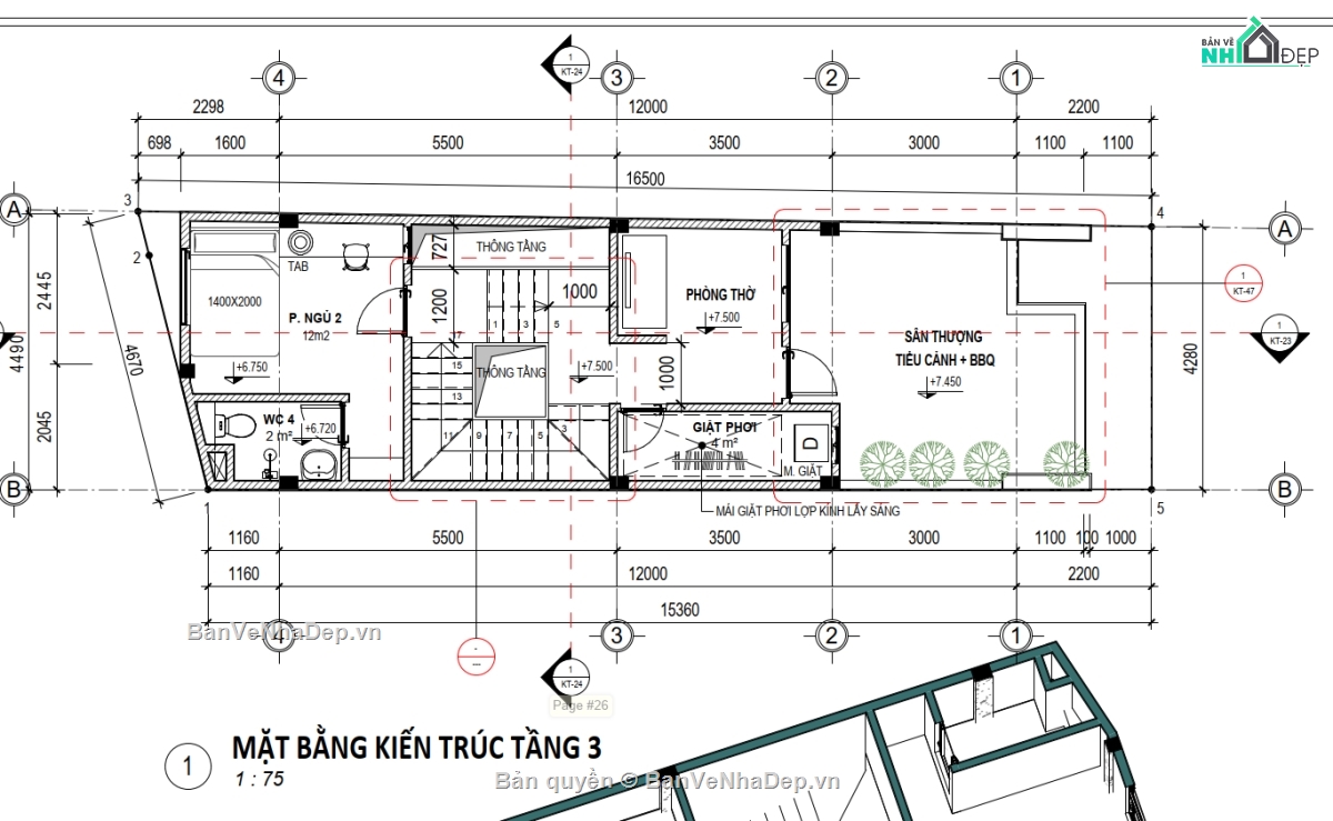
Bản vẽ nhà phố 3 tầng KT 4.5x15M

  (1 Nhận xét)     Viết đánh giá        0     2     218

Hồ sơ thiết kế đầy đủ, kiến trúc Công năng tối ưu: gara, phòng khách, bếp, 3 phòng ngủ, phòng thờ, sân phơi. File AutoCAD (.dwg) dễ chỉnh sửa – phù hợp xây dựng thực tế

Ngày đăng: 30/6/2025
File download: 1. NHA PHO 3 TANG.zip
Dung lượng file: 3.41 MB
Phong cách: Hiện đại
Kích thước: Rộng 4,5m, Dài 15m, DT 67,5m2
CÔNG CỤ THIẾT KẾ:
Autocad
Sketchup
3D Max
Revit
Khác...
CÁC HẠNG MỤC CỦA BẢN VẼ:
Kiến trúc
Kết cấu
Điện
Nước
PCCC
Phối cảnh
Dự toán
Tài liệu
Khác...

NGƯỜI ĐĂNG
bản vẽ nhà
Bản vẽ
5
bộ sưu tập bản vẽ nhà
Bộ sưu tập
0
đánh giá mẫu bản vẽ
Đánh giá (6)
5/5
ngày tham gia bản vẽ nhà đẹp
Ngày tham gia
17/6/2024

Mô tả chi tiết

Bản vẽ nhà phố 3 tầng.

Phong cách hiện đại, thiết kế tối ưu cho lô đất 4.5x15m – phù hợp xây dựng ở đô thị, khu dân cư. Công năng khoa học, không gian mở, thông thoáng tự nhiên.

  • Tầng 1: Gara xe, phòng khách, bếp + ăn, 1 WC

  • Tầng 2: 2 phòng ngủ lớn, 2 WC riêng, phòng sinh hoạt chung

  • Tầng 3: 1 phòng thờ, 1 phòng ngủ, sân giặt phơi, sân thượng rộng

 

Bình luận (0)


Đánh giá (1)

ĐÁNH GIÁ TRUNG BÌNH
5/5

(1 Nhận xét)
Bản vẽ rất tốt (1)
Bản vẽ tốt (0)
Bản vẽ rất hay (0)
Bản vẽ hay (0)
Bình thường (0)
Chia sẻ nhận xét về bản vẽ
 Viết nhận xét của bạn
Ánh Nguyễn Đình
Thời gian 15:39
30/6/2025
Bản vẽ rất tốt   
 Đã mua bản vẽ tại Banvenhadep.vn
Bản vẽ rất tốt và phù hợp để tham khảo
HỖ TRỢ TRỰC TUYẾN