MÃ BẢN VẼ
61747
Bản vẽ nhà phố 4 tầng 8x20m (full hồ sơ thi công kiến trúc, kết cấu, điện nước)
Nhà phố 4 tầng thiết kế theo xu hướng đẹp hiện đại có đầy đủ phối cảnh, bản vẽ kiến trúc, kết cấu và điện nước thi công.
Ngày đăng: 26/9/2025
File download:
NHÀ PHỐ 4 TẦNG 8x20m.rar
Dung lượng file:
4,7 MB
Phong cách: Hiện đại
Kích thước: Rộng 8m, Dài 20m, DT 160m2
CÔNG CỤ THIẾT KẾ:

Autocad

Sketchup

3D Max

Revit

Khác...
CÁC HẠNG MỤC CỦA BẢN VẼ:

Kiến trúc

Kết cấu

Điện

Nước

PCCC

Phối cảnh

Dự toán

Tài liệu

Khác...
NGƯỜI ĐĂNG
Bản vẽ
24
Bộ sưu tập
0
Đánh giá (61)
5/5
Ngày tham gia
18/9/2025
Mô tả chi tiết
Hồ sơ thiết kế nhà, bao gồm 4 phần:
1. Ảnh phối cảnh 3D ngoại thất công trình;
2. Phần Kiến trúc (Bản vẽ thiết kế chi tiết thi công);
3. Phần Kết cấu (Bản vẽ thiết kế chi tiết thi công);
4. Phần Điện nước - Điều hòa thông gió, chiếu sáng (Bản vẽ thiết kế chi tiết thi công).
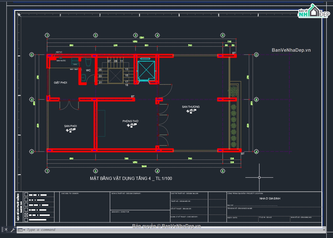
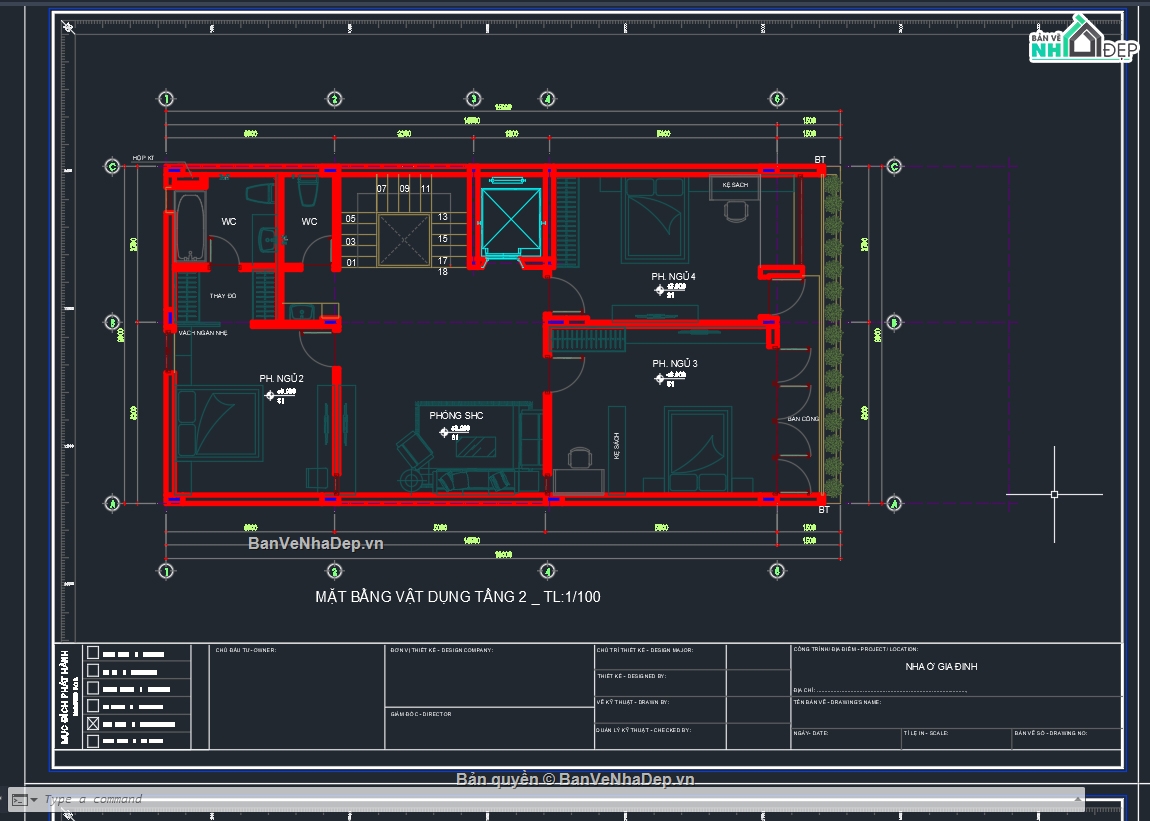
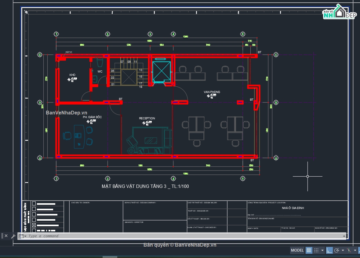
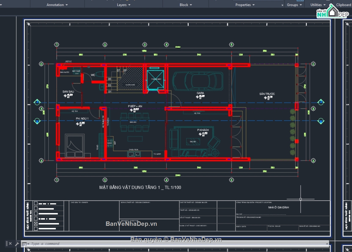
Quy mô nhà bao gồm 4 tầng với thiết kế hiện đại:
Tầng 1: Sân trước, Gar axe, Phòng khách, bếp ăn, phòng ngủ 1, sân sau
Tầng 2: Phòng ngủ 2(master), phòng ngủ 3, phòng ngủ 4, phòng sinh hoạt chung
Tầng 3: Văn phòng công ty
Tầng 4: Phòng thờ, sân thượng, giặt phơi
Bình luận (0)
Đánh giá (1)
ĐÁNH GIÁ TRUNG BÌNH
5/5
(
1 Nhận xét)
Bản vẽ rất tốt (1)
Bản vẽ tốt (0)
Bản vẽ rất hay (0)
Bản vẽ hay (0)
Bình thường (0)
Bản vẽ rất tốt
Đã đăng bản vẽ này
Bản vẽ rất tốt và phù hợp để tham khảo