MÃ BẢN VẼ
59894
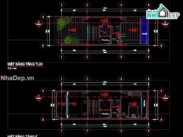
Bản vẽ nhà phố 5 tầng một tum kích thước thiết kế 5x15m
Bản vẽ kiến trúc và kết cấu nhà phố 5 tầng một tum kích thước thiết kế 15x5m, có thang máy móc
Ngày đăng: 16/7/2025
File download:
Ban ve.rar
Dung lượng file:
6.86 MB
Phong cách: Hiện đại
Kích thước: Rộng 5m, Dài 15m, DT 75m2
CÔNG CỤ THIẾT KẾ:

Autocad

Sketchup

3D Max

Revit

Khác...
CÁC HẠNG MỤC CỦA BẢN VẼ:

Kiến trúc

Kết cấu

Điện

Nước

PCCC

Phối cảnh

Dự toán

Tài liệu

Khác...
NGƯỜI ĐĂNG
Bản vẽ
3
Bộ sưu tập
0
Đánh giá (10)
5/5
Ngày tham gia
2/10/2024
Mô tả chi tiết
Bản vẽ bản vẽ kiến trúc và kết cấu
1. Kiến trúc gồm mặt bằng, mặt đứng và mặt cắt
2. Kết cấu gồm: móng, cột, mbkc, dầm, sàn, thang bộ, lanh tô và có thống kê đầy đủ
Bình luận (0)
Đánh giá (1)
ĐÁNH GIÁ TRUNG BÌNH
5/5
(
1 Nhận xét)
Bản vẽ rất tốt (1)
Bản vẽ tốt (0)
Bản vẽ rất hay (0)
Bản vẽ hay (0)
Bình thường (0)
Bản vẽ rất tốt
Đã đăng bản vẽ này
Bản vẽ thiết tốt thích hợp để tham khảo