MÃ BẢN VẼ
57010
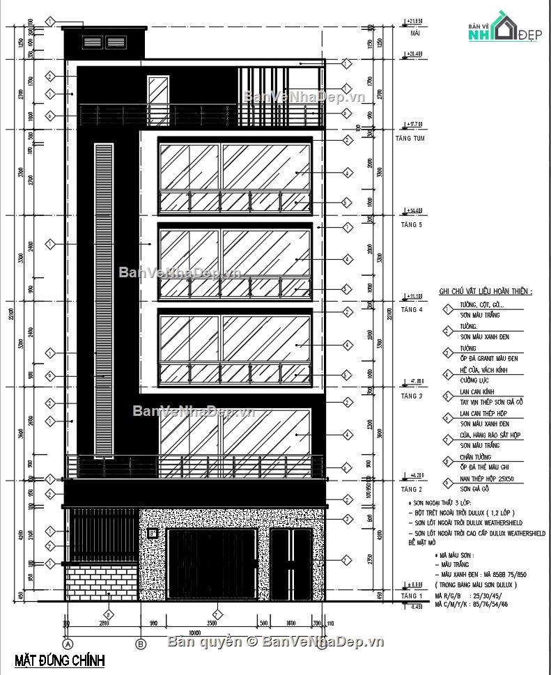
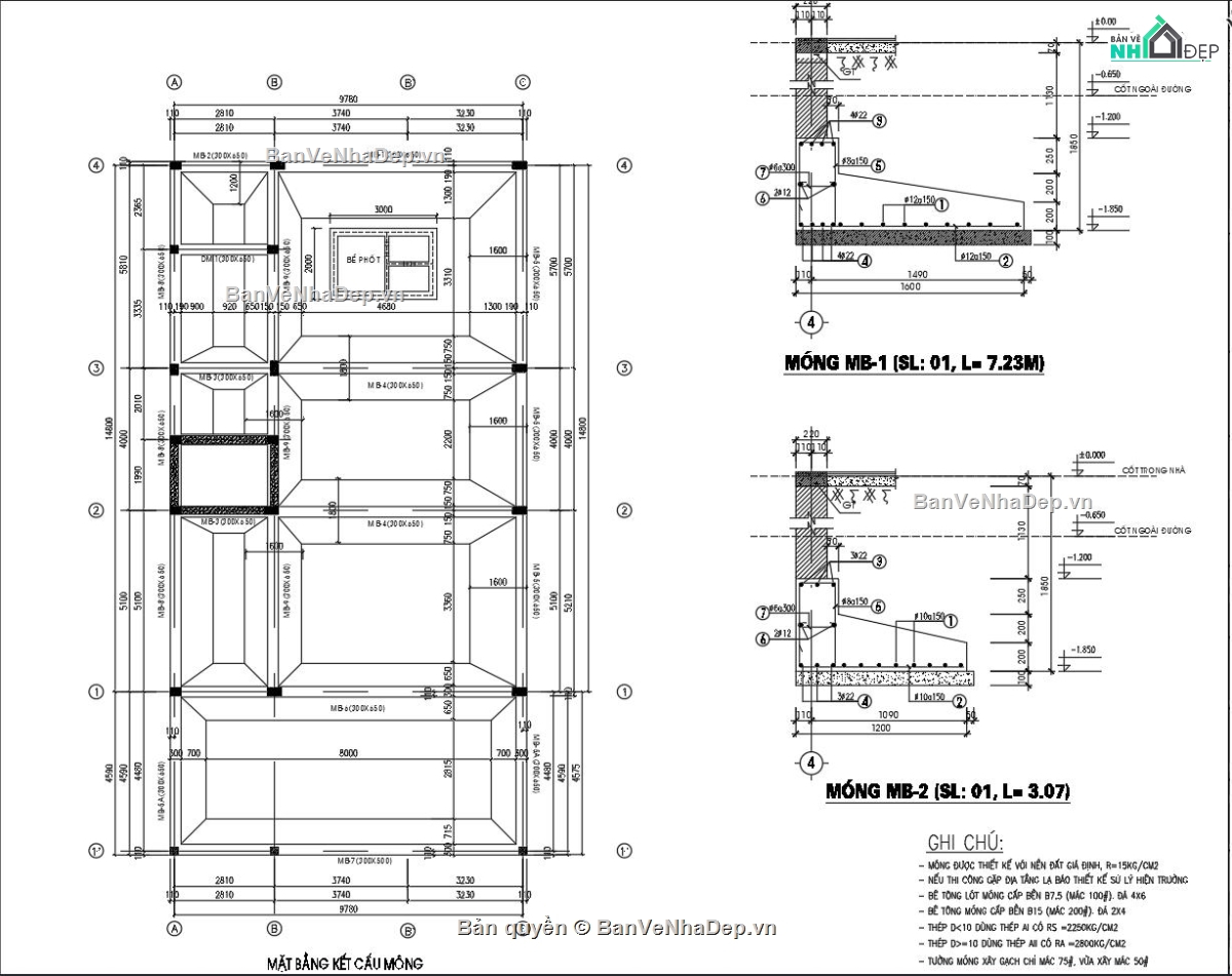
Bản vẽ nhà phố 6 tầng hiện đại 10x19.5m
Nhà phố 6 tầng hiện đại, diện tích 10x19.5m, thiết kế đa năng kết hợp kinh doanh và sinh hoạt gia đình.
Ngày đăng: 12/6/2025
File download:
36.Nha ong hien dai 10x19,5m - 6 Tang.rar
Dung lượng file:
13.8 MB
Phong cách: Hiện đại
Kích thước: Rộng 10m, Dài 19,6m, DT 196m2
CÔNG CỤ THIẾT KẾ:

Autocad

Sketchup

3D Max

Revit

Khác...
CÁC HẠNG MỤC CỦA BẢN VẼ:

Kiến trúc

Kết cấu

Điện

Nước

PCCC

Phối cảnh

Dự toán

Tài liệu

Khác...
NGƯỜI ĐĂNG
Bản vẽ
47
Bộ sưu tập
0
Đánh giá (98)
5/5
Ngày tham gia
25/5/2024
Mô tả chi tiết
Nhà phố 6 tầng hiện đại, diện tích 10x19.5m, thiết kế đa năng kết hợp kinh doanh và sinh hoạt gia đình. Tầng trệt bố trí sân trước rộng và không gian kinh doanh thoáng đãng. Tầng 2 là không gian tiếp khách sang trọng với bar, phòng khách, sinh hoạt chung và 1 phòng ngủ. Các tầng 3, 4 bố trí sinh hoạt chung cùng 3 phòng ngủ khép kín mỗi tầng. Tầng 5 là không gian giải trí với 3 phòng media. Tầng 6 gồm phòng thờ, sân phơi và khu nghỉ ngơi ngoài trời thư giãn. Kiến trúc hiện đại, tối ưu ánh sáng và thông gió tự nhiên.
Bình luận (0)
Đánh giá (1)
ĐÁNH GIÁ TRUNG BÌNH
5/5
(
1 Nhận xét)
Bản vẽ rất tốt (1)
Bản vẽ tốt (0)
Bản vẽ rất hay (0)
Bản vẽ hay (0)
Bình thường (0)
Bản vẽ rất tốt
Đã đăng bản vẽ này
Bản vẽ rất tốt và phù hợp để tham khảo