MÃ BẢN VẼ
61755
Bản vẽ Nhà phố kết hợp căn hộ cho thuê 4 tầng + lửng + tum thang 4.5x19.4m (full hồ sơ thi công kiến trúc, kết cấu, điện nước)
Nhà phố kết hợp căn hộ cho thuê 4 tầng + lửng + tum thang, căn hộ lớn thiết kế đầy đủ công năng 4,5x19,4m. Có thể kết hợp vừa ở gia đình và cho thuê căn hộ.
Ngày đăng: 27/9/2025
File download:
NHÀ PHỐ+CĂN HỘ CHO THUÊ 4 TẦNG+LỬNG+TUM 4,5x19,4m.rar
Dung lượng file:
3.0 MB
Phong cách: Tân cổ điển
Kích thước: ...
CÔNG CỤ THIẾT KẾ:

Autocad

Sketchup

3D Max

Revit

Khác...
CÁC HẠNG MỤC CỦA BẢN VẼ:

Kiến trúc

Kết cấu

Điện

Nước

PCCC

Phối cảnh

Dự toán

Tài liệu

Khác...
NGƯỜI ĐĂNG
Bản vẽ
24
Bộ sưu tập
0
Đánh giá (61)
5/5
Ngày tham gia
18/9/2025
Mô tả chi tiết
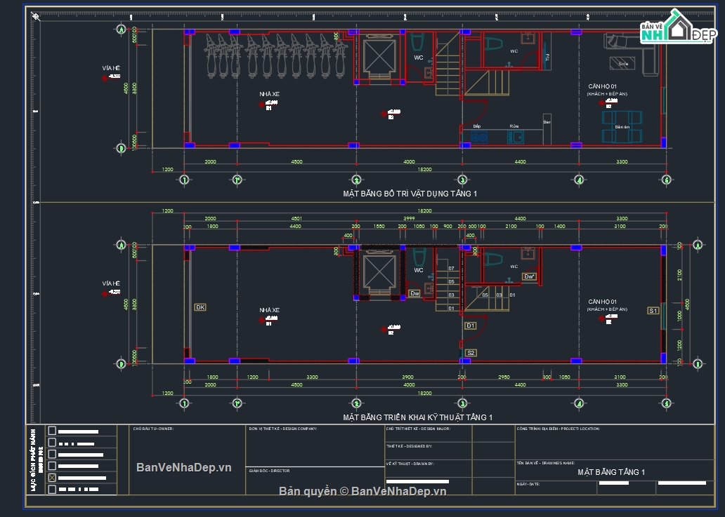
Hồ sơ thiết kế nhà, bao gồm 4 phần:
1. Ảnh phối cảnh 3D ngoại thất công trình;
2. Phần Kiến trúc (Bản vẽ thiết kế chi tiết thi công);
3. Phần Kết cấu (Bản vẽ thiết kế chi tiết thi công);
4. Phần Điện nước - Điều hòa thông gió, chiếu sáng (Bản vẽ thiết kế chi tiết thi công).
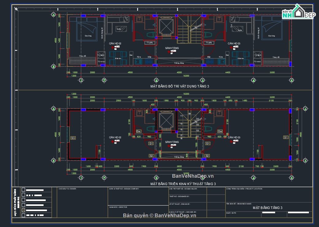
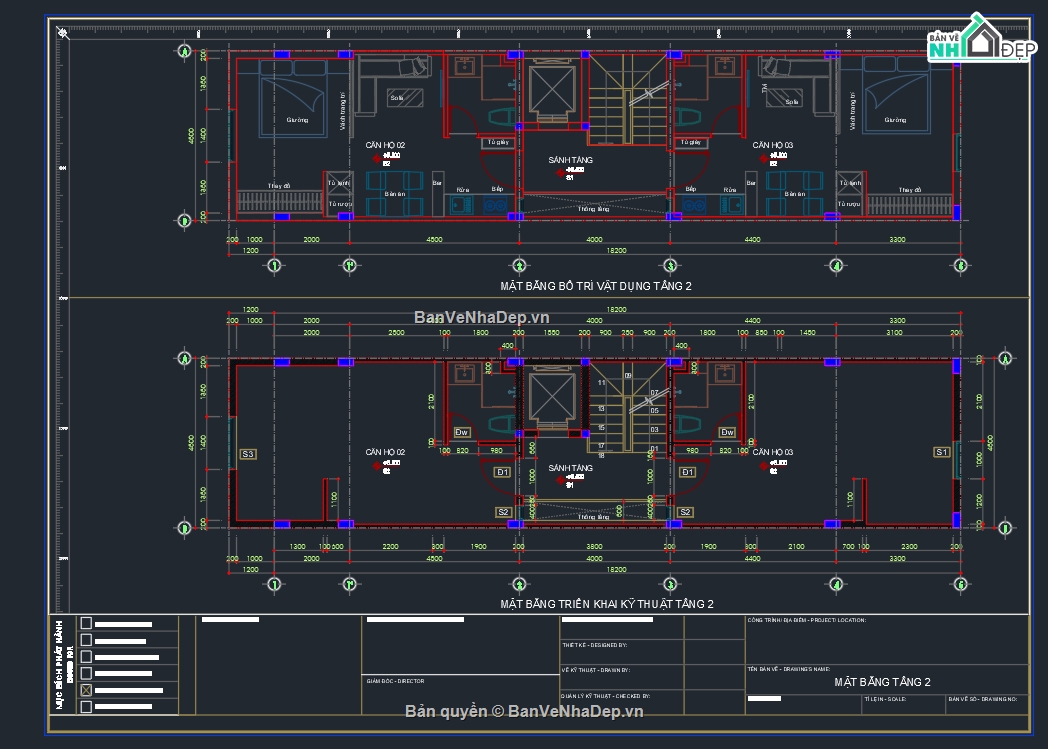
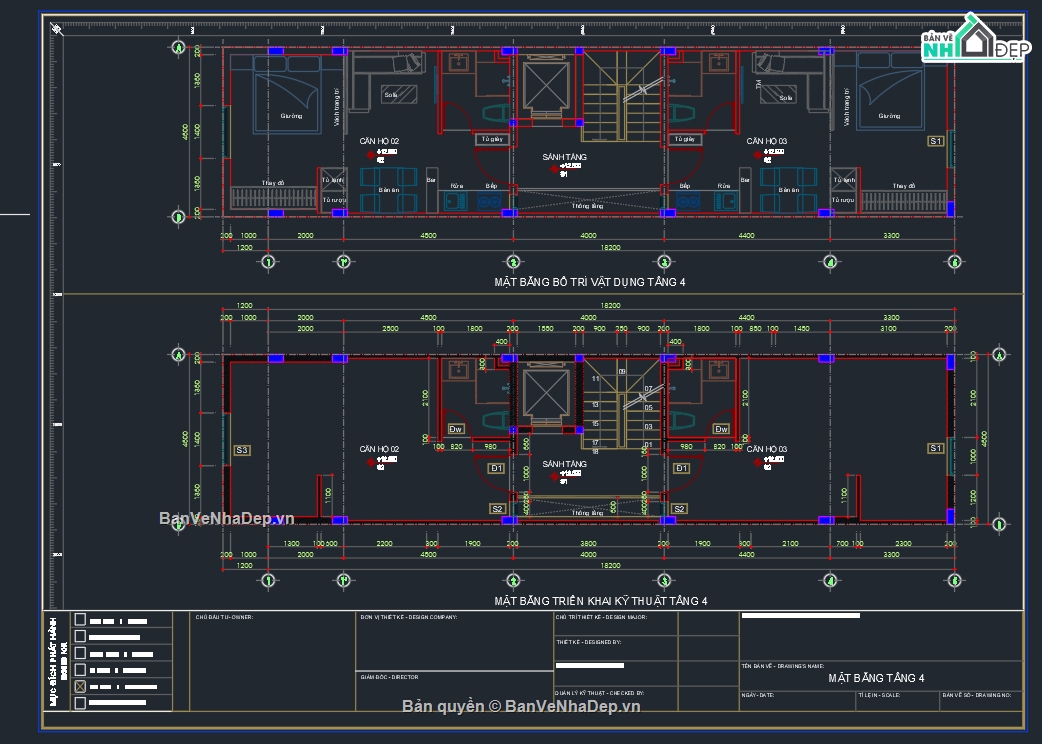
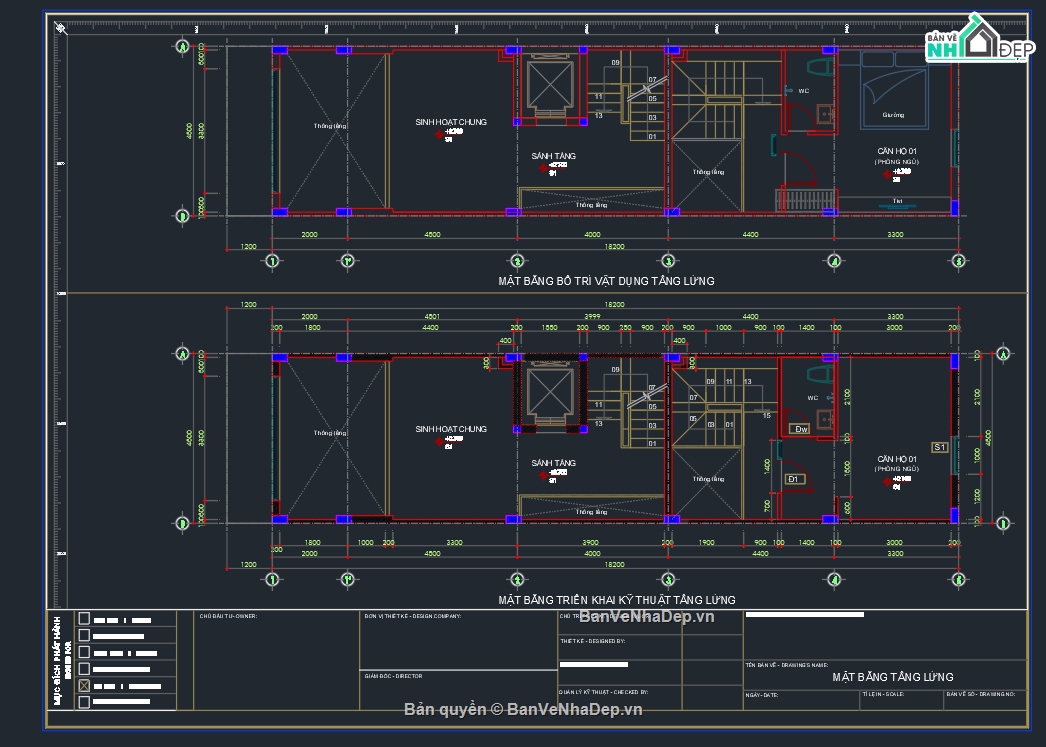
Quy mô nhà bao gồm 4 tầng + 1 lửng + 1 tum thang, căn hộ lớn thiết kế đầy đủ công năng
Có thể kết hợp căn hộ tầng 1 và tầng lửng để ở gia đình
Tầng 1+ tầng lửng: Nhà để xe, không gian sinh hoạt chung, căn ở gia đình liên thông tầng 1 và tầng lửng
Tầng 2, 3, 4: Mỗi tầng 2 căn hộ lớn
Tầng tum thang: Tum thang, sân thượng
Bình luận (0)
Đánh giá (1)
ĐÁNH GIÁ TRUNG BÌNH
5/5
(
1 Nhận xét)
Bản vẽ rất tốt (1)
Bản vẽ tốt (0)
Bản vẽ rất hay (0)
Bản vẽ hay (0)
Bình thường (0)
Bản vẽ rất tốt
Đã đăng bản vẽ này
Bản vẽ rất tốt và phù hợp để tham khảo