MÃ BẢN VẼ
54991
Bản vẽ nhà thờ họ 12.5x12.5m 2 tầng
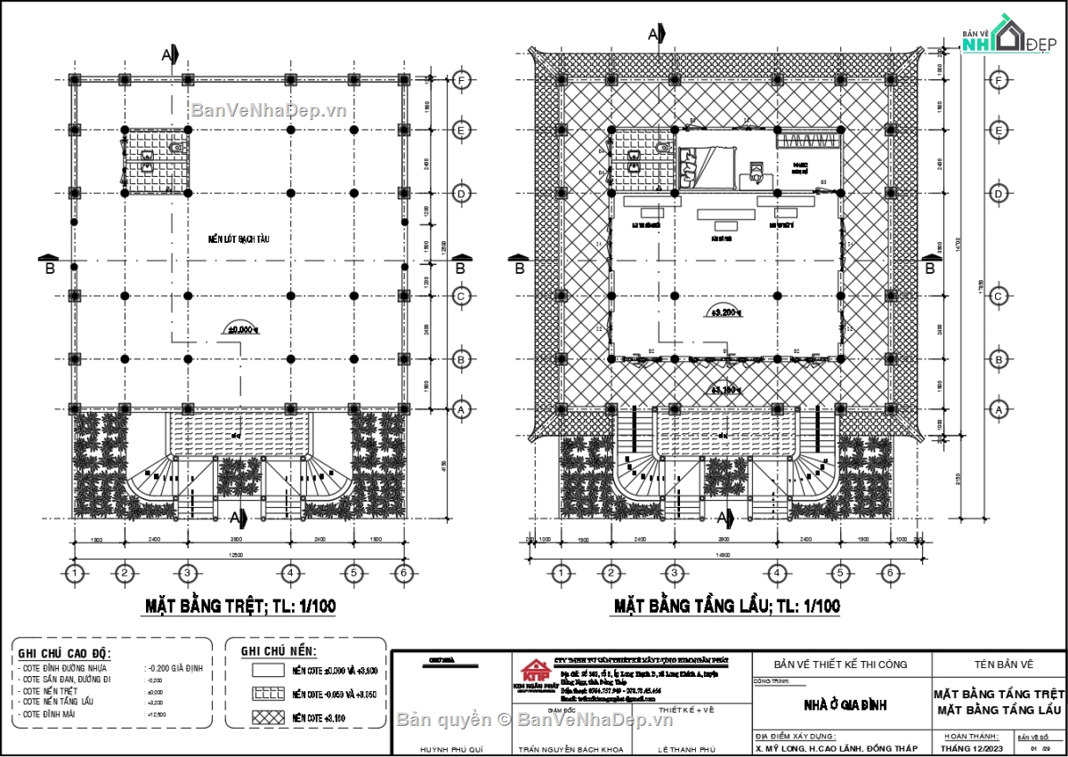
Bản vẽ nhà thờ họ 12,5x12,5m 2 tầng. Công năng: Chính điện, phòng nghỉ, phòng đọc, wc riêng. Bên dưới không gian mở phục vụ đám tiệc,...Hồ sơ bản vẽ gồm: kiến trúc, kết cấu, sketchup
Ngày đăng: 02/6/2025
File download:
31. Nha Tho Ho 12,5x12,5m - 2 Tang.rar
Dung lượng file:
239 MB
Phong cách: Tân cổ điển
Kích thước: Rộng 12,5m, Dài 12,5m, DT 156,3m2
CÔNG CỤ THIẾT KẾ:

Autocad

Sketchup

3D Max

Revit

Khác...
CÁC HẠNG MỤC CỦA BẢN VẼ:

Kiến trúc

Kết cấu

Điện

Nước

PCCC

Phối cảnh

Dự toán

Tài liệu

Khác...
NGƯỜI ĐĂNG
Bản vẽ
47
Bộ sưu tập
0
Đánh giá (98)
5/5
Ngày tham gia
25/5/2024
Mô tả chi tiết
Hồ sơ bản vẽ gồm: kiến trúc, kết cấu, sketchup
Phía trước chính điện, hệ cầu thang cong đối xứng như đôi tay của ông bà tổ tiên, dang rộng che chở cho con cháu. Chính giữa là hồ cá – biểu tượng của thế hệ sau này, đang sinh sôi và vươn lên trong sự bảo bọc linh thiêng. Bức phù điêu 'Cá chép hóa rồng' không chỉ là điểm nhấn thẩm mỹ, mà còn là minh chứng cho khát vọng thành tựu và nối tiếp truyền thống của dòng họ. Đây là nơi giao hòa giữa trời – người – tổ tiên và thế hệ mai sau
Bình luận (0)
Đánh giá (1)
ĐÁNH GIÁ TRUNG BÌNH
5/5
(
1 Nhận xét)
Bản vẽ rất tốt (1)
Bản vẽ tốt (0)
Bản vẽ rất hay (0)
Bản vẽ hay (0)
Bình thường (0)
Bản vẽ rất tốt
Đã đăng bản vẽ này
Bản vẽ rất tốt và phù hợp để tham khảo