MÃ BẢN VẼ
60136

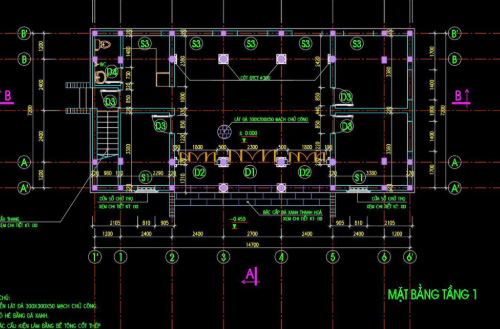
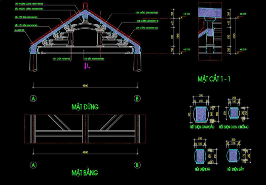
Bản vẽ nhà thờ họ đầy đủ kiến trúc

  (1 Nhận xét)     Viết đánh giá        0     0     48

Gửi đến gửi tới cho các bạn tham khảo thiết kế nhà thờ họ model cad danh mục kiến trúc

Ngày đăng: 24/7/2025
File download: .rar
Dung lượng file: MB
Phong cách: Hiện đại
Kích thước: ...
CÔNG CỤ THIẾT KẾ:
Autocad
Sketchup
3D Max
Revit
Khác...
CÁC HẠNG MỤC CỦA BẢN VẼ:
Kiến trúc
Kết cấu
Điện
Nước
PCCC
Phối cảnh
Dự toán
Tài liệu
Khác...

NGƯỜI ĐĂNG
(Hạng vàng)
Xem trang
bản vẽ nhà
Bản vẽ
355
bộ sưu tập bản vẽ nhà
Bộ sưu tập
0
đánh giá mẫu bản vẽ
Đánh giá (458)
5/5
ngày tham gia bản vẽ nhà đẹp
Ngày tham gia
9/6/2025

Mô tả chi tiết

bản vẽ nhà thờ họ file phối cảnh đẹp

file cad file cad danh mục kiến trúc

Bình luận (0)


Đánh giá (1)

ĐÁNH GIÁ TRUNG BÌNH
5/5

(1 Nhận xét)
Bản vẽ rất tốt (1)
Bản vẽ tốt (0)
Bản vẽ rất hay (0)
Bản vẽ hay (0)
Bình thường (0)
Chia sẻ nhận xét về bản vẽ
 Viết nhận xét của bạn
Lan Chi Arc
Thời gian 23:18
10/8/2025
Bản vẽ rất tốt   
 Đã mua bản vẽ tại Banvenhadep.vn
Bản vẽ thiết tốt thích hợp để tham khảo
HỖ TRỢ TRỰC TUYẾN