MÃ BẢN VẼ
49997

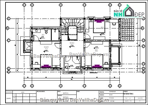
Bản vẽ Revit Kiến trúc Biệt thự 2 tầng 8.3x14.9m

  (1 Nhận xét)     Viết đánh giá        0     0     81

Dựng sơ bộ File revit mặt bằng trần tường sàn, mặt đứng, mặt cắt, phối cảnh

Ngày đăng: 11/10/2024
File download: nha3tang.zip
Dung lượng file: 742 MB
Phong cách: Tân cổ điển
Kích thước: Rộng 8,3m, Dài 14,9m, DT 123,7m2
CÔNG CỤ THIẾT KẾ:
Autocad
Sketchup
3D Max
Revit
Khác...
CÁC HẠNG MỤC CỦA BẢN VẼ:
Kiến trúc
Kết cấu
Điện
Nước
PCCC
Phối cảnh
Dự toán
Tài liệu
Khác...

NGƯỜI ĐĂNG
(Hạng vàng)
Xem trang
bản vẽ nhà
Bản vẽ
16
bộ sưu tập bản vẽ nhà
Bộ sưu tập
0
đánh giá mẫu bản vẽ
Đánh giá (19)
5/5
ngày tham gia bản vẽ nhà đẹp
Ngày tham gia
6/9/2024

Mô tả chi tiết

File Revit, đuôi .rvt, kèm ảnh phối cảnh.

Ở đây kiến trúc sư chỉ đăng chia sẻ phí nhỏ, và file chỉ dừng lại ở mức để AE mới học tải về tham khảo nghiên cứu.

Bản vẽ Revit Biệt thự 2 tầng
Công năng:
+ Tầng 1: Gara, P. Khách, P Bếp, Wc chung.
+ Tầng 2: 1 P.gủ có wc riêng, 2 P. Ngủ, 1 Wc chung.

 

Bình luận (0)


Đánh giá (1)

ĐÁNH GIÁ TRUNG BÌNH
5/5

(1 Nhận xét)
Bản vẽ rất tốt (1)
Bản vẽ tốt (0)
Bản vẽ rất hay (0)
Bản vẽ hay (0)
Bình thường (0)
Chia sẻ nhận xét về bản vẽ
 Viết nhận xét của bạn
Kts Trung Bom
Thời gian 23:35
11/10/2024
Bản vẽ rất tốt   
 Đã mua bản vẽ tại Banvenhadep.vn
Bản vẽ rất tốt và phù hợp để tham khảo
HỖ TRỢ TRỰC TUYẾN