MÃ BẢN VẼ
49996
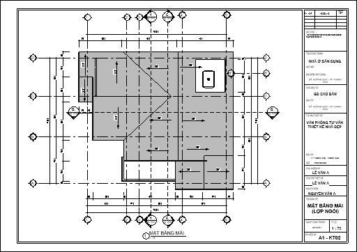
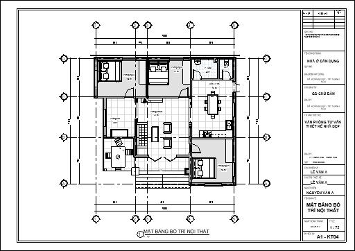
Bản vẽ Revit Kiến trúc Nhà cấp 4 12x11m
Dựng sơ bộ File revit mặt bằng kiến trúc và mặt đứng kiến trúc các trục cho mẫu nhà cấp 4, chi tiết kiến trúc
Ngày đăng: 11/10/2024
File download:
nha2tang.zip
Dung lượng file:
381 MB
Phong cách: Chưa xác định
Kích thước: Rộng 11m, Dài 12m, DT 132m2
CÔNG CỤ THIẾT KẾ:

Autocad

Sketchup

3D Max

Revit

Khác...
CÁC HẠNG MỤC CỦA BẢN VẼ:

Kiến trúc

Kết cấu

Điện

Nước

PCCC

Phối cảnh

Dự toán

Tài liệu

Khác...
NGƯỜI ĐĂNG
Bản vẽ
16
Bộ sưu tập
0
Đánh giá (19)
5/5
Ngày tham gia
6/9/2024
Mô tả chi tiết
File Revit, đuôi .rvt, kèm ảnh phối cảnh.
Ở đây kiến trúc sư chỉ đăng chia sẻ phí nhỏ, và file chỉ dừng lại ở mức để AE mới học tải về tham khảo nghiên cứu.
Mình sẽ cố gắng để chia sẻ nhiều file hữu ích hơn lên đây trong thời gian tới.
Bình luận (0)
Đánh giá (1)
ĐÁNH GIÁ TRUNG BÌNH
5/5
(
1 Nhận xét)
Bản vẽ rất tốt (1)
Bản vẽ tốt (0)
Bản vẽ rất hay (0)
Bản vẽ hay (0)
Bình thường (0)
Bản vẽ rất tốt
Đã mua bản vẽ tại Banvenhadep.vn
Bản vẽ rất tốt và phù hợp để tham khảo