MÃ BẢN VẼ
43326
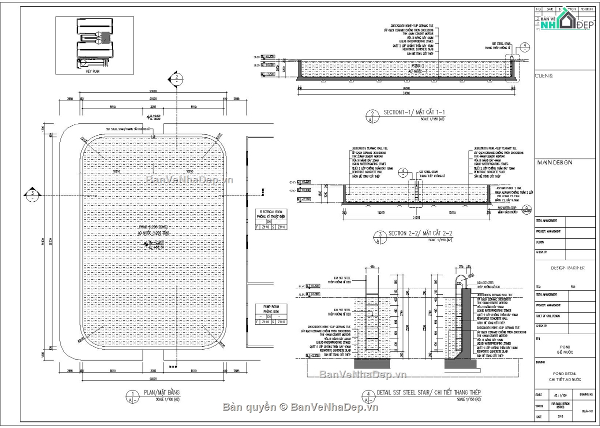
Bản vẽ thiết kế bể phòng cháy nhà xưởng công nghiệp dung tích khoảng 1500m3
(
1 Nhận xét)
Viết đánh giá
Bình luận: 0
Download: 0
Lượt xem: 467
File Autocad mẫu thiết kế bể cảnh kết hợp bể PCCC Khu nhà xưởng dung tích 1500
Ngày đăng: 23/1/2024
File download:
Pond - Be PCCC.rar
Dung lượng file:
2.38 MB
Phong cách: Hiện đại
Kích thước: Rộng 20,2m, Dài 30,2m, DT 610m2
CÔNG CỤ THIẾT KẾ:

Autocad

Sketchup

3D Max

Revit

Khác...
CÁC HẠNG MỤC CỦA BẢN VẼ:

Kiến trúc

Kết cấu

Điện

Nước

PCCC

Phối cảnh

Dự toán

Tài liệu

Khác...
NGƯỜI ĐĂNG
Bản vẽ
259
Bộ sưu tập
0
Đánh giá (601)
5/5
Ngày tham gia
25/2/2023
Mô tả chi tiết
Bản vẽ thiết kế chi tiết bể PCCC khu công nghiệp 1500m3 kết hợp ao nước cảnh quan.
Thông tin thiết kế:
- Kích thước lọt lòng: 20.2x30.2
- Chiều sâu lọt lòng: 2.5m
- Kết cấu BTCTa
Thông tin kết cấu:
- Đáy bể: Bản BTCT dày 400mm. Dầm đáy bể 300x600mm
- Vách bể dày 350mm
Bình luận (0)
Đánh giá (1)
ĐÁNH GIÁ TRUNG BÌNH
5/5
(
1 Nhận xét)
Bản vẽ rất tốt (1)
Bản vẽ tốt (0)
Bản vẽ rất hay (0)
Bản vẽ hay (0)
Bình thường (0)
7Plus
Thời gian 14:54
23/1/2024
Bản vẽ rất tốt
Đã mua bản vẽ tại Banvenhadep.vn
Bản vẽ rất tốt và phù hợp để tham khảo