MÃ BẢN VẼ
58029

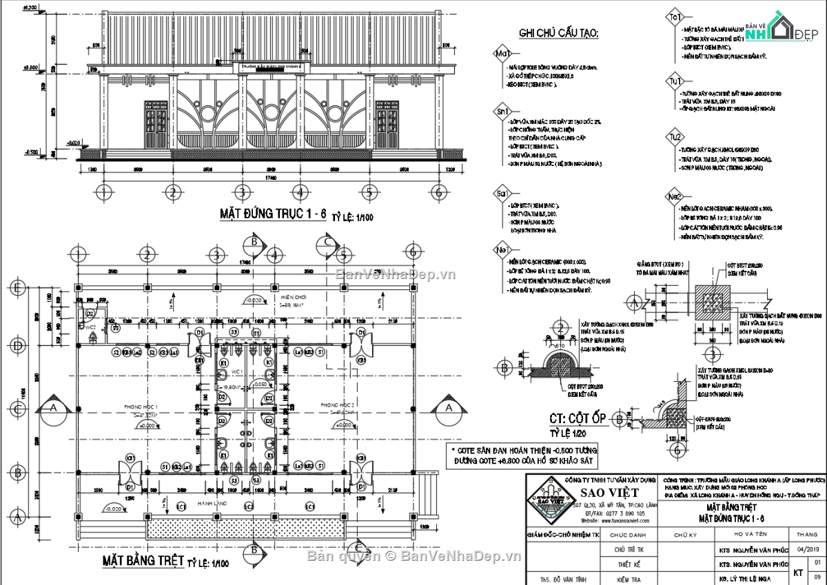
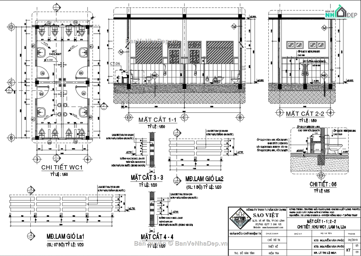
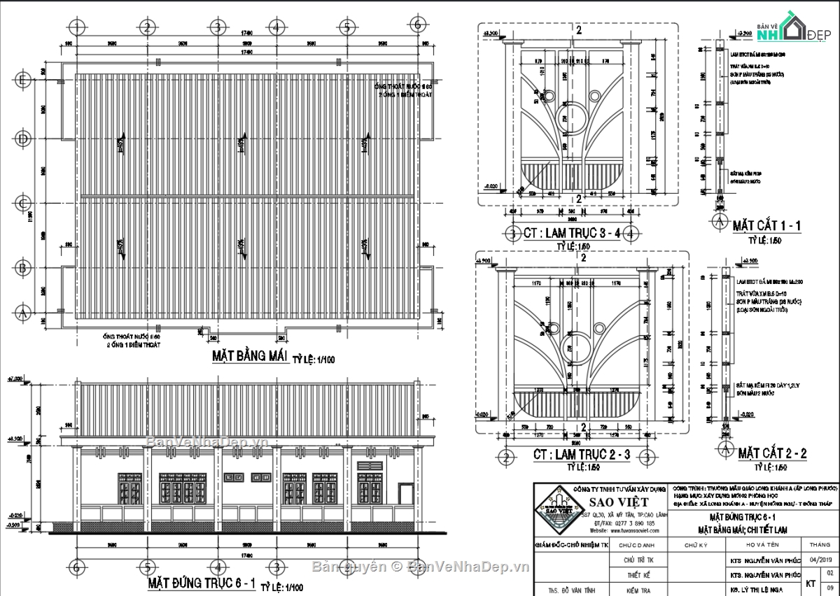
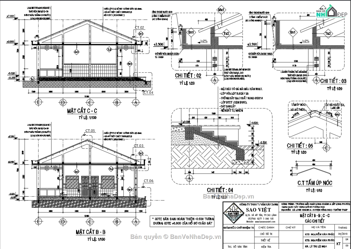
Bản vẽ trường mầm non Long Khánh A 1 tầng 11.9x17.4m

  (1 Nhận xét)     Viết đánh giá        0     1     146

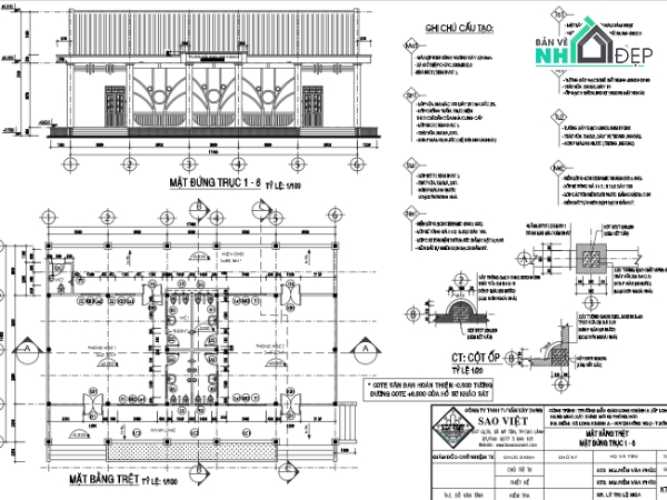
Hồ sơ bản vẽ Trường mầm non và các hạng mục phụ. Diện tích qui hoạch S = 436m2.

Ngày đăng: 26/6/2025
File download: 2. Truong MN Long Khanh A - HN.rar
Dung lượng file: 6.35 MB
Phong cách: Hiện đại
Kích thước: Rộng 11,9m, Dài 17,4m, DT 207,1m2
CÔNG CỤ THIẾT KẾ:
Autocad
Sketchup
3D Max
Revit
Khác...
CÁC HẠNG MỤC CỦA BẢN VẼ:
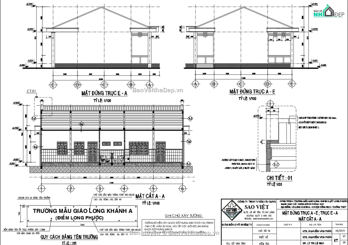
Kiến trúc
Kết cấu
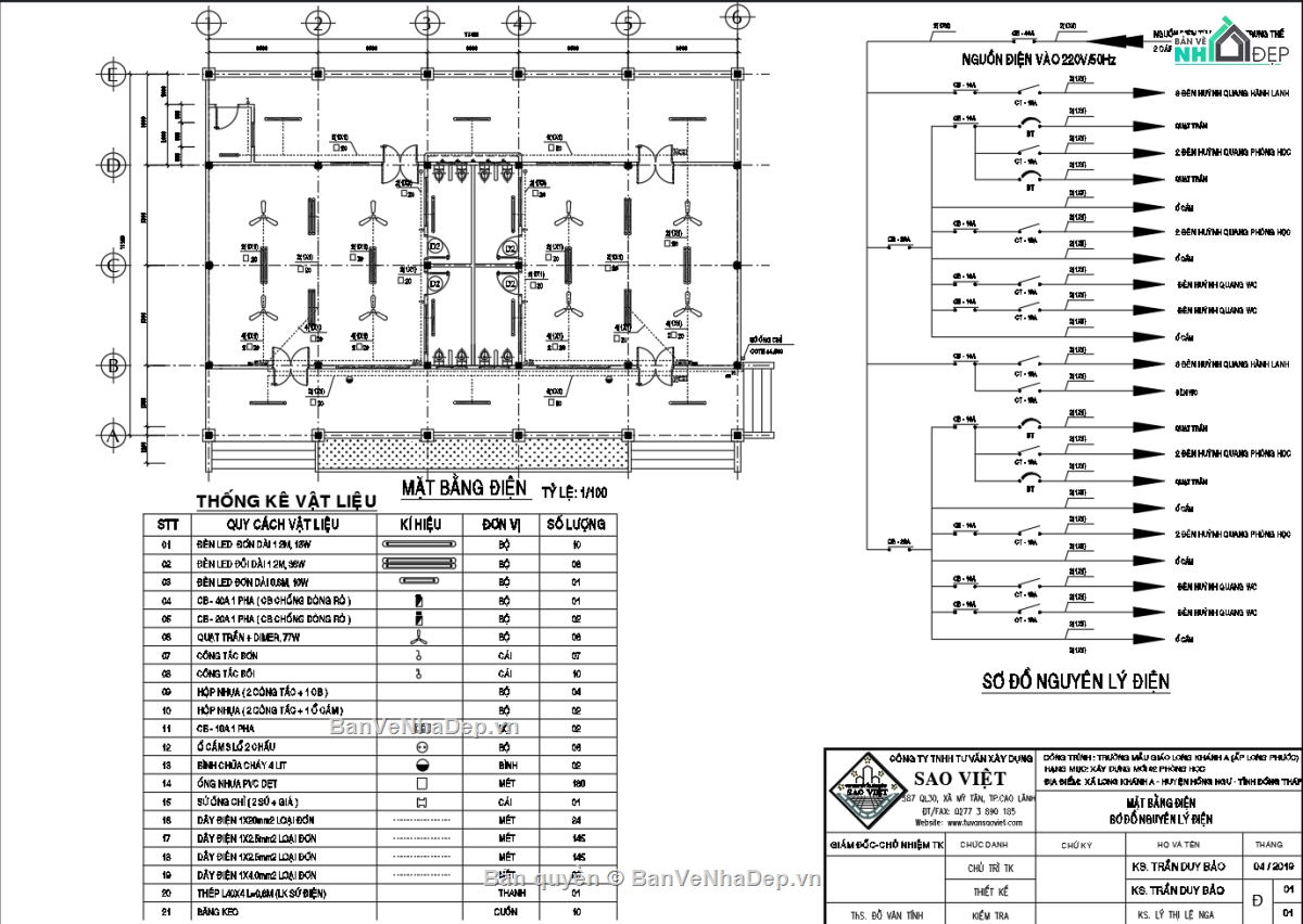
Điện
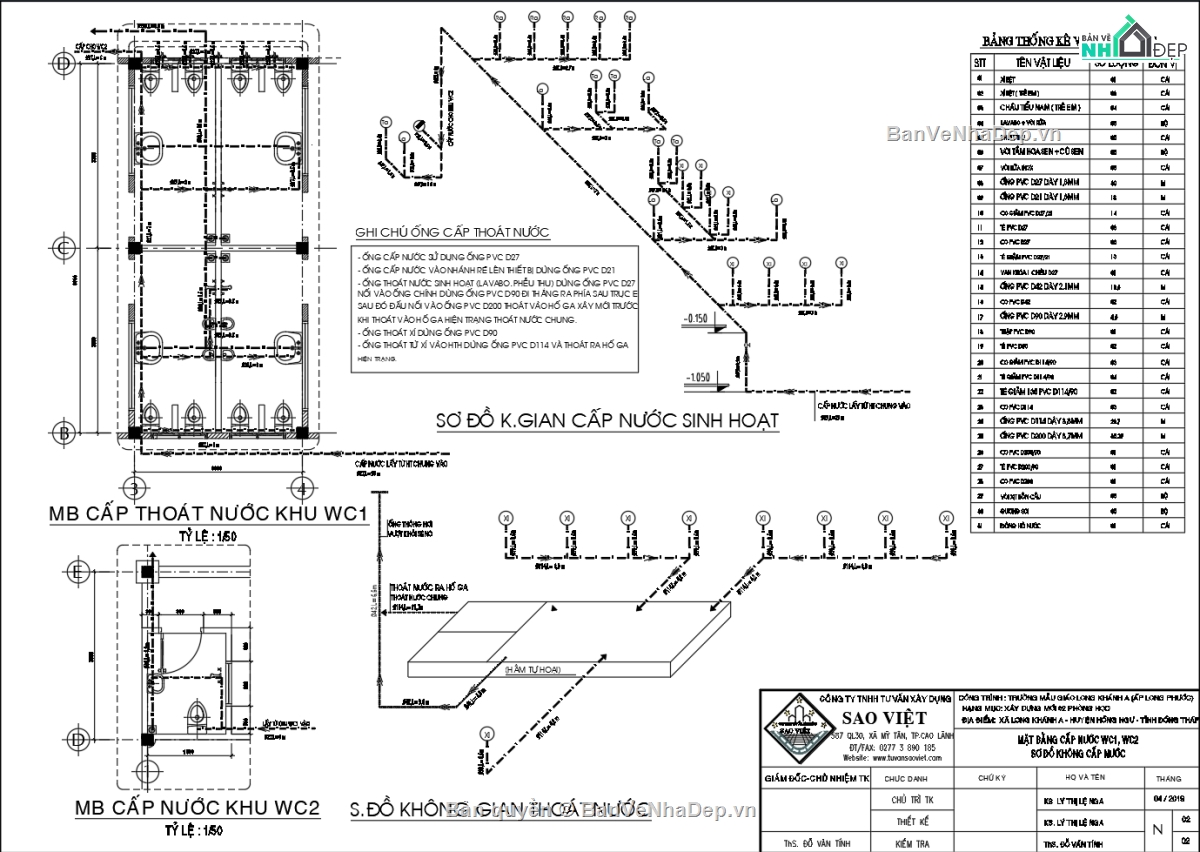
Nước
PCCC
Phối cảnh
Dự toán
Tài liệu
Khác...

NGƯỜI ĐĂNG
(Hạng vàng)
Xem trang
bản vẽ nhà
Bản vẽ
47
bộ sưu tập bản vẽ nhà
Bộ sưu tập
0
đánh giá mẫu bản vẽ
Đánh giá (98)
5/5
ngày tham gia bản vẽ nhà đẹp
Ngày tham gia
25/5/2024

Mô tả chi tiết

Hồ sơ bản vẽ kiến trúc, kết cấu, điện nước

Diện tích qui hoạch S = 436m2.

Bình luận (0)


Đánh giá (1)

ĐÁNH GIÁ TRUNG BÌNH
5/5

(1 Nhận xét)
Bản vẽ rất tốt (1)
Bản vẽ tốt (0)
Bản vẽ rất hay (0)
Bản vẽ hay (0)
Bình thường (0)
Chia sẻ nhận xét về bản vẽ
 Viết nhận xét của bạn
Kỹ sư Phú
Thời gian 17:09
26/6/2025
Bản vẽ rất tốt   
 Đã đăng bản vẽ này
Bản vẽ rất tốt và phù hợp để tham khảo
HỖ TRỢ TRỰC TUYẾN