MÃ BẢN VẼ
58028
Bản vẽ trường mầm non Thường Thới Hậu A và các hạng mục phụ
Bản vẽ trường mầm non Thường Thới Hậu A và các hạng mục phụ. Diện tích xây dựng 8,7ha gồm Hạng mục chính và các hạng mục phụ
Ngày đăng: 25/6/2025
File download:
1. Truong MN Thuong Thoi Hau A.rar
Dung lượng file:
30.1 MB
Phong cách: Hiện đại
Kích thước: DT 8700m2
CÔNG CỤ THIẾT KẾ:

Autocad

Sketchup

3D Max

Revit

Khác...
CÁC HẠNG MỤC CỦA BẢN VẼ:

Kiến trúc

Kết cấu

Điện

Nước

PCCC

Phối cảnh

Dự toán

Tài liệu

Khác...
NGƯỜI ĐĂNG
Bản vẽ
47
Bộ sưu tập
0
Đánh giá (98)
5/5
Ngày tham gia
25/5/2024
Mô tả chi tiết
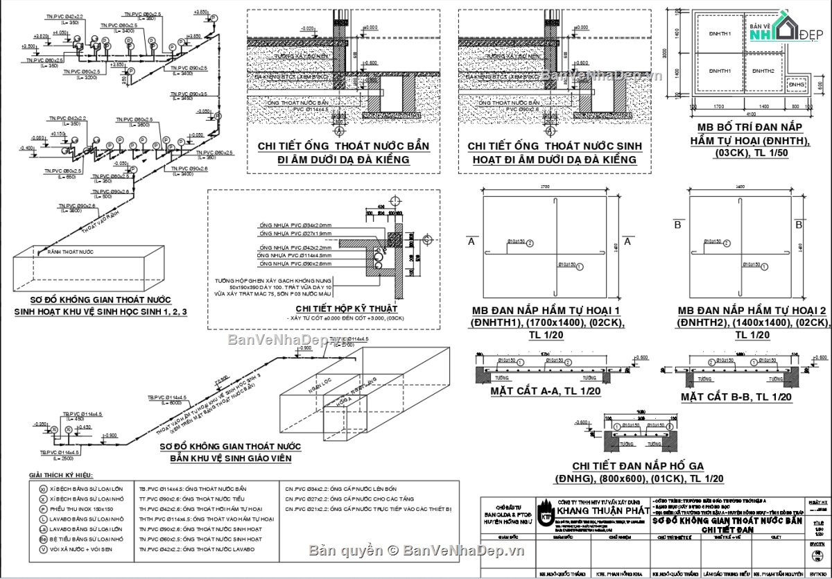
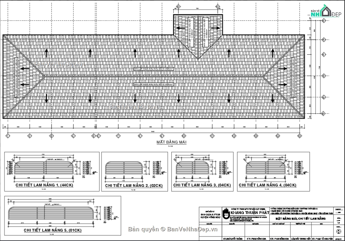
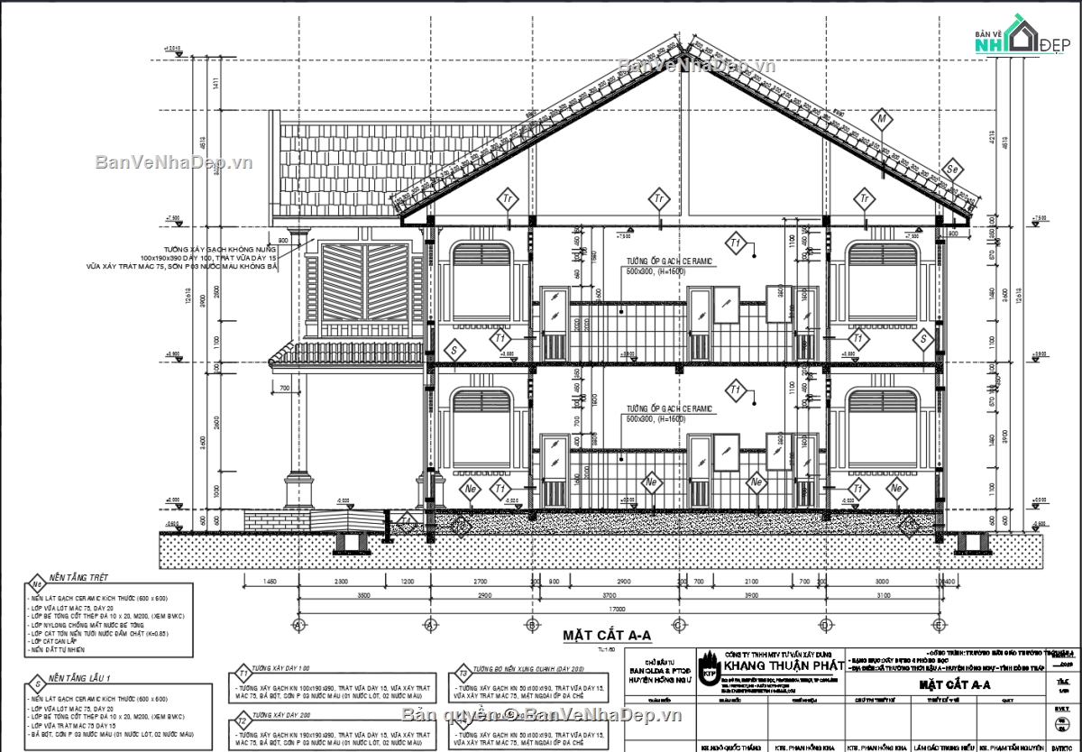
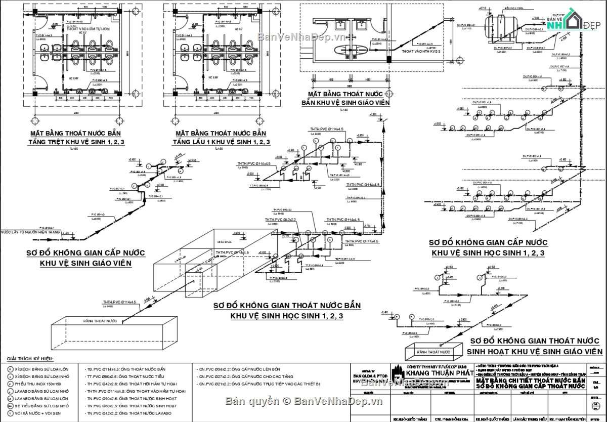
Hồ sơ thiết kế bản vẽ thi công trường mầm non Thường Thới Hậu A. Gồm: Kiến Trúc, Kết Cấu, Điện, Nước, Chống Sét, PCC hạng mục chính và các hạng mục phụ (Cổng, hàng rào, nhà bảo vệ, nhà xe). Đường giao thông
Bình luận (0)
Đánh giá (1)
ĐÁNH GIÁ TRUNG BÌNH
5/5
(
1 Nhận xét)
Bản vẽ rất tốt (1)
Bản vẽ tốt (0)
Bản vẽ rất hay (0)
Bản vẽ hay (0)
Bình thường (0)
Bản vẽ rất tốt
Đã đăng bản vẽ này
Bản vẽ rất tốt và phù hợp để tham khảo