MÃ BẢN VẼ
60683
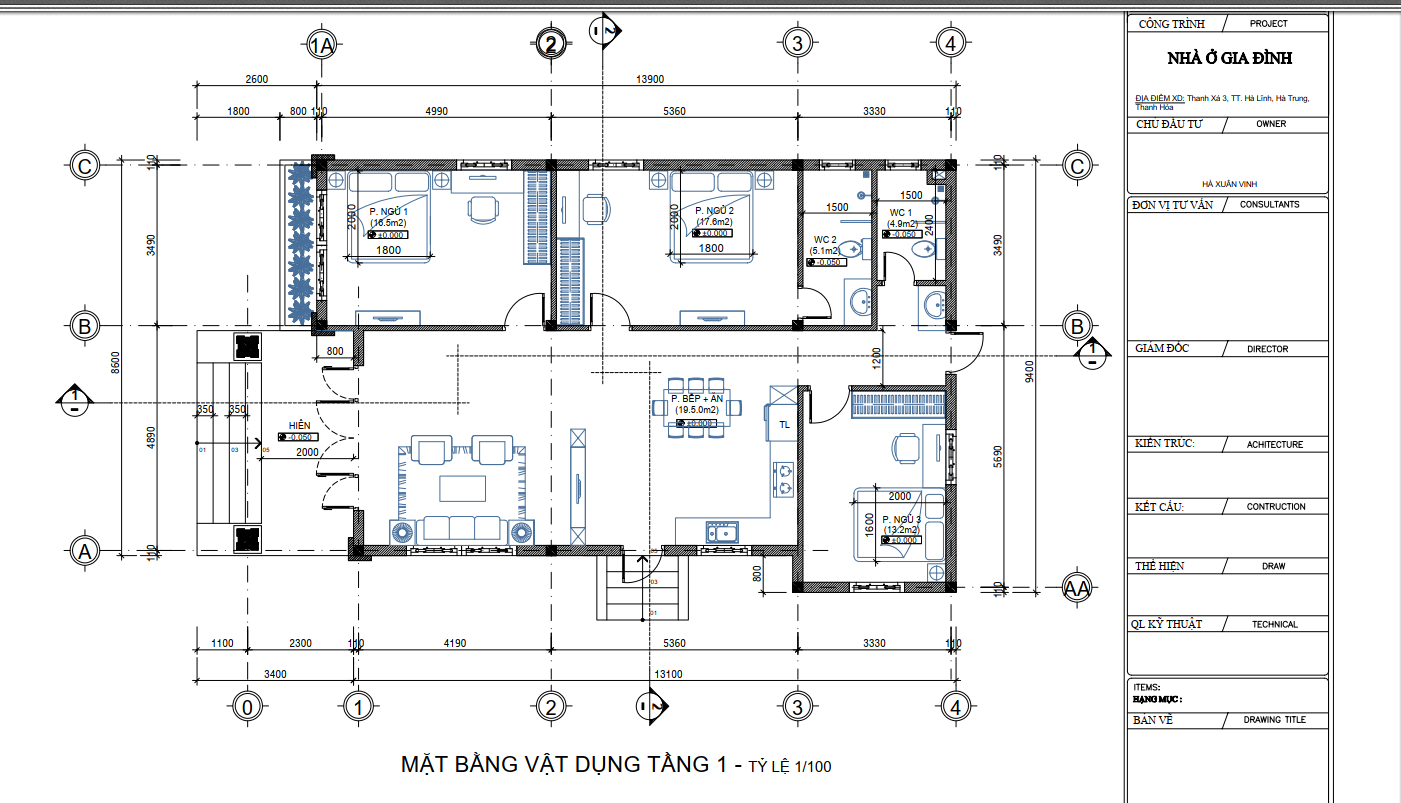
Biệt thự 1 tầng 8.6x13.9m
(
1 Nhận xét)
Viết đánh giá
Bình luận: 0
Download: 1
Lượt xem: 124
Biệt thự 1 tầng full hồ sơ thi công ( Kiến trúc, kết cấu, điện nước, 3D ngoại thất )
Ngày đăng: 20/8/2025
File download:
KT-KC-ĐN ( DP4 ).rar
Dung lượng file:
12 MB
Phong cách: Hiện đại
Kích thước: Rộng 8,6m, Dài 13,9m, DT 119,5m2
CÔNG CỤ THIẾT KẾ:

Autocad

Sketchup

3D Max

Revit

Khác...
CÁC HẠNG MỤC CỦA BẢN VẼ:

Kiến trúc

Kết cấu

Điện

Nước

PCCC

Phối cảnh

Dự toán

Tài liệu

Khác...
NGƯỜI ĐĂNG
Bản vẽ
29
Bộ sưu tập
0
Đánh giá (58)
5/5
Ngày tham gia
12/8/2025
Mô tả chi tiết
Biệt thự 1 tầng full hồ sơ thi công ( Kiến trúc, kết cấu, điện nước, 3D ngoại thất )
công năng: 3 phòng ngủ, 2 vệ sinh và 1 phòng bếp 1 phòng khách
hình ảnh giống 100% thực tế
Bình luận (0)
Đánh giá (1)
ĐÁNH GIÁ TRUNG BÌNH
5/5
(
1 Nhận xét)
Bản vẽ rất tốt (1)
Bản vẽ tốt (0)
Bản vẽ rất hay (0)
Bản vẽ hay (0)
Bình thường (0)
Bản vẽ rất tốt
Đã đăng bản vẽ này
Bản vẽ rất tốt và phù hợp để tham khảo