MÃ BẢN VẼ
60681
Biệt thự 1 tầng hồ sơ thi công 7.5x14m
(
1 Nhận xét)
Viết đánh giá
Bình luận: 0
Download: 0
Lượt xem: 155
Biệt thự 1 tầng Full hồ sơ thi công ( Kiến trúc, kết cấu, điện nước, ảnh 3D ngoại thất )
Ngày đăng: 20/8/2025
File download:
KT-KC-DN(DP2).rar
Dung lượng file:
11.8 MB
Phong cách: Hiện đại
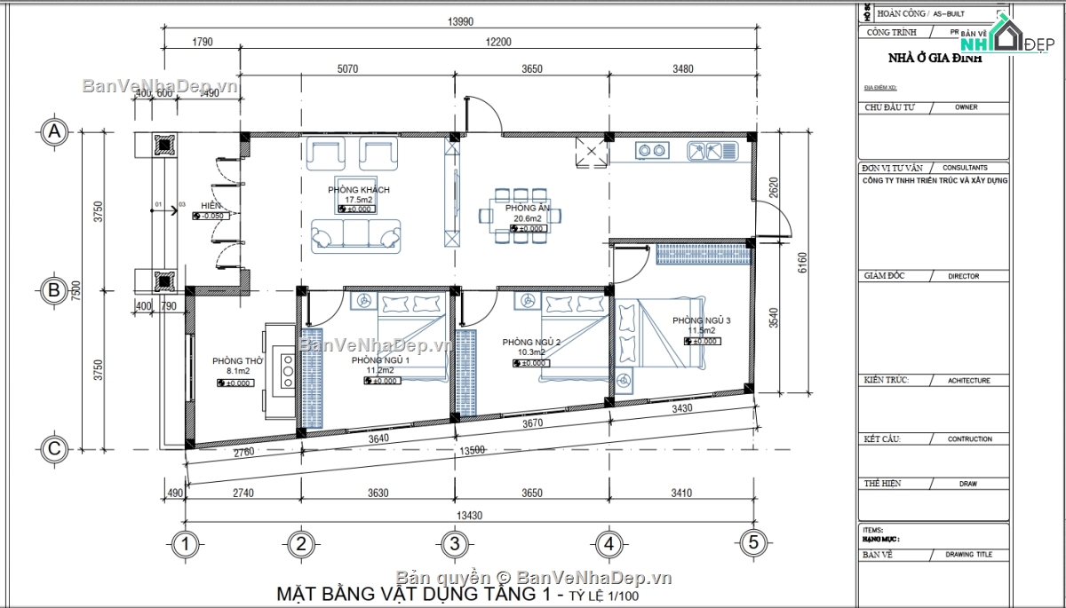
Kích thước: Rộng 7,5m, Dài 14m, DT 104,9m2
CÔNG CỤ THIẾT KẾ:

Autocad

Sketchup

3D Max

Revit

Khác...
CÁC HẠNG MỤC CỦA BẢN VẼ:

Kiến trúc

Kết cấu

Điện

Nước

PCCC

Phối cảnh

Dự toán

Tài liệu

Khác...
NGƯỜI ĐĂNG
Bản vẽ
29
Bộ sưu tập
0
Đánh giá (58)
5/5
Ngày tham gia
12/8/2025
Mô tả chi tiết
Biệt thự 1 tầng Full hồ sơ thi công ( Kiến trúc, kết cấu, điện nước, ảnh 3D ngoại thất )
công năng: 3 phòng ngủ, 1 bếp, 1 phòng khách, 1 phòng thờ.
Hình ảnh 100% giống thực tế
Bình luận (0)
Đánh giá (1)
ĐÁNH GIÁ TRUNG BÌNH
5/5
(
1 Nhận xét)
Bản vẽ rất tốt (1)
Bản vẽ tốt (0)
Bản vẽ rất hay (0)
Bản vẽ hay (0)
Bình thường (0)
Bản vẽ rất tốt
Đã đăng bản vẽ này
Bản vẽ rất tốt và phù hợp để tham khảo