MÃ BẢN VẼ
54319
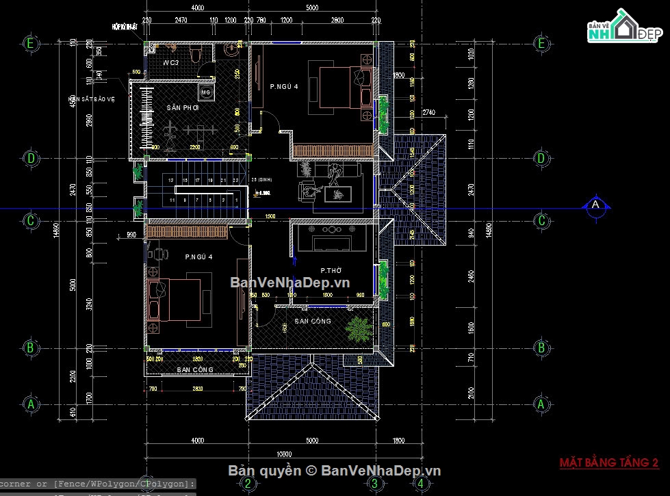
Biệt thự 2 tầng 9x12m
(
1 Nhận xét)
Viết đánh giá
Bình luận: 0
Download: 5
Lượt xem: 301
Biệt thự 2 tầng 9x12m theo phong cách hiện đại có đủ kiến trúc, điện, nước và phối cảnh.
Ngày đăng: 05/5/2025
File download:
Biet thu 2 tang 9x12m.rar
Dung lượng file:
2.5 MB
Phong cách: Hiện đại
Kích thước: Rộng 9m, Dài 12m, DT 108m2
CÔNG CỤ THIẾT KẾ:

Autocad

Sketchup

3D Max

Revit

Khác...
CÁC HẠNG MỤC CỦA BẢN VẼ:

Kiến trúc

Kết cấu

Điện

Nước

PCCC

Phối cảnh

Dự toán

Tài liệu

Khác...
NGƯỜI ĐĂNG
Bản vẽ
20
Bộ sưu tập
0
Đánh giá (25)
5/5
Ngày tham gia
25/4/2025
Mô tả chi tiết
Tầng 1: phòng khách, bếp, 2 phòng ngủ, 2wc, sân ướt
Tầng 2: 1 phòng thờ, 2 phòng ngủ, 1 sân phơi, 1wc
Bình luận (0)
Đánh giá (1)
ĐÁNH GIÁ TRUNG BÌNH
5/5
(
1 Nhận xét)
Bản vẽ rất tốt (1)
Bản vẽ tốt (0)
Bản vẽ rất hay (0)
Bản vẽ hay (0)
Bình thường (0)
Bản vẽ rất tốt
Đã đăng bản vẽ này
Bản vẽ rất tốt và phù hợp để tham khảo