MÃ BẢN VẼ
59860
Biệt thự 2 tầng mái nhật đẹp nhất 11x9m đẹp nhất 2025
Full thiết kế thiết kế kiến trúc, kết cấu, điện, nước kt 11x9m
Ngày đăng: 13/7/2025
File download:
12. NHÀ DÂN CÔNG ANH 2 TẦNG MÁI NHẬT.zip
Dung lượng file:
26.9 MB
Phong cách: Hiện đại
Kích thước: Rộng 9m, Dài 11m, DT 99m2
CÔNG CỤ THIẾT KẾ:

Autocad

Sketchup

3D Max

Revit

Khác...
CÁC HẠNG MỤC CỦA BẢN VẼ:

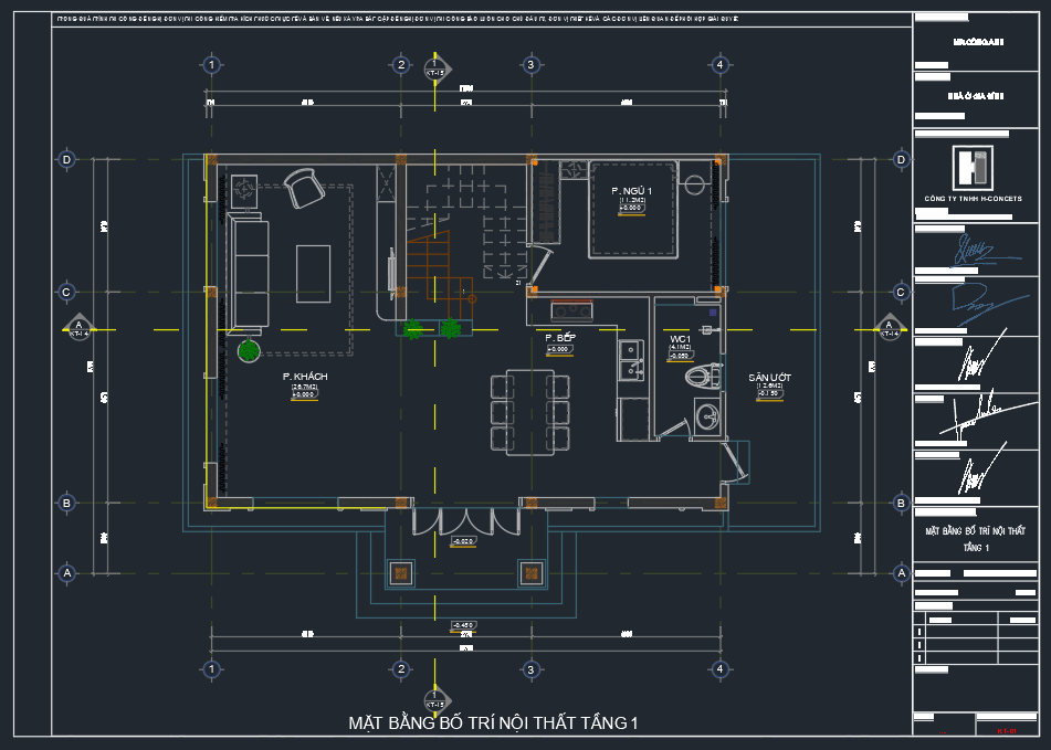
Kiến trúc

Kết cấu

Điện

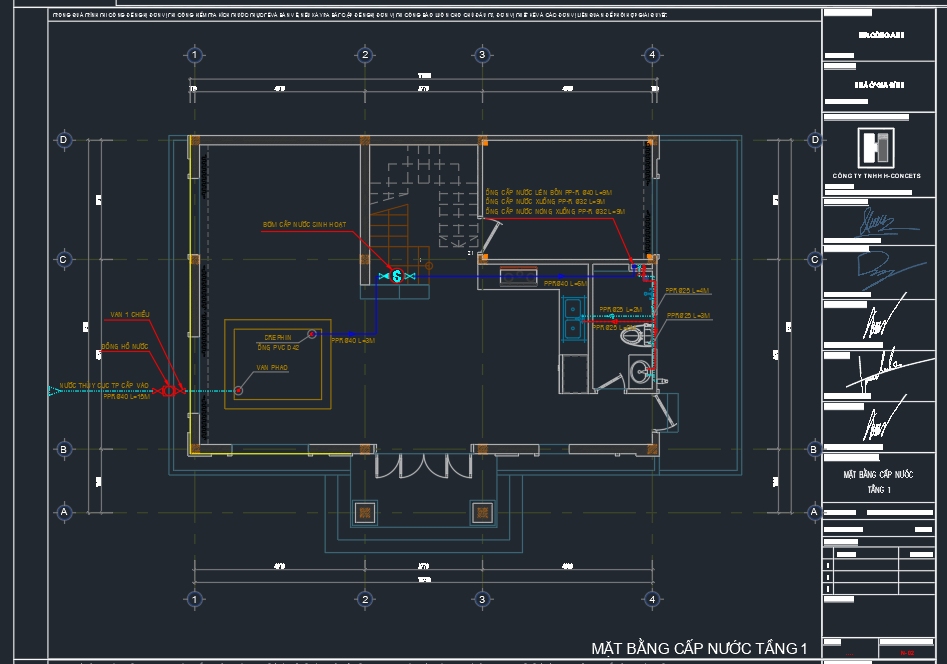
Nước

PCCC

Phối cảnh

Dự toán

Tài liệu

Khác...
NGƯỜI ĐĂNG
Bản vẽ
20
Bộ sưu tập
0
Đánh giá (22)
5/5
Ngày tham gia
23/7/2022
Mô tả chi tiết
File dwg đầy đủ kiến trúc, điện nước, kết cấu nhà 2 tầng mái nhật gồm:
Bản vẽ hồ sơ bao hạng mục bản vẽ :
- Mặt bằng bố trí công năng tầng 1 (phòng khách, bếp, phòng ngủ 1, wc1, sân ướt). tầng 2 (bao hạng mục bản vẽ phòng thờ, phòng ngủ 2, phòng ngủ 3, phfong ngủ master, phòng thờ, sảnh, wc2, wc3).
- Các view file phối cảnh nội, ngoại thất
Bình luận (0)
Đánh giá (1)
ĐÁNH GIÁ TRUNG BÌNH
5/5
(
1 Nhận xét)
Bản vẽ rất tốt (1)
Bản vẽ tốt (0)
Bản vẽ rất hay (0)
Bản vẽ hay (0)
Bình thường (0)
Bản vẽ rất tốt
Đã mua bản vẽ tại Banvenhadep.vn
Bản vẽ thiết tốt thích hợp để tham khảo